千葉県船橋市西船2丁目(西船橋駅)の中古マンション・新築マンション・分譲マンション:物件詳細
交通 所在地 |
駅徒歩 |
価格 |
構造 階建/階 |
間取り 専有面積 |
物件種目 築年月 |
|
JR総武線/西船橋
千葉県船橋市西船2丁目
|
13分
|
3,980万円
|
RC
10階建 / 7階
|
3LDK
76.25m²
|
中古マンション
2008年1月(築18年2ヶ月)
|
|
ペット相談、楽器相談、常時ゴミ出し可能、アウトフレーム工法、24時間換気システム、バリアフリー、外観タイル張り、設計住宅性能評価書あり、前面棟無、隣接建物距離2m以上、管理人日勤、IT重説対応物件
|
|
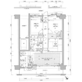
間取図
3LDK+ウォークインクローゼット+パントリー+リネン庫
|
外観
高級感あふれるタイル貼り、ベランダは採光パネル仕様したスタイリッシュな外観です。
|
その他の画像
|
| 交通 | JR総武線 西船橋駅 徒歩13分 |
|---|
| その他の交通 | 東京メトロ東西線 西船橋駅 徒歩13分 京成本線 京成西船駅 徒歩11分 |
| 所在地 |
千葉県船橋市西船2丁目
|
| 物件種目 |
中古マンション |
| 価格 |
3,980万円 |
平米単価 |
52.20万円 |
| 管理費等 |
12,276円 |
修繕積立金 |
19,700円 |
| 借地期間・地代(月額) |
- |
権利金 |
- |
| 敷金または保証金 |
- / - |
維持費等 |
その他:1,310円/月 |
| その他一時金 |
- |
|
|
| 間取り |
3LDK(和 6 洋 6.7・6 LDK 16.1) |
専有面積 |
76.25m²(壁芯) |
| 階建 / 階 |
10階建 / 7階 |
バルコニー |
14.17m² |
| 築年月 |
2008年1月(築18年2ヶ月)
|
建物構造 |
RC |
| 駐車場 |
- |
総戸数 |
95戸 |
| 駐輪場 |
有 |
バイク置き場 |
有 |
| ペット |
細則有り |
|
|
| 土地権利 |
所有権 |
敷地面積 |
- |
| 管理形態/管理員の勤務形態 |
全部委託/日勤(大和ライフネクスト株式会社) |
国土法届出 |
- |
| アピールポイント |
【豊富な物件情報】
◆千葉県の他社未公開情報は弊社にお任せください。
【ご案内について】
◆無料送迎サービス
最寄り駅やお客様が指定した場所までのご送迎可能です。
◆資金計画のご相談
弊社、住宅ローンアドバイザーからお客様のライフスタイルに合わせた資金計画も無料で行っております。
◆「物件の見学や周囲の環境等、詳しく教えてほしい」などの
お問い合わせ、またご不明点、ご要望などございましたら、
ご遠慮なくお気軽にご連絡くださいませ。 |
| 建物名・部屋番号 |
ルネサンス ヴィラズ・フォート 7階 ペット飼育可 |
| リフォーム履歴 |
- |
| リノベーション履歴 |
- |
| 瑕疵保証 |
- |
| 瑕疵保険 |
- |
| 評価・証明書 |
- |
| 備考 |
主要採光面:南西向き
用途地域:1種中高
IT重説対応物件
建物・土地・税込み価格3,980万円 ◎お支払い例:月々109,588円(頭金・ボーナス時なし。借入額:3,980万円 金利0.85% 変動金利 返済期間35年の場合)
|
| エネルギー消費性能 |
- |
| 断熱性能 |
- |
| 目安光熱費 |
- |
| バス・トイレ |
浴室暖房、浴室乾燥機、オートバス、追焚機能、シャワー付洗面化粧台、温水洗浄便座、浴室に窓あり |
| キッチン |
カウンターキッチン、システムキッチン、独立型キッチン、食器洗浄乾燥機、浄水器、3口以上コンロ、グリル |
| 設備・サービス |
全居室収納、ウォークインクローゼット、床暖房、バイク置き場、収納スペース、室内洗濯機置場、クローゼット、オートロック、モニター付インターホン、ディンプルキー、ダブルロックドア、防犯カメラ、省エネ給湯器、給湯、出窓、室内物干し、クッションフロア、都市ガス、可動間仕切り、エアコン、ワイドバルコニー、駐輪場、人感センサー付照明、ダウンライト、照明器具、火災警報器(報知機)、ケーブルTV、複層ガラス |
| その他 |
宅配BOX、来客用駐車場、エレベーター |
| 条件等 |
- |
現況 |
所有者居住中 |
| 引渡可能時期 |
2026年2月下旬予定 |
物件番号 |
6988760108 |
| 情報公開日 |
2025年12月14日 |
次回更新予定日 |
2026年2月12日 |
| ケータイ用バーコード |
- スマートフォンでこの物件を見る
- スマートフォンからもこの物件をご覧になれます。
|
※「-」と表示されている項目については、情報提供会社にご確認ください。
| 周辺施設 |
まいばすけっと西船橋駅北店 |
| 距離 |
955m |
| 周辺施設 |
ファミリーマート船橋印内三丁目店 |
| 距離 |
753m |
| 周辺施設 |
船橋市立葛飾中学校 ※海神中学校も選択可能です。※行田西小学校も選択可能です。 |
| 距離 |
928m |
写真を見る |
| 周辺施設 |
船橋市立西海神小学校 ※行田西小学校も選択可能です。 |
| 距離 |
901m |
ここから簡単にお問い合わせをすることができます。
(SSLでの暗号化での送信を希望されるお客さまは
こちら
よりお問い合わせください)
お問い合わせを行う前に
「個人情報の取り扱いについて」を必ずお読みください。
「個人情報の取り扱いについて」に同意いただいた場合は「上記にご同意の上 確認画面へ進む」のボタンをクリックしてください。
個人情報の取り扱いについて
皆さまが送付された個人情報はアットホーム(株)のサーバを経由し、お問い合わせ先の不動産会社にメールまたはFAXにて転送されるためアットホーム(株)にも保管されます。アットホーム(株)で保管された個人情報の取り扱いについては、【こちら】をご覧ください。
また、本画面でご記入いただいた個人情報は、お問い合わせ先の不動産会社でも保管します。 お問い合わせ先の不動産会社が保管する個人情報の取り扱いについては、不動産会社に直接お問い合わせください。
千葉県知事免許(1)第18048号 |
|---|
- 交通:
- JR総武線/千葉駅 徒歩7分
- 千葉県千葉市中央区富士見1丁目13-11 紅谷ビル405
- TEL:
- 043-305-5773
- 所属団体:
- (一社)千葉県宅地建物取引業協会会員(公社)首都圏不動産公正取引協議会加盟
取引態様:媒介  - 00273675
|
- スマートフォンで
この不動産会社を見る

|
- 提携サイト等より掲載されている物件情報につきましては、不動産会社詳細情報にリンクされていないものがあります。
- 物件に関するお問合せは、物件詳細ページの「情報提供会社」に表示されている不動産会社へ直接お願いいたします。
- 間取図は、現況を優先させていただきます。
- 映像は物件の一部を撮影したものです。物件の契約にあたっての最終判断はご自身の判断に基づいて行ってください。
- 仲介手数料について

アットホームは物件情報の適正化に努めております。
内容に誤りがある場合にはこちらへご連絡ください。