大阪府大阪市中央区平野町3丁目(本町駅)の中古マンション・新築マンション・分譲マンション:物件詳細
交通 所在地 |
駅徒歩 |
価格 |
構造 階建/階 |
間取り 専有面積 |
物件種目 築年月 |
|
地下鉄御堂筋線/本町
大阪府大阪市中央区平野町3丁目
|
5分
|
1,380万円
|
SRC
地上11階地下1階建 / 8階
|
ワンルーム
23.06m²
|
中古マンション
1983年7月(築42年9ヶ月)
|
|
事務所使用可、管理人日勤
|
|
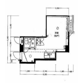
間取図
事務所使用可能23.06㎡のお部屋
|
外観
「見た目の良さ」もお部屋の魅力のひとつです。3駅利用可能で交通アクセスも快適。
|
その他の画像
|
| 交通 | 地下鉄御堂筋線 本町駅 徒歩5分 |
|---|
| その他の交通 | 地下鉄御堂筋線 淀屋橋駅 徒歩3分 地下鉄堺筋線 北浜駅 徒歩10分 |
| 所在地 |
大阪府大阪市中央区平野町3丁目
|
| 物件種目 |
中古マンション |
| 価格 |
1,380万円 |
平米単価 |
59.85万円 |
| 管理費等 |
5,280円 |
修繕積立金 |
9,200円 |
| 借地期間・地代(月額) |
- |
権利金 |
- |
| 敷金または保証金 |
- / - |
維持費等 |
- |
| その他一時金 |
- |
|
|
| 間取り |
ワンルーム |
専有面積 |
23.06m²(壁芯) |
| 階建 / 階 |
地上11階地下1階建 / 8階 |
バルコニー |
- |
| 築年月 |
1983年7月(築42年9ヶ月)
|
建物構造 |
SRC |
| 駐車場 |
- |
総戸数 |
- |
| 駐輪場 |
- |
バイク置き場 |
- |
| ペット |
-
|
|
|
| 土地権利 |
所有権 |
敷地面積 |
- |
| 管理形態/管理員の勤務形態 |
全部委託/日勤(日本ハウズイング株式会社) |
国土法届出 |
- |
| アピールポイント |
お探しの方には嬉しい事務所利用可。不要な荷物を保管できるトランクルームサービス利用可で、居室外にも収納スペースを確保できます。また通勤通学に便の良い本町駅徒歩5分なので、買い物もしやすい立地です。リフォーム予定物件もあり室内もお綺麗になります。是非見学にお越しください。 |
| 建物名・部屋番号 |
ニューライフ平野町 809 |
| リフォーム履歴 |
- |
| リノベーション履歴 |
- |
| 瑕疵保証 |
- |
| 瑕疵保険 |
- |
| 評価・証明書 |
- |
| 備考 |
用途地域:商業地域
建築確認番号:7869
|
| エネルギー消費性能 |
- |
| 断熱性能 |
- |
| 目安光熱費 |
- |
| バス・トイレ |
- |
| キッチン |
- |
| 設備・サービス |
トランクルーム |
| その他 |
エレベーター |
| 条件等 |
- |
現況 |
空家 |
| 引渡可能時期 |
相談 |
物件番号 |
6988841398 |
| 仲介手数料 |
不要 |
|
|
| 情報公開日 |
2025年12月20日 |
次回更新予定日 |
2026年3月30日 |
| ケータイ用バーコード |
- スマートフォンでこの物件を見る
- スマートフォンからもこの物件をご覧になれます。
|
※「-」と表示されている項目については、情報提供会社にご確認ください。
| 周辺施設 |
CoDeli瓦町3丁目店 |
| 距離 |
137m |
| 周辺施設 |
ファミリーマート淡路町三丁目店 |
| 距離 |
72m |
| 周辺施設 |
セブンイレブン御堂筋平野町店 |
| 距離 |
153m |
| 周辺施設 |
オービック御堂筋ビル駐車場 |
| 距離 |
245m |
ここから簡単にお問い合わせをすることができます。
(SSLでの暗号化での送信を希望されるお客さまは
こちら
よりお問い合わせください)
お問い合わせを行う前に
「個人情報の取り扱いについて」を必ずお読みください。
「個人情報の取り扱いについて」に同意いただいた場合は「上記にご同意の上 確認画面へ進む」のボタンをクリックしてください。
個人情報の取り扱いについて
皆さまが送付された個人情報はアットホーム(株)のサーバを経由し、お問い合わせ先の不動産会社にメールまたはFAXにて転送されるためアットホーム(株)にも保管されます。アットホーム(株)で保管された個人情報の取り扱いについては、【こちら】をご覧ください。
また、本画面でご記入いただいた個人情報は、お問い合わせ先の不動産会社でも保管します。 お問い合わせ先の不動産会社が保管する個人情報の取り扱いについては、不動産会社に直接お問い合わせください。
大阪府知事免許(1)第62507号 |
|---|
- 交通:
- 阪急宝塚線/庄内駅 徒歩6分
- 大阪府豊中市庄内東町5丁目10-37 ツインタワー9階
- TEL:
- 06-6676-7980
- FAX:
- 06-7633-8042
- 所属団体:
- (一社)大阪府宅地建物取引業協会会員(公社)近畿地区不動産公正取引協議会加盟
取引態様:売主  - 50110024
|
- スマートフォンで
この不動産会社を見る

|
- 提携サイト等より掲載されている物件情報につきましては、不動産会社詳細情報にリンクされていないものがあります。
- 物件に関するお問合せは、物件詳細ページの「情報提供会社」に表示されている不動産会社へ直接お願いいたします。
- 間取図は、現況を優先させていただきます。
- 映像は物件の一部を撮影したものです。物件の契約にあたっての最終判断はご自身の判断に基づいて行ってください。
- 仲介手数料について

アットホームは物件情報の適正化に努めております。
内容に誤りがある場合にはこちらへご連絡ください。