福岡県福岡市中央区今泉1丁目(薬院駅)の中古マンション・新築マンション・分譲マンション:物件詳細
交通 所在地 |
駅徒歩 |
価格 |
構造 階建/階 |
間取り 専有面積 |
物件種目 築年月 |
|
西鉄天神大牟田線/薬院
福岡県福岡市中央区今泉1丁目
|
5分
|
5,100万円
|
SRC
15階建 / 12階
|
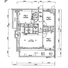
3LDK
67.37m²
|
中古マンション
オーナーチェンジ
2001年7月(築24年6ヶ月)
|
|
ペット相談、常時ゴミ出し可能、角部屋、外観タイル張り、管理人日勤
|
| 交通 | 西鉄天神大牟田線 薬院駅 徒歩5分 |
|---|
| その他の交通 | 西鉄天神大牟田線 西鉄福岡(天神)駅 徒歩7分 地下鉄空港線 天神駅 徒歩10分 |
| 所在地 |
福岡県福岡市中央区今泉1丁目
|
| 物件種目 |
中古マンション |
| 価格 |
5,100万円 |
平米単価 |
75.71万円 |
| 管理費等 |
5,100円 |
修繕積立金 |
8,800円 |
| 借地期間・地代(月額) |
- |
権利金 |
- |
| 敷金または保証金 |
- / - |
維持費等 |
- |
| その他一時金 |
- |
|
|
| 間取り |
3LDK(洋 6.4・5.2・5.8 LDK 12.6) |
専有面積 |
67.37m²(内法) |
| 階建 / 階 |
15階建 / 12階 |
バルコニー |
17.86m² |
| 築年月 |
2001年7月(築24年6ヶ月)
|
建物構造 |
SRC |
| 駐車場 |
- |
総戸数 |
- |
| 駐輪場 |
- |
バイク置き場 |
- |
| ペット |
小型犬可・ 猫可 |
|
|
| 土地権利 |
所有権 |
敷地面積 |
- |
| 管理形態/管理員の勤務形態 |
全部委託/日勤(ビジネス・ワンファシリティーズ) |
国土法届出 |
- |
| アピールポイント |
お探しの方には嬉しいペット(小型犬)相談可。アクセスのいい薬院駅徒歩5分だから、毎日の通勤通学がラク。また受け取りに心配なしの宅配BOX付で、その上早起き苦手な方にはおすすめの常時ゴミ出し可の住戸だから、ゴミ収集の時間や曜日に縛られません。ちなみに奥行き(出幅)を一般的なバルコニーより広めにとったワイドバルコニー付です。自然に団らんが生まれる3LDK。是非その目でお確かめください。 |
| 建物名・部屋番号 |
アクセス天神Ⅱ |
| リフォーム履歴 |
- |
| リノベーション履歴 |
- |
| 瑕疵保証 |
- |
| 瑕疵保険 |
- |
| 評価・証明書 |
- |
| 備考 |
主要採光面:南西向き
利回り:3.50%
年間予定賃料収入:178.8万円
|
| エネルギー消費性能 |
- |
| 断熱性能 |
- |
| 目安光熱費 |
- |
| バス・トイレ |
浴室乾燥機、オートバス、追焚機能 |
| キッチン |
システムキッチン、3口以上コンロ、グリル |
| 設備・サービス |
モニター付オートロック、全居室収納、ウォークインクローゼット、収納スペース、室内洗濯機置場、シューズインクローゼット、クローゼット、オートロック、ダブルロックドア、ワイドバルコニー、二面バルコニー |
| その他 |
宅配BOX、エレベーター |
| 条件等 |
オーナーチェンジ |
現況 |
賃貸中 |
| 引渡可能時期 |
相談 |
物件番号 |
6988843093 |
| 仲介手数料 |
売買代金の3% |
|
|
| 情報公開日 |
2025年12月20日 |
次回更新予定日 |
2026年1月3日 |
| ケータイ用バーコード |
- スマートフォンでこの物件を見る
- スマートフォンからもこの物件をご覧になれます。
|
※「-」と表示されている項目については、情報提供会社にご確認ください。
| 周辺施設 |
PGAツアースーパーストア福岡天神店 |
| 距離 |
212m |
| 周辺施設 |
ファミリーマート福岡今泉店 |
| 距離 |
30m |
ここから簡単にお問い合わせをすることができます。
(SSLでの暗号化での送信を希望されるお客さまは
こちら
よりお問い合わせください)
お問い合わせを行う前に
「個人情報の取り扱いについて」を必ずお読みください。
「個人情報の取り扱いについて」に同意いただいた場合は「上記にご同意の上 確認画面へ進む」のボタンをクリックしてください。
個人情報の取り扱いについて
皆さまが送付された個人情報はアットホーム(株)のサーバを経由し、お問い合わせ先の不動産会社にメールまたはFAXにて転送されるためアットホーム(株)にも保管されます。アットホーム(株)で保管された個人情報の取り扱いについては、【こちら】をご覧ください。
また、本画面でご記入いただいた個人情報は、お問い合わせ先の不動産会社でも保管します。 お問い合わせ先の不動産会社が保管する個人情報の取り扱いについては、不動産会社に直接お問い合わせください。
(有)大益東京都知事免許(9)第57701号 |
|---|
- 交通:
- 東京メトロ丸ノ内線/四谷三丁目駅 徒歩1分
- 東京都新宿区四谷3丁目10 山田ビル1F
- TEL:
- 03-3355-6677
- FAX:
- 03-3355-5540
- 所属団体:
- (公社)全日本不動産協会会員(公社)首都圏不動産公正取引協議会加盟
取引態様:専属専任媒介 |
- 提携サイト等より掲載されている物件情報につきましては、不動産会社詳細情報にリンクされていないものがあります。
- 物件に関するお問合せは、物件詳細ページの「情報提供会社」に表示されている不動産会社へ直接お願いいたします。
- 間取図は、現況を優先させていただきます。
- 映像は物件の一部を撮影したものです。物件の契約にあたっての最終判断はご自身の判断に基づいて行ってください。
- 仲介手数料について

アットホームは物件情報の適正化に努めております。
内容に誤りがある場合にはこちらへご連絡ください。