愛知県名古屋市中川区尾頭橋3丁目(金山駅)の中古マンション・新築マンション・分譲マンション:物件詳細
交通 所在地 |
駅徒歩 |
価格 |
構造 階建/階 |
間取り 専有面積 |
物件種目 築年月 |
|
東海道本線/金山
愛知県名古屋市中川区尾頭橋3丁目
|
11分
|
3,980万円
|
RC
地上15階地下1階建 / 15階
|
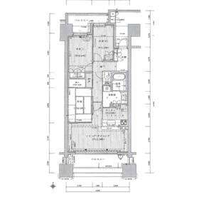
3LDK
80.16m²
|
中古マンション
2008年2月(築18年1ヶ月)
|
|
常時ゴミ出し可能、最上階、南向き、外観タイル張り、管理人日勤
|
|
≪オープンルーム/モデルルーム≫【開催期間】2026年1月31日~2月1日 【時間】10:00~16:00 要予約制、お気軽にご内見できます
|
|
間取図
3LDK
|
リビング
|
<
その他の画像
>
|
| 交通 | 東海道本線 金山駅 徒歩11分 |
|---|
| その他の交通 | 東海道本線 尾頭橋駅 徒歩5分 名鉄名古屋本線 金山駅 徒歩11分 |
| 所在地 |
愛知県名古屋市中川区尾頭橋3丁目
|
| 物件種目 |
中古マンション |
| 価格 |
3,980万円 |
平米単価 |
49.66万円 |
| 管理費等 |
- |
修繕積立金 |
なし |
| 借地期間・地代(月額) |
- |
権利金 |
- |
| 敷金または保証金 |
- / - |
維持費等 |
- |
| その他一時金 |
- |
|
|
| 間取り |
3LDK |
専有面積 |
80.16m²(内法) |
| 階建 / 階 |
地上15階地下1階建 / 15階 |
バルコニー |
20.02m² |
| 築年月 |
2008年2月(築18年1ヶ月)
|
建物構造 |
RC |
| 駐車場 |
- |
総戸数 |
- |
| 駐輪場 |
- |
バイク置き場 |
- |
| ペット |
-
|
|
|
| 土地権利 |
所有権 |
敷地面積 |
1,945.79m² |
| 管理形態/管理員の勤務形態 |
全部委託/日勤 |
国土法届出 |
- |
| アピールポイント |
当社に直接お申込を頂いた場合、「持ち回り契約」の対応可!
名古屋の協力担当者がご案内! |
| 建物名・部屋番号 |
プラウド金山 |
| リフォーム履歴 |
- |
| リノベーション履歴 |
- |
| 瑕疵保証 |
- |
| 瑕疵保険 |
- |
| 評価・証明書 |
- |
| 備考 |
主要採光面:南向き
施工会社:矢作建設工業(株)
用途地域:商業地域
契約書1通、印紙買主、司法書士指定、契約不適合責任免責が売買の条件
|
| エネルギー消費性能 |
- |
| 断熱性能 |
- |
| 目安光熱費 |
- |
| バス・トイレ |
追焚機能、シャワー付洗面化粧台、温水洗浄便座 |
| キッチン |
システムキッチン |
| 設備・サービス |
モニター付オートロック、収納スペース、室内洗濯機置場、防犯カメラ、エアコン |
| その他 |
宅配BOX、エレベーター |
| 条件等 |
- |
現況 |
空家 |
| 引渡可能時期 |
相談 |
物件番号 |
6988864518 |
| 情報公開日 |
2026年1月29日 |
次回更新予定日 |
2026年2月12日 |
| ケータイ用バーコード |
- スマートフォンでこの物件を見る
- スマートフォンからもこの物件をご覧になれます。
|
※「-」と表示されている項目については、情報提供会社にご確認ください。
ここから簡単にお問い合わせをすることができます。
(SSLでの暗号化での送信を希望されるお客さまは
こちら
よりお問い合わせください)
お問い合わせを行う前に
「個人情報の取り扱いについて」を必ずお読みください。
「個人情報の取り扱いについて」に同意いただいた場合は「上記にご同意の上 確認画面へ進む」のボタンをクリックしてください。
個人情報の取り扱いについて
皆さまが送付された個人情報はアットホーム(株)のサーバを経由し、お問い合わせ先の不動産会社にメールまたはFAXにて転送されるためアットホーム(株)にも保管されます。アットホーム(株)で保管された個人情報の取り扱いについては、【こちら】をご覧ください。
また、本画面でご記入いただいた個人情報は、お問い合わせ先の不動産会社でも保管します。 お問い合わせ先の不動産会社が保管する個人情報の取り扱いについては、不動産会社に直接お問い合わせください。
東京都知事免許(4)第89127号 |
|---|
- 交通:
- 東京メトロ半蔵門線/押上駅 徒歩1分
- 東京都墨田区押上1丁目11-2 田坂ビル1F
- TEL:
- 03-5619-7051
- FAX:
- 03-5619-7052
- 所属団体:
- (公社)東京都宅地建物取引業協会会員(公社)首都圏不動産公正取引協議会加盟
取引態様:専任媒介  - 00102005
|
- スマートフォンで
この不動産会社を見る

|
- 提携サイト等より掲載されている物件情報につきましては、不動産会社詳細情報にリンクされていないものがあります。
- 物件に関するお問合せは、物件詳細ページの「情報提供会社」に表示されている不動産会社へ直接お願いいたします。
- 間取図は、現況を優先させていただきます。
- 映像は物件の一部を撮影したものです。物件の契約にあたっての最終判断はご自身の判断に基づいて行ってください。
- 仲介手数料について

アットホームは物件情報の適正化に努めております。
内容に誤りがある場合にはこちらへご連絡ください。