東京都江戸川区平井5丁目(平井駅)の中古マンション・新築マンション・分譲マンション:物件詳細
交通 所在地 |
駅徒歩 |
価格 |
構造 階建/階 |
間取り 専有面積 |
物件種目 築年月 |
|
JR総武線/平井
東京都江戸川区平井5丁目
|
3分
|
16,800万円
|
SRC
地上29階地下1階建 / 28階
|
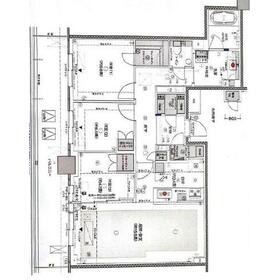
3LDK
89.36m²
|
中古マンション
2025年1月(築1年4ヶ月)
|
|
駐車場3台分以上、24時間セキュリティー、バス1坪以上、閑静な住宅街、隣接建物距離2m以上、管理人日勤
|
|
間取図
|
|
<
その他の画像
>
|
| 交通 | JR総武線 平井駅 徒歩3分 |
| 所在地 |
東京都江戸川区平井5丁目
|
| 物件種目 |
中古マンション |
| 価格 |
16,800万円 |
平米単価 |
188.01万円 |
| 管理費等 |
36,170円 |
修繕積立金 |
13,390円 |
| 借地期間・地代(月額) |
- |
権利金 |
- |
| 敷金または保証金 |
- / - |
維持費等 |
- |
| その他一時金 |
- |
|
|
| 間取り |
3LDK(洋 6.8・6・4.7) |
専有面積 |
89.36m²(壁芯) |
| 階建 / 階 |
地上29階地下1階建 / 28階 |
バルコニー |
21.24m² |
| 築年月 |
2025年1月(築1年4ヶ月)
|
建物構造 |
SRC |
| 駐車場 |
空無 |
総戸数 |
374戸 |
| 駐輪場 |
有 400円/月 |
バイク置き場 |
有 2,000円/月 |
| ペット |
-
|
|
|
| 土地権利 |
所有権 |
敷地面積 |
- |
| 管理形態/管理員の勤務形態 |
全部委託/日勤(野村不動産パートナーズ株式会社) |
国土法届出 |
- |
| アピールポイント |
利便性の高い都心までのアクセス、人気の高いJR総武線中央線平井駅は快速停車駅でない駅周辺の人情味あふれる商店街と心溢れる親しみやすい生活環境。平井駅徒歩3分好立地、築1年のタワーマンション高層階28階、長期的な生活設計に子育て世代に最適、雄大な荒川の一望できる景観。アクセスのいい平井駅徒歩3分立地の物件、更に車中心生活を支える駐車場3台分だから、身内や友人グループを気軽に呼ぶことができます。また受け取りに心配なしの宅配BOX付で、その上閑静な住宅街立地の物件だから、オンオフのメリハリがつきます。ちなみに思わぬアクシデントから日々の暮らしを守る24時間セキュリティー有の住居です。家族の安心拠点になる3LDK。是非見学にお越しください。 |
| 建物名・部屋番号 |
|
| リフォーム履歴 |
- |
| リノベーション履歴 |
- |
| 瑕疵保証 |
- |
| 瑕疵保険 |
- |
| 評価・証明書 |
- |
| 備考 |
主要採光面:南東向き
施工会社:日産建設株式会社
用途地域:近隣商業
|
| エネルギー消費性能 |
- |
| 断熱性能 |
- |
| 目安光熱費 |
- |
| バス・トイレ |
TV付浴室 |
| キッチン |
IHクッキングヒーター、3口以上コンロ |
| 設備・サービス |
モニター付オートロック、全居室収納、バイク置き場、収納スペース、オートロック、モニター付インターホン、ディンプルキー、防犯カメラ、洗濯機置場、エアコン、駐輪場、照明器具 |
| その他 |
宅配BOX、エレベーター2基以上、来客用駐車場 |
| 条件等 |
- |
現況 |
空家 |
| 引渡可能時期 |
即時 |
物件番号 |
6988894530 |
| 情報公開日 |
2026年4月5日 |
次回更新予定日 |
2026年5月3日 |
| ケータイ用バーコード |
- スマートフォンでこの物件を見る
- スマートフォンからもこの物件をご覧になれます。
|
※「-」と表示されている項目については、情報提供会社にご確認ください。
| 周辺施設 |
JR平井駅改札口 |
| 距離 |
100m |
写真を見る |
| 周辺施設 |
JR平井駅北口 |
| 距離 |
40m |
写真を見る |
| 周辺施設 |
JR平井駅北口 |
| 距離 |
20m |
写真を見る |
| 周辺施設 |
YSスーパーマーケット |
| 距離 |
5m |
写真を見る |
| 周辺施設 |
JR平井駅北口 |
| 距離 |
20m |
写真を見る |
| 周辺施設 |
JR平井駅北口 |
| 距離 |
10m |
写真を見る |
| 周辺施設 |
JR平井駅北口 |
| 距離 |
100m |
写真を見る |
| 周辺施設 |
JR平井駅北口 |
| 距離 |
100m |
写真を見る |
ここから簡単にお問い合わせをすることができます。
(SSLでの暗号化での送信を希望されるお客さまは
こちら
よりお問い合わせください)
お問い合わせを行う前に
「個人情報の取り扱いについて」を必ずお読みください。
「個人情報の取り扱いについて」に同意いただいた場合は「上記にご同意の上 確認画面へ進む」のボタンをクリックしてください。
個人情報の取り扱いについて
皆さまが送付された個人情報はアットホーム(株)のサーバを経由し、お問い合わせ先の不動産会社にメールまたはFAXにて転送されるためアットホーム(株)にも保管されます。アットホーム(株)で保管された個人情報の取り扱いについては、【こちら】をご覧ください。
また、本画面でご記入いただいた個人情報は、お問い合わせ先の不動産会社でも保管します。 お問い合わせ先の不動産会社が保管する個人情報の取り扱いについては、不動産会社に直接お問い合わせください。
東京都知事免許(13)第30403号 |
|---|
- 交通:
- JR総武線/平井駅 徒歩1分
- 東京都江戸川区平井3丁目30-2 ビューネタワー平井1-112
- TEL:
- 03-3683-8455
- FAX:
- 03-3683-7304
- 所属団体:
- (公社)東京都宅地建物取引業協会会員(公社)首都圏不動産公正取引協議会加盟
取引態様:一般媒介  - 00350122
|
- スマートフォンで
この不動産会社を見る

|
- 提携サイト等より掲載されている物件情報につきましては、不動産会社詳細情報にリンクされていないものがあります。
- 物件に関するお問合せは、物件詳細ページの「情報提供会社」に表示されている不動産会社へ直接お願いいたします。
- 間取図は、現況を優先させていただきます。
- 映像は物件の一部を撮影したものです。物件の契約にあたっての最終判断はご自身の判断に基づいて行ってください。
- 仲介手数料について

アットホームは物件情報の適正化に努めております。
内容に誤りがある場合にはこちらへご連絡ください。