大阪府大阪市中央区内本町1丁目(谷町四丁目駅)の中古マンション・新築マンション・分譲マンション:物件詳細
交通 所在地 |
駅徒歩 |
価格 |
構造 階建/階 |
間取り 専有面積 |
物件種目 築年月 |
|
地下鉄谷町線/谷町四丁目
大阪府大阪市中央区内本町1丁目
|
3分
|
4,750万円
|
RC
19階建 / 12階
|
1LDK
41.57m²
|
中古マンション
2024年12月(築1年1ヶ月)
|
|
ペット相談、二重床・二重天井、24時間換気システム、設計住宅性能評価書あり、建設住宅性能評価書あり、管理人日勤、IT重説対応物件
|
|
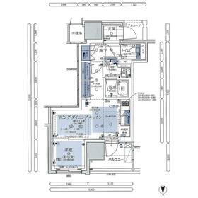
間取図
|
外観
|
<
その他の画像
>
|
| 交通 | 地下鉄谷町線 谷町四丁目駅 徒歩3分 |
|---|
| その他の交通 | 京阪本線 天満橋駅 徒歩12分 地下鉄堺筋線 堺筋本町駅 徒歩10分 |
| 所在地 |
大阪府大阪市中央区内本町1丁目
|
| 物件種目 |
中古マンション |
| 価格 |
4,750万円 |
平米単価 |
114.27万円 |
| 管理費等 |
10,378円 |
修繕積立金 |
6,230円 |
| 借地期間・地代(月額) |
2097年4月27日まで 6,100円 |
権利金 |
- |
| 敷金または保証金 |
- / 146,400万円 |
維持費等 |
解体準備金:3,610円/月、インターネット使用料:880円/月、セキュリティ費:200円/月 |
| その他一時金 |
- |
|
|
| 間取り |
1LDK(洋 3.7) |
専有面積 |
41.57m²(壁芯) |
| 階建 / 階 |
19階建 / 12階 |
バルコニー |
6.27m² |
| 築年月 |
2024年12月(築1年1ヶ月)
|
建物構造 |
RC |
| 駐車場 |
- |
総戸数 |
102戸 |
| 駐輪場 |
- |
バイク置き場 |
- |
| ペット |
相談 |
|
|
| 土地権利 |
定期借地権(地上権) |
敷地面積 |
786.77m² |
| 管理形態/管理員の勤務形態 |
全部委託/日勤(積水ハウスGMパートナーズ) |
国土法届出 |
- |
| アピールポイント |
■人気分譲マンションシリーズ【グランドメゾン】
■各線【谷町四丁目】駅まで徒歩3分の好立地
■ペット飼育可能(規約による制限あり)
■Low-Eガラス採用で省エネ効果あり
■各階ゴミ置場設置で便利です
■周辺スーパー、コンビニ等充実しております |
| 建物名・部屋番号 |
|
| リフォーム履歴 |
- |
| リノベーション履歴 |
- |
| 瑕疵保証 |
- |
| 瑕疵保険 |
- |
| 評価・証明書 |
- |
| 備考 |
主要採光面:北向き
施工会社:矢作建設工業株式会社
用途地域:商業地域
IT重説対応物件
|
| エネルギー消費性能 |
- |
| 断熱性能 |
- |
| 目安光熱費 |
- |
| バス・トイレ |
浴室暖房、浴室乾燥機、追焚機能、シャワー付洗面化粧台、温水洗浄便座 |
| キッチン |
食器洗浄乾燥機、食器乾燥機、浄水器、2口コンロ、キッチン床暖房 |
| 設備・サービス |
モニター付オートロック、収納スペース、室内洗濯機置場、クローゼット、オートロック、モニター付インターホン、ディンプルキー、ダブルロックドア、防犯カメラ、給湯、都市ガス、ケーブルTV、CS、複層ガラス |
| その他 |
宅配BOX、エレベーター2基以上、エレベーター |
| 条件等 |
- |
現況 |
所有者居住中 |
| 引渡可能時期 |
相談 |
物件番号 |
6988904459 |
| 情報公開日 |
2025年12月25日 |
次回更新予定日 |
2026年1月9日 |
| ケータイ用バーコード |
- スマートフォンでこの物件を見る
- スマートフォンからもこの物件をご覧になれます。
|
※「-」と表示されている項目については、情報提供会社にご確認ください。
| 周辺施設 |
セブンイレブン大阪内本町1丁目店 |
| 距離 |
57m |
| 周辺施設 |
地方独立行政法人大阪府立病院機構大阪国際がんセンター |
| 距離 |
672m |
ここから簡単にお問い合わせをすることができます。
(SSLでの暗号化での送信を希望されるお客さまは
こちら
よりお問い合わせください)
お問い合わせを行う前に
「個人情報の取り扱いについて」を必ずお読みください。
「個人情報の取り扱いについて」に同意いただいた場合は「上記にご同意の上 確認画面へ進む」のボタンをクリックしてください。
個人情報の取り扱いについて
皆さまが送付された個人情報はアットホーム(株)のサーバを経由し、お問い合わせ先の不動産会社にメールまたはFAXにて転送されるためアットホーム(株)にも保管されます。アットホーム(株)で保管された個人情報の取り扱いについては、【こちら】をご覧ください。
また、本画面でご記入いただいた個人情報は、お問い合わせ先の不動産会社でも保管します。 お問い合わせ先の不動産会社が保管する個人情報の取り扱いについては、不動産会社に直接お問い合わせください。
大阪府知事免許(1)第63846号 |
|---|
- 交通:
- 地下鉄御堂筋線/本町駅 徒歩3分
- 大阪府大阪市中央区北久宝寺町3丁目4-13 おおきにせんば心斎橋筋ビル3階
- TEL:
- 06-6732-8200
- 所属団体:
- (公社)全日本不動産協会会員(公社)近畿地区不動産公正取引協議会加盟
取引態様:専任媒介  - 50107560
|
- スマートフォンで
この不動産会社を見る

|
- 提携サイト等より掲載されている物件情報につきましては、不動産会社詳細情報にリンクされていないものがあります。
- 物件に関するお問合せは、物件詳細ページの「情報提供会社」に表示されている不動産会社へ直接お願いいたします。
- 間取図は、現況を優先させていただきます。
- 映像は物件の一部を撮影したものです。物件の契約にあたっての最終判断はご自身の判断に基づいて行ってください。
- 仲介手数料について

アットホームは物件情報の適正化に努めております。
内容に誤りがある場合にはこちらへご連絡ください。