大阪府茨木市穂積台(茨木駅)の中古マンション・新築マンション・分譲マンション:物件詳細
交通 所在地 |
駅徒歩 |
価格 |
構造 階建/階 |
間取り 専有面積 |
物件種目 築年月 |
|
JR東海道本線/茨木
大阪府茨木市穂積台
|
15分
|
2,500万円
|
SRC
10階建 / 3階
|
3LDK
72.34m²
|
中古マンション
1990年6月(築35年7ヶ月)
|
|
管理人日勤
|
|
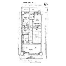
間取図
|
リビング
※家具配置イメージ図
|
<
その他の画像
>
|
| 交通 | JR東海道本線 茨木駅 徒歩15分 |
|---|
| その他の交通 | 大阪モノレール本線 宇野辺駅 徒歩7分 阪急京都線 南茨木駅 徒歩27分 |
| 所在地 |
大阪府茨木市穂積台
|
| 物件種目 |
中古マンション |
| 価格 |
2,500万円 |
平米単価 |
34.56万円 |
| 管理費等 |
8,000円 |
修繕積立金 |
8,830円 |
| 借地期間・地代(月額) |
- |
権利金 |
- |
| 敷金または保証金 |
- / - |
維持費等 |
- |
| その他一時金 |
- |
|
|
| 間取り |
3LDK(和 6 洋 5.1・5.2) |
専有面積 |
72.34m²(壁芯) |
| 階建 / 階 |
10階建 / 3階 |
バルコニー |
11.04m² |
| 築年月 |
1990年6月(築35年7ヶ月)
|
建物構造 |
SRC |
| 駐車場 |
- |
総戸数 |
- |
| 駐輪場 |
- |
バイク置き場 |
- |
| ペット |
-
|
|
|
| 土地権利 |
所有権 |
敷地面積 |
- |
| 管理形態/管理員の勤務形態 |
全部委託/日勤 |
国土法届出 |
- |
| アピールポイント |
~物件おすすめポイント~
■東向きで陽当り良好♪
□リフォームのご相談も承ります♪お気軽にご相談ください♪
■JR「茨木」駅まで徒歩15分でアクセス良好♪
□専有面積72.34㎡♪ファミリーにも人気の3LDK♪
■「穂積小学校」徒歩7分、「西陵中学校」徒歩11分で登下校も安心♪
□スーパーやコンビニ等徒歩10分圏内♪お買い物も楽々♪
■大阪~阪神間 11店舗展開中 おウチネットグループの仲介■
-営業担当がお客様に寄り添ってご提案いたします-
その他気になる点やお困りごとがございましたら
お気軽におウチネット茨木店(072-646-1000)までご連絡ください♪
◎周辺環境◎
マツゲン吹田インター青葉丘店 徒歩10分
MaxValu吹田千里丘店 徒歩15分
茨木みどりヶ丘病院 徒歩15分
セブンイレブン茨木穂積台店 徒歩4分
穂積小学校 徒歩7分
西陵中学校 徒歩11分
青葉丘公園 徒歩3分 |
| 建物名・部屋番号 |
グラン・ドムール茨木 |
| リフォーム履歴 |
- |
| リノベーション履歴 |
- |
| 瑕疵保証 |
- |
| 瑕疵保険 |
- |
| 評価・証明書 |
- |
| 備考 |
主要採光面:東向き
|
| エネルギー消費性能 |
- |
| 断熱性能 |
- |
| 目安光熱費 |
- |
| バス・トイレ |
温水洗浄便座 |
| キッチン |
システムキッチン、3口以上コンロ |
| 設備・サービス |
収納スペース、室内洗濯機置場、クローゼット、モニター付インターホン |
| その他 |
宅配BOX、エレベーター |
| 条件等 |
- |
現況 |
空家 |
| 引渡可能時期 |
即時 |
物件番号 |
6988915466 |
| 情報公開日 |
2025年12月26日 |
次回更新予定日 |
2026年1月9日 |
| ケータイ用バーコード |
- スマートフォンでこの物件を見る
- スマートフォンからもこの物件をご覧になれます。
|
※「-」と表示されている項目については、情報提供会社にご確認ください。
| 周辺施設 |
松源吹田インター青葉丘店 |
| 距離 |
715m |
写真を見る |
| 周辺施設 |
セブンイレブン茨木穂積台店 |
| 距離 |
203m |
写真を見る |
| 周辺施設 |
キリン堂茨木穂積台店 |
| 距離 |
406m |
写真を見る |
| 周辺施設 |
茨木市立西陵中学校 |
| 距離 |
1532m |
写真を見る |
| 周辺施設 |
茨木市立穂積小学校 |
| 距離 |
562m |
写真を見る |
| 周辺施設 |
社会医療法人祐生会茨木みどりヶ丘病院 |
| 距離 |
1234m |
写真を見る |
| 周辺施設 |
茨木下穂積郵便局 |
| 距離 |
615m |
写真を見る |
| 周辺施設 |
中穂積公園 |
| 距離 |
1574m |
写真を見る |
ここから簡単にお問い合わせをすることができます。
(SSLでの暗号化での送信を希望されるお客さまは
こちら
よりお問い合わせください)
お問い合わせを行う前に
「個人情報の取り扱いについて」を必ずお読みください。
「個人情報の取り扱いについて」に同意いただいた場合は「上記にご同意の上 確認画面へ進む」のボタンをクリックしてください。
個人情報の取り扱いについて
皆さまが送付された個人情報はアットホーム(株)のサーバを経由し、お問い合わせ先の不動産会社にメールまたはFAXにて転送されるためアットホーム(株)にも保管されます。アットホーム(株)で保管された個人情報の取り扱いについては、【こちら】をご覧ください。
また、本画面でご記入いただいた個人情報は、お問い合わせ先の不動産会社でも保管します。 お問い合わせ先の不動産会社が保管する個人情報の取り扱いについては、不動産会社に直接お問い合わせください。
大阪府知事免許(4)第53920号 |
|---|
- 交通:
- JR東海道本線/茨木駅 徒歩3分
- 大阪府茨木市春日1丁目5-17
- TEL:
- 072-646-1000
- FAX:
- 072-646-0001
- 所属団体:
- (一社)大阪府宅地建物取引業協会会員(公社)近畿地区不動産公正取引協議会加盟
取引態様:媒介  - 50024655
|
- スマートフォンで
この不動産会社を見る

|
- 提携サイト等より掲載されている物件情報につきましては、不動産会社詳細情報にリンクされていないものがあります。
- 物件に関するお問合せは、物件詳細ページの「情報提供会社」に表示されている不動産会社へ直接お願いいたします。
- 間取図は、現況を優先させていただきます。
- 映像は物件の一部を撮影したものです。物件の契約にあたっての最終判断はご自身の判断に基づいて行ってください。
- 仲介手数料について

アットホームは物件情報の適正化に努めております。
内容に誤りがある場合にはこちらへご連絡ください。