宮城県仙台市太白区西中田5丁目(南仙台駅)の中古マンション・新築マンション・分譲マンション:物件詳細
交通 所在地 |
駅徒歩 |
価格 |
構造 階建/階 |
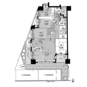
間取り 専有面積 |
物件種目 築年月 |
|
JR東北本線/南仙台
宮城県仙台市太白区西中田5丁目
|
10分
|
2,880万円
|
RC
12階建 / 1階
|
3LDK
82.12m²
|
中古マンション
2006年2月(築20年2ヶ月)
|
|
ペット相談、駐車場2台分、角部屋、南向き、2面採光、24時間換気システム
|
|
間取図
|
外観
|
その他の画像
|
| 交通 | JR東北本線 南仙台駅 徒歩10分 |
| 所在地 |
宮城県仙台市太白区西中田5丁目
|
| 物件種目 |
中古マンション |
| 価格 |
2,880万円 |
平米単価 |
35.08万円 |
| 管理費等 |
12,180円 |
修繕積立金 |
15,430円 |
| 借地期間・地代(月額) |
- |
権利金 |
- |
| 敷金または保証金 |
- / - |
維持費等 |
専用庭使用料:320円/月、駐車場使用料:6,000円/月 |
| その他一時金 |
- |
|
|
| 間取り |
3LDK(和 6 洋 10・6.4 LDK 11.6) |
専有面積 |
82.12m²(壁芯) |
| 階建 / 階 |
12階建 / 1階 |
バルコニー |
- |
| 築年月 |
2006年2月(築20年2ヶ月)
|
建物構造 |
RC |
| 駐車場 |
有 6,000円/月 |
総戸数 |
46戸 |
| 駐輪場 |
- |
バイク置き場 |
- |
| ペット |
2匹まで可 |
|
|
| 土地権利 |
所有権 |
敷地面積 |
- |
| 管理形態/管理員の勤務形態 |
全部委託/不在(ナイスコミュニティー(株)) |
国土法届出 |
- |
| アピールポイント |
給湯器全面入れ替え済(2019年5月)同時にキッチンもTOTOクラッソシリーズに新品交換済み。オーナーオプションで除菌水生成器あり。ピーカンの日には心も晴れるテラス付、更に南向なので、1日を通して日が当たりやすく冬場もあったか。また広々とした延床面積82.12㎡の居室空間で、その上留守番いらずの宅配BOX付だから、再配達のひと手間を省けます。お探しの方には嬉しいペット2匹まで相談可。家族の安心拠点になる3LDK。ご案内いたしますのでお気軽にご連絡ください。 |
| 建物名・部屋番号 |
ナイスブライトピア南仙台 101 |
| リフォーム履歴 |
■水回り:2019年5月 キッチン、給排水管 給湯器全面入替済。同時にキッチンTOTOクラッソシリーズに新品交換済。オーナーオプションで除菌水生成器あり ※実施年月は最も古い履歴を表示 |
| リノベーション履歴 |
- |
| 瑕疵保証 |
- |
| 瑕疵保険 |
- |
| 評価・証明書 |
- |
| 備考 |
主要採光面:南向き
施工会社:株式会社NIPPOコーポレーション
用途地域:近隣商業
延べ面積:4,260.92m²
入居中ですが内見可能
|
| エネルギー消費性能 |
- |
| 断熱性能 |
- |
| 目安光熱費 |
- |
| バス・トイレ |
浴室乾燥機、追焚機能、シャワー付洗面化粧台 |
| キッチン |
カウンターキッチン、システムキッチン、食器洗浄乾燥機、ディスポーザー、IHクッキングヒーター、3口以上コンロ |
| 設備・サービス |
モニター付オートロック、エアコン2台以上、室内洗濯機置場、クローゼット、オートロック、テラス、BS端子 |
| その他 |
宅配BOX、エレベーター |
| 条件等 |
- |
現況 |
所有者居住中 |
| 引渡可能時期 |
指定有り2026年4月20日 |
物件番号 |
6988980850 |
| 情報公開日 |
2026年1月14日 |
次回更新予定日 |
2026年3月27日 |
| ケータイ用バーコード |
- スマートフォンでこの物件を見る
- スマートフォンからもこの物件をご覧になれます。
|
※「-」と表示されている項目については、情報提供会社にご確認ください。
| 周辺施設 |
東北本線・常磐線 南仙台駅 |
| 距離 |
1000m |
写真を見る |
| 周辺施設 |
セブンイレブン |
| 距離 |
82m |
写真を見る |
| 周辺施設 |
ファミリーマート |
| 距離 |
220m |
写真を見る |
ここから簡単にお問い合わせをすることができます。
(SSLでの暗号化での送信を希望されるお客さまは
こちら
よりお問い合わせください)
お問い合わせを行う前に
「個人情報の取り扱いについて」を必ずお読みください。
「個人情報の取り扱いについて」に同意いただいた場合は「上記にご同意の上 確認画面へ進む」のボタンをクリックしてください。
個人情報の取り扱いについて
皆さまが送付された個人情報はアットホーム(株)のサーバを経由し、お問い合わせ先の不動産会社にメールまたはFAXにて転送されるためアットホーム(株)にも保管されます。アットホーム(株)で保管された個人情報の取り扱いについては、【こちら】をご覧ください。
また、本画面でご記入いただいた個人情報は、お問い合わせ先の不動産会社でも保管します。 お問い合わせ先の不動産会社が保管する個人情報の取り扱いについては、不動産会社に直接お問い合わせください。
宮城県知事免許(10)第2801号 |
|---|
- 交通:
- JR仙石線/陸前原ノ町駅 徒歩7分
- 宮城県仙台市宮城野区原町2丁目4-20 イーストキャッスル仙台1F
- TEL:
- 022-256-7011
- FAX:
- 022-256-7015
- 所属団体:
- (公社)宮城県宅地建物取引業協会会員東北地区不動産公正取引協議会加盟
取引態様:売主  - 20000416
|
- スマートフォンで
この不動産会社を見る

|
- 提携サイト等より掲載されている物件情報につきましては、不動産会社詳細情報にリンクされていないものがあります。
- 物件に関するお問合せは、物件詳細ページの「情報提供会社」に表示されている不動産会社へ直接お願いいたします。
- 間取図は、現況を優先させていただきます。
- 映像は物件の一部を撮影したものです。物件の契約にあたっての最終判断はご自身の判断に基づいて行ってください。
- 仲介手数料について

アットホームは物件情報の適正化に努めております。
内容に誤りがある場合にはこちらへご連絡ください。