富山県富山市城北町(富山駅)の中古マンション・新築マンション・分譲マンション:物件詳細
交通 所在地 |
駅徒歩 |
価格 |
構造 階建/階 |
間取り 専有面積 |
物件種目 築年月 |
|
あいの風とやま鉄道/富山
富山県富山市城北町
|
12分
|
650万円
|
SRC
10階建 / 4階
|
1DK
36.24m²
|
中古マンション
オーナーチェンジ
1990年11月(築35年4ヶ月)
|
|
前面棟無、隣接建物距離2m以上、管理人日勤
|
|
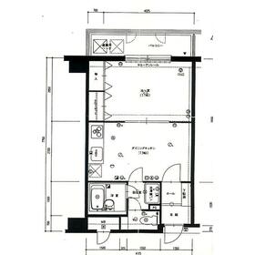
間取図
|
外観
|
その他の画像
|
| 交通 | あいの風とやま鉄道 富山駅 徒歩12分 |
| 所在地 |
富山県富山市城北町
|
| 物件種目 |
中古マンション |
| 価格 |
650万円 |
平米単価 |
17.94万円 |
| 管理費等 |
6,100円 |
修繕積立金 |
3,800円 |
| 借地期間・地代(月額) |
- |
権利金 |
- |
| 敷金または保証金 |
- / - |
維持費等 |
- |
| その他一時金 |
- |
|
|
| 間取り |
1DK(洋 7.1 DK 7.9) |
専有面積 |
36.24m²(壁芯) |
| 階建 / 階 |
10階建 / 4階 |
バルコニー |
5.67m² |
| 築年月 |
1990年11月(築35年4ヶ月)
|
建物構造 |
SRC |
| 駐車場 |
- |
総戸数 |
84戸 |
| 駐輪場 |
- |
バイク置き場 |
- |
| ペット |
-
|
|
|
| 土地権利 |
所有権 |
敷地面積 |
- |
| 管理形態/管理員の勤務形態 |
一部委託/日勤(アパコミュニティー株式会社) |
国土法届出 |
- |
| アピールポイント |
不在時の通販受け取りで重宝する宅配BOX付、更にライフスタイルにあわせて部屋を広げられる可動間仕切りがその時々の変化に対応します。またゆったりめの延床面積36.24㎡の居室空間で、その上合理的なシステムキッチン仕様なので、無駄や隙がありません。ちなみにお弁当や毎食用の常備菜をまとめて一気に作れるコンロ3口以上付です。一人暮らしやカップルにお勧めの1DK。現在賃貸でご入居頂いておりますので、オーナーチェンジ物件となります。 |
| 建物名・部屋番号 |
ダイアパレス城北 |
| リフォーム履歴 |
- |
| リノベーション履歴 |
- |
| 瑕疵保証 |
- |
| 瑕疵保険 |
- |
| 評価・証明書 |
- |
| 備考 |
主要採光面:北向き
用途地域:近隣商業
利回り:9.17%
年間予定賃料収入:62.4万円
|
| エネルギー消費性能 |
- |
| 断熱性能 |
- |
| 目安光熱費 |
- |
| バス・トイレ |
- |
| キッチン |
システムキッチン、3口以上コンロ |
| 設備・サービス |
モニター付オートロック、収納スペース、クローゼット、オートロック、給湯、全居室フローリング、都市ガス、可動間仕切り、エアコン、照明器具 |
| その他 |
宅配BOX、エレベーター2基以上、来客用駐車場、内廊下 |
| 条件等 |
オーナーチェンジ |
現況 |
賃貸中 |
| 引渡可能時期 |
相談 |
物件番号 |
6989016439 |
| 情報公開日 |
2026年1月9日 |
次回更新予定日 |
2026年2月6日 |
| ケータイ用バーコード |
- スマートフォンでこの物件を見る
- スマートフォンからもこの物件をご覧になれます。
|
※「-」と表示されている項目については、情報提供会社にご確認ください。
| 周辺施設 |
大阪屋ショップ北新町店 |
| 距離 |
1171m |
| 周辺施設 |
ファミリーマート富山千歳町店 |
| 距離 |
681m |
ここから簡単にお問い合わせをすることができます。
(SSLでの暗号化での送信を希望されるお客さまは
こちら
よりお問い合わせください)
お問い合わせを行う前に
「個人情報の取り扱いについて」を必ずお読みください。
「個人情報の取り扱いについて」に同意いただいた場合は「上記にご同意の上 確認画面へ進む」のボタンをクリックしてください。
個人情報の取り扱いについて
皆さまが送付された個人情報はアットホーム(株)のサーバを経由し、お問い合わせ先の不動産会社にメールまたはFAXにて転送されるためアットホーム(株)にも保管されます。アットホーム(株)で保管された個人情報の取り扱いについては、【こちら】をご覧ください。
また、本画面でご記入いただいた個人情報は、お問い合わせ先の不動産会社でも保管します。 お問い合わせ先の不動産会社が保管する個人情報の取り扱いについては、不動産会社に直接お問い合わせください。
富山県知事免許(13)第282号 |
|---|
- 交通:
- あいの風とやま鉄道/富山駅 徒歩3分
- 富山県富山市新富町1丁目3-11
- TEL:
- 076-433-0066
- FAX:
- 076-432-7779
- 所属団体:
- (公社)富山県宅地建物取引業協会会員北陸不動産公正取引協議会加盟
取引態様:専任媒介  - 40403785
|
- スマートフォンで
この不動産会社を見る

|
- 提携サイト等より掲載されている物件情報につきましては、不動産会社詳細情報にリンクされていないものがあります。
- 物件に関するお問合せは、物件詳細ページの「情報提供会社」に表示されている不動産会社へ直接お願いいたします。
- 間取図は、現況を優先させていただきます。
- 映像は物件の一部を撮影したものです。物件の契約にあたっての最終判断はご自身の判断に基づいて行ってください。
- 仲介手数料について

アットホームは物件情報の適正化に努めております。
内容に誤りがある場合にはこちらへご連絡ください。