広島県広島市西区井口台3丁目(商工センター入口駅)の中古マンション・新築マンション・分譲マンション:物件詳細
交通 所在地 |
駅徒歩 |
価格 |
構造 階建/階 |
間取り 専有面積 |
物件種目 築年月 |
|
広島電鉄宮島線/商工センター入口
広島県広島市西区井口台3丁目
|
24分
|
1,530万円
|
SRC
12階建 / 8階
|
3LDK
67.62m²
|
中古マンション
1989年2月(築37年2ヶ月)
|
|
ペット相談、楽器相談、南向き、バリアフリー、閑静な住宅街、前面棟無、隣接建物距離2m以上、管理人日勤
|
|
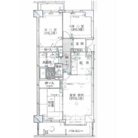
間取図
玄関が家の中心にある間取りは、短い生活動線で慌ただしい朝もスムーズ
|
外観
|
<
その他の画像
>
|
| 交通 | 広島電鉄宮島線 商工センター入口駅 徒歩24分 |
|---|
| その他の交通 | JR山陽本線 新井口駅 徒歩25分 広島電鉄宮島線 井口駅 徒歩26分 |
| 所在地 |
広島県広島市西区井口台3丁目
|
| 物件種目 |
中古マンション |
| 価格 |
1,530万円 |
平米単価 |
22.63万円 |
| 管理費等 |
6,600円 |
修繕積立金 |
8,800円 |
| 借地期間・地代(月額) |
- |
権利金 |
- |
| 敷金または保証金 |
- / - |
維持費等 |
- |
| その他一時金 |
- |
|
|
| 間取り |
3LDK(和 6 洋 6.3・5.9 LDK 13.8) |
専有面積 |
67.62m²(壁芯) |
| 階建 / 階 |
12階建 / 8階 |
バルコニー |
8.81m² |
| 築年月 |
1989年2月(築37年2ヶ月)
|
建物構造 |
SRC |
| 駐車場 |
有 6,500円/月 |
総戸数 |
62戸 |
| 駐輪場 |
有 無料 |
バイク置き場 |
- |
| ペット |
小型犬可・ 猫可 |
|
|
| 土地権利 |
所有権 |
敷地面積 |
2,821.43m² |
| 管理形態/管理員の勤務形態 |
全部委託/日勤(合人社計画研究所) |
国土法届出 |
- |
| アピールポイント |
■令和6年1月に内装リフォームしました!壁や天井のクロス張替え・塗装済、床もフローリング張替え済、ハウスクリーニング済だから即入居できます!
■8階だから瀬戸内海が一望できます!絶景のオーシャンビュー!南向きで日当たり・風通しも良好です。
■独立したキッチンスペース。料理に集中できます!3口ガスシステムキッチンで調理スペースも広めにとってあります。
■大切なペットと一緒に暮らせます♪猫もOKです。
■天袋の付いた3間の押入れのある和室。洋室5.9帖にはエアコン付
■廊下にも大きな収納があり、掃除機やストックしたものなどしっかり収納できます。
■幅広の洗面化粧台だから二人でも十分並んで余裕あります
■防犯カメラがありセキュリティも充実してます
■バイク置場、駐輪場もあります。
■敷地内駐車場は6,500円/月で利用可能です♪
■室内も大変綺麗に維持されております。内覧希望の方は、お気軽に一凛ホームまでお問い合わせください。 |
| 建物名・部屋番号 |
井口台パークヒルズ壱番館 |
| リフォーム履歴 |
■水回り:2024年1月 トイレ ■内装:2024年1月 全室クロス張替え、床(フローリング等) ※実施年月は最も古い履歴を表示 |
| リノベーション履歴 |
- |
| 瑕疵保証 |
- |
| 瑕疵保険 |
- |
| 評価・証明書 |
- |
| 備考 |
主要採光面:南向き
用途地域:1種中高
|
| エネルギー消費性能 |
- |
| 断熱性能 |
- |
| 目安光熱費 |
- |
| バス・トイレ |
温水洗浄便座 |
| キッチン |
システムキッチン、独立型キッチン、3口以上コンロ、グリル |
| 設備・サービス |
モニター付オートロック、収納スペース、室内洗濯機置場、クローゼット、オートロック、モニター付インターホン、ダブルロックドア、防犯カメラ、給湯、出窓、都市ガス、エアコン、駐輪場、火災警報器(報知機)、光ファイバー、BS端子 |
| その他 |
宅配BOX、エレベーター |
| 条件等 |
- |
現況 |
空家 |
| 引渡可能時期 |
即時 |
物件番号 |
6989099280 |
| 情報公開日 |
2026年1月16日 |
次回更新予定日 |
2026年4月2日 |
| ケータイ用バーコード |
- スマートフォンでこの物件を見る
- スマートフォンからもこの物件をご覧になれます。
|
※「-」と表示されている項目については、情報提供会社にご確認ください。
| 周辺施設 |
ファミリーマート広島井口台店 |
| 距離 |
740m |
ここから簡単にお問い合わせをすることができます。
(SSLでの暗号化での送信を希望されるお客さまは
こちら
よりお問い合わせください)
お問い合わせを行う前に
「個人情報の取り扱いについて」を必ずお読みください。
「個人情報の取り扱いについて」に同意いただいた場合は「上記にご同意の上 確認画面へ進む」のボタンをクリックしてください。
個人情報の取り扱いについて
皆さまが送付された個人情報はアットホーム(株)のサーバを経由し、お問い合わせ先の不動産会社にメールまたはFAXにて転送されるためアットホーム(株)にも保管されます。アットホーム(株)で保管された個人情報の取り扱いについては、【こちら】をご覧ください。
また、本画面でご記入いただいた個人情報は、お問い合わせ先の不動産会社でも保管します。 お問い合わせ先の不動産会社が保管する個人情報の取り扱いについては、不動産会社に直接お問い合わせください。
広島県知事免許(2)第10705号 |
|---|
- 交通:
- 広島電鉄本線/西観音町駅 徒歩10分
- 広島県広島市西区東観音町17-10-201
- TEL:
- 082-208-3913
- FAX:
- 082-208-3914
- 所属団体:
- (公社)広島県宅地建物取引業協会会員中国地区不動産公正取引協議会加盟
取引態様:媒介  - 50102438
|
- スマートフォンで
この不動産会社を見る

|
- 提携サイト等より掲載されている物件情報につきましては、不動産会社詳細情報にリンクされていないものがあります。
- 物件に関するお問合せは、物件詳細ページの「情報提供会社」に表示されている不動産会社へ直接お願いいたします。
- 間取図は、現況を優先させていただきます。
- 映像は物件の一部を撮影したものです。物件の契約にあたっての最終判断はご自身の判断に基づいて行ってください。
- 仲介手数料について

アットホームは物件情報の適正化に努めております。
内容に誤りがある場合にはこちらへご連絡ください。