東京都江戸川区東葛西4丁目(葛西駅)の中古マンション・新築マンション・分譲マンション:物件詳細
交通 所在地 |
駅徒歩 |
価格 |
構造 階建/階 |
間取り 専有面積 |
物件種目 築年月 |
|
東京メトロ東西線/葛西
東京都江戸川区東葛西4丁目
|
11分
|
6,480万円
|
RC
9階建 / 4階
|
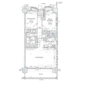
2LDK
76.05m²
|
中古マンション
2014年3月(築12年3ヶ月)
|
|
ペット相談、常時ゴミ出し可能、角部屋、南向き、振分、2面採光、24時間換気システム、閑静な住宅街、外観タイル張り、前面棟無、管理人巡回
|
|
間取図
|
外観
|
その他の画像
|
| 交通 | 東京メトロ東西線 葛西駅 徒歩11分 |
|---|
| その他の交通 | 東京メトロ東西線 浦安駅 徒歩20分 東京メトロ東西線 西葛西駅 徒歩30分 |
| 所在地 |
東京都江戸川区東葛西4丁目
|
| 物件種目 |
中古マンション |
| 価格 |
6,480万円 |
平米単価 |
85.21万円 |
| 管理費等 |
11,600円 |
修繕積立金 |
6,100円 |
| 借地期間・地代(月額) |
- |
権利金 |
- |
| 敷金または保証金 |
- / - |
維持費等 |
- |
| その他一時金 |
- |
|
|
| 間取り |
2LDK(洋 7・5.9) |
専有面積 |
76.05m²(壁芯) |
| 階建 / 階 |
9階建 / 4階 |
バルコニー |
13.00m² |
| 築年月 |
2014年3月(築12年3ヶ月)
|
建物構造 |
RC |
| 駐車場 |
- |
総戸数 |
43戸 |
| 駐輪場 |
- |
バイク置き場 |
- |
| ペット |
小型犬可・ 猫可 |
|
|
| 土地権利 |
所有権 |
敷地面積 |
1,111.00m² |
| 管理形態/管理員の勤務形態 |
全部委託/巡回(株式会社ダイイチ合人社建物管理) |
国土法届出 |
- |
| アピールポイント |
開放的なリビングは日当たり良好♪収納箇所も多く荷物の多い方も安心♪ |
| 建物名・部屋番号 |
|
| リフォーム履歴 |
- |
| リノベーション履歴 |
- |
| 瑕疵保証 |
- |
| 瑕疵保険 |
- |
| 評価・証明書 |
- |
| 備考 |
主要採光面:南向き
施工会社:不二建設株式会社
用途地域:1種住居
延べ面積:3,328.54m²
|
| エネルギー消費性能 |
- |
| 断熱性能 |
- |
| 目安光熱費 |
- |
| バス・トイレ |
TV付浴室、ミストサウナ、浴室乾燥機、追焚機能、温水洗浄便座 |
| キッチン |
カウンターキッチン、システムキッチン、浄水器、3口以上コンロ、グリル |
| 設備・サービス |
モニター付オートロック、全居室収納、ウォークインクローゼット、全居室エアコン、エアコン2台以上、床暖房、収納スペース、室内洗濯機置場、クローゼット、オートロック、モニター付インターホン、ディンプルキー、ダブルロックドア、防犯カメラ、給湯、全居室フローリング、室内物干し、都市ガス、エアコン、ワイドバルコニー、人感センサー付照明、インターネット対応、ケーブルTV |
| その他 |
宅配BOX、エレベーター |
| 条件等 |
- |
現況 |
所有者居住中 |
| 引渡可能時期 |
相談 |
物件番号 |
6989122522 |
| 情報公開日 |
2026年1月18日 |
次回更新予定日 |
2026年5月23日 |
| ケータイ用バーコード |
- スマートフォンでこの物件を見る
- スマートフォンからもこの物件をご覧になれます。
|
※「-」と表示されている項目については、情報提供会社にご確認ください。
| 周辺施設 |
まいばすけっと東葛西5丁目店 |
| 距離 |
489m |
| 周辺施設 |
ワークマンプラス江戸川東葛西店 |
| 距離 |
668m |
| 周辺施設 |
ローソン葛西さくら公園店 |
| 距離 |
240m |
| 周辺施設 |
セブンイレブン江戸川東葛西4丁目店 |
| 距離 |
326m |
| 周辺施設 |
ほっかほっか亭東葛西4丁目店 |
| 距離 |
231m |
| 周辺施設 |
ダイソー島忠ホームズ葛西店 |
| 距離 |
903m |
ここから簡単にお問い合わせをすることができます。
(SSLでの暗号化での送信を希望されるお客さまは
こちら
よりお問い合わせください)
お問い合わせを行う前に
「個人情報の取り扱いについて」を必ずお読みください。
「個人情報の取り扱いについて」に同意いただいた場合は「上記にご同意の上 確認画面へ進む」のボタンをクリックしてください。
個人情報の取り扱いについて
皆さまが送付された個人情報はアットホーム(株)のサーバを経由し、お問い合わせ先の不動産会社にメールまたはFAXにて転送されるためアットホーム(株)にも保管されます。アットホーム(株)で保管された個人情報の取り扱いについては、【こちら】をご覧ください。
また、本画面でご記入いただいた個人情報は、お問い合わせ先の不動産会社でも保管します。 お問い合わせ先の不動産会社が保管する個人情報の取り扱いについては、不動産会社に直接お問い合わせください。
東京都知事免許(1)第108055号 |
|---|
- 交通:
- JR山手線/渋谷駅 徒歩5分
- 東京都渋谷区道玄坂2丁目15-1 ノア道玄坂622号室
- TEL:
- 03-6416-9136
- FAX:
- 03-6416-9137
- 所属団体:
- (公社)東京都宅地建物取引業協会会員(公社)首都圏不動産公正取引協議会加盟
取引態様:専属専任媒介  - 00272887
|
- スマートフォンで
この不動産会社を見る

|
- 提携サイト等より掲載されている物件情報につきましては、不動産会社詳細情報にリンクされていないものがあります。
- 物件に関するお問合せは、物件詳細ページの「情報提供会社」に表示されている不動産会社へ直接お願いいたします。
- 間取図は、現況を優先させていただきます。
- 映像は物件の一部を撮影したものです。物件の契約にあたっての最終判断はご自身の判断に基づいて行ってください。
- 仲介手数料について

アットホームは物件情報の適正化に努めております。
内容に誤りがある場合にはこちらへご連絡ください。