静岡県富士宮市小泉(源道寺駅)の中古マンション・新築マンション・分譲マンション:物件詳細
交通 所在地 |
駅徒歩 |
価格 |
構造 階建/階 |
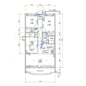
間取り 専有面積 |
物件種目 築年月 |
|
身延線/源道寺
静岡県富士宮市小泉
|
14分
|
650万円
|
RC
5階建 / 2階
|
3LDK
70.52m²
|
中古マンション
1992年9月(築33年7ヶ月)
|
|
ペット相談、閑静な住宅街、管理人巡回
|
|
間取図
|
外観
|
その他の画像
|
| 交通 | 身延線 源道寺駅 徒歩14分 |
|---|
| その他の交通 | 身延線 富士根駅 徒歩17分 身延線 富士宮駅 徒歩25分 |
| 所在地 |
静岡県富士宮市小泉
|
| 物件種目 |
中古マンション |
| 価格 |
650万円 |
平米単価 |
9.22万円 |
| 管理費等 |
14,060円 |
修繕積立金 |
11,300円 |
| 借地期間・地代(月額) |
- |
権利金 |
- |
| 敷金または保証金 |
- / - |
維持費等 |
- |
| その他一時金 |
- |
|
|
| 間取り |
3LDK |
専有面積 |
70.52m²(内法) |
| 階建 / 階 |
5階建 / 2階 |
バルコニー |
8.82m² |
| 築年月 |
1992年9月(築33年7ヶ月)
|
建物構造 |
RC |
| 駐車場 |
空無 |
総戸数 |
- |
| 駐輪場 |
空無 |
バイク置き場 |
空無 |
| ペット |
相談 |
|
|
| 土地権利 |
所有権 |
敷地面積 |
- |
| 管理形態/管理員の勤務形態 |
全部委託/巡回(日本ハウズイング株式会社) |
国土法届出 |
- |
| アピールポイント |
◇ご来店いただいたお客様には、条件に合った物件をご紹介!
◇現地のご案内はもちろん、住宅ローン相談や資金計画表をご提示いたします
◇リフォーム相談も承ります
当社は、賃貸・管理・売買・リフォームの相談を一括で行う不動産の総合サービス会社です。
全国1100店舗のアパマンショップに加盟し、総合不動産企業ならではのネット戦略と
エリア随一の閲覧数を誇る自社サイトを活用し、幅広いお客様にご利用いただいております。
宅建士・FPが、お客様に寄り添いサポートいたします。
是非お気軽にご相談ください。 |
| 建物名・部屋番号 |
フジヤ小泉マンション |
| リフォーム履歴 |
- |
| リノベーション履歴 |
- |
| 瑕疵保証 |
- |
| 瑕疵保険 |
- |
| 評価・証明書 |
- |
| 備考 |
用途地域:1種住居
|
| エネルギー消費性能 |
- |
| 断熱性能 |
- |
| 目安光熱費 |
- |
| バス・トイレ |
- |
| キッチン |
- |
| 設備・サービス |
バイク置き場、収納スペース、室内洗濯機置場、駐輪場、インターネット対応 |
| その他 |
エレベーター |
| 条件等 |
- |
現況 |
空家 |
| 引渡可能時期 |
相談 |
物件番号 |
6989153816 |
| 仲介手数料 |
不要 |
|
|
| 情報公開日 |
2026年2月13日 |
次回更新予定日 |
2026年3月13日 |
| ケータイ用バーコード |
- スマートフォンでこの物件を見る
- スマートフォンからもこの物件をご覧になれます。
|
※「-」と表示されている項目については、情報提供会社にご確認ください。
| 周辺施設 |
マックスバリュ富士宮若宮店 |
| 距離 |
691m |
写真を見る |
| 周辺施設 |
ファミリーマート富士宮小泉店 |
| 距離 |
527m |
写真を見る |
| 周辺施設 |
セブンイレブン富士市天間西店 |
| 距離 |
790m |
写真を見る |
| 周辺施設 |
カインズ富士宮小泉店 |
| 距離 |
223m |
写真を見る |
ここから簡単にお問い合わせをすることができます。
(SSLでの暗号化での送信を希望されるお客さまは
こちら
よりお問い合わせください)
お問い合わせを行う前に
「個人情報の取り扱いについて」を必ずお読みください。
「個人情報の取り扱いについて」に同意いただいた場合は「上記にご同意の上 確認画面へ進む」のボタンをクリックしてください。
個人情報の取り扱いについて
皆さまが送付された個人情報はアットホーム(株)のサーバを経由し、お問い合わせ先の不動産会社にメールまたはFAXにて転送されるためアットホーム(株)にも保管されます。アットホーム(株)で保管された個人情報の取り扱いについては、【こちら】をご覧ください。
また、本画面でご記入いただいた個人情報は、お問い合わせ先の不動産会社でも保管します。 お問い合わせ先の不動産会社が保管する個人情報の取り扱いについては、不動産会社に直接お問い合わせください。
静岡県知事免許(4)第12659号 |
|---|
- 交通:
- 東海道本線/富士駅 【バス】 富士市役所 停歩5分
- 静岡県富士市永田町2丁目33
- TEL:
- 0545-55-3335
- FAX:
- 0545-67-0886
- 所属団体:
- (公社)静岡県宅地建物取引業協会会員東海不動産公正取引協議会加盟
取引態様:売主  - 40100894
|
- スマートフォンで
この不動産会社を見る

|
- 提携サイト等より掲載されている物件情報につきましては、不動産会社詳細情報にリンクされていないものがあります。
- 物件に関するお問合せは、物件詳細ページの「情報提供会社」に表示されている不動産会社へ直接お願いいたします。
- 間取図は、現況を優先させていただきます。
- 映像は物件の一部を撮影したものです。物件の契約にあたっての最終判断はご自身の判断に基づいて行ってください。
- 仲介手数料について

アットホームは物件情報の適正化に努めております。
内容に誤りがある場合にはこちらへご連絡ください。