東京都小金井市本町5丁目(武蔵小金井駅)の中古マンション・新築マンション・分譲マンション:物件詳細
交通 所在地 |
駅徒歩 |
価格 |
構造 階建/階 |
間取り 専有面積 |
物件種目 築年月 |
|
JR中央線/武蔵小金井 [バス利用可] バス 10分 ナンジャモンジャ通り入口 停歩1分
東京都小金井市本町5丁目
|
13分
|
9,200万円
|
RC
6階建 / 6階
|
3LDK
75.92m²
|
中古マンション
2003年2月(築23年1ヶ月)
|
|
ペット相談、最上階、南向き、24時間セキュリティー、24時間換気システム、閑静な住宅街、管理人常駐
|
|
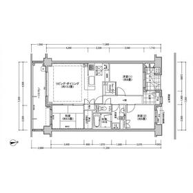
間取図
|
|
<
その他の画像
>
|
| 交通 | JR中央線 武蔵小金井駅 徒歩13分 [バス利用可] バス 10分 ナンジャモンジャ通り入口 停歩1分 |
| 所在地 |
東京都小金井市本町5丁目
|
| 物件種目 |
中古マンション |
| 価格 |
9,200万円 |
平米単価 |
121.19万円 |
| 管理費等 |
11,200円 |
修繕積立金 |
27,060円 |
| 借地期間・地代(月額) |
- |
権利金 |
- |
| 敷金または保証金 |
- / - |
維持費等 |
屋上ルーフバルコニー:1,000円/月 |
| その他一時金 |
なし |
|
|
| 間取り |
3LDK(和 5.5 洋 7・5 LDK 16.5) |
専有面積 |
75.92m²(内法) |
| 階建 / 階 |
6階建 / 6階 |
バルコニー |
12.07m² |
| 築年月 |
2003年2月(築23年1ヶ月)
|
建物構造 |
RC |
| 駐車場 |
有 15,000円/月 |
総戸数 |
39戸 |
| 駐輪場 |
有 600円/月 |
バイク置き場 |
- |
| ペット |
小型犬可・ 猫可 |
|
|
| 土地権利 |
所有権 |
敷地面積 |
133,237.00m² |
| 管理形態/管理員の勤務形態 |
全部委託/常駐(東急コミュニティー) |
国土法届出 |
- |
| アピールポイント |
お探しの方には嬉しいペット(小型犬)相談可。広々とした延床面積75.92㎡の居室空間、更に突き抜ける空間を堪能できるルーフバルコニー付なので、夜空を独り占めすることもできます。また受け取りに心配なしの宅配BOX付で、その上閑静な住宅街立地の物件だから、騒々しい街の喧噪から離れて生活できます。ちなみに奥行き(出幅)を一般的なバルコニーより広めにとったワイドバルコニー付です。家族の安心拠点になる3LDK。実際の空間をご自身で体感ください。 |
| 建物名・部屋番号 |
|
| リフォーム履歴 |
- |
| リノベーション履歴 |
- |
| 瑕疵保証 |
- |
| 瑕疵保険 |
- |
| 評価・証明書 |
- |
| 備考 |
主要採光面:南向き
施工会社:株式会社協立設計事務所
用途地域:1種中高、2種中高
ウォークインクローゼット付き、玄関前にトランクルーム完備 ペット飼育可能 各部屋に収納付
|
| エネルギー消費性能 |
- |
| 断熱性能 |
- |
| 目安光熱費 |
- |
| バス・トイレ |
浴室乾燥機、オートバス、追焚機能、温水洗浄便座 |
| キッチン |
カウンターキッチン、システムキッチン、3口以上コンロ |
| 設備・サービス |
モニター付オートロック、全居室収納、ウォークインクローゼット、床暖房、収納スペース、室内洗濯機置場、トランクルーム、シューズインクローゼット、クローゼット、オートロック、モニター付インターホン、ディンプルキー、ダブルロックドア、防犯カメラ、洗濯機置場、給湯、全居室フローリング、都市ガス、エアコン、暖房、冷房、ワイドバルコニー、ルーフバルコニー、駐輪場、火災警報器(報知機)、インターネット対応、光ファイバー |
| その他 |
宅配BOX、エレベーター |
| 条件等 |
- |
現況 |
空家 |
| 引渡可能時期 |
相談 |
物件番号 |
6989189194 |
| 仲介手数料 |
売買代金の3%+6万円 |
|
|
| 情報公開日 |
2026年1月27日 |
次回更新予定日 |
2026年2月26日 |
| ケータイ用バーコード |
- スマートフォンでこの物件を見る
- スマートフォンからもこの物件をご覧になれます。
|
※「-」と表示されている項目については、情報提供会社にご確認ください。
| 周辺施設 |
フレッシュネスバーガー |
| 距離 |
5m |
写真を見る |
| 周辺施設 |
24時間スーパー |
| 距離 |
10m |
写真を見る |
| 周辺施設 |
ガソリンスタンド |
| 距離 |
10m |
写真を見る |
ここから簡単にお問い合わせをすることができます。
(SSLでの暗号化での送信を希望されるお客さまは
こちら
よりお問い合わせください)
お問い合わせを行う前に
「個人情報の取り扱いについて」を必ずお読みください。
「個人情報の取り扱いについて」に同意いただいた場合は「上記にご同意の上 確認画面へ進む」のボタンをクリックしてください。
個人情報の取り扱いについて
皆さまが送付された個人情報はアットホーム(株)のサーバを経由し、お問い合わせ先の不動産会社にメールまたはFAXにて転送されるためアットホーム(株)にも保管されます。アットホーム(株)で保管された個人情報の取り扱いについては、【こちら】をご覧ください。
また、本画面でご記入いただいた個人情報は、お問い合わせ先の不動産会社でも保管します。 お問い合わせ先の不動産会社が保管する個人情報の取り扱いについては、不動産会社に直接お問い合わせください。
東京都知事免許(2)第103581号 |
|---|
- 交通:
- 東京メトロ副都心線/新宿三丁目駅 徒歩8分
- 東京都新宿区新宿6丁目28-8 ラ・ベルティ新宿1002号室
- TEL:
- 03-6709-6770
- FAX:
- 03-6709-6073
- 所属団体:
- (公社)全日本不動産協会会員(公社)首都圏不動産公正取引協議会加盟
取引態様:代理  - 00266668
|
- スマートフォンで
この不動産会社を見る

|
- 提携サイト等より掲載されている物件情報につきましては、不動産会社詳細情報にリンクされていないものがあります。
- 物件に関するお問合せは、物件詳細ページの「情報提供会社」に表示されている不動産会社へ直接お願いいたします。
- 間取図は、現況を優先させていただきます。
- 映像は物件の一部を撮影したものです。物件の契約にあたっての最終判断はご自身の判断に基づいて行ってください。
- 仲介手数料について

アットホームは物件情報の適正化に努めております。
内容に誤りがある場合にはこちらへご連絡ください。