東京都港区南青山7丁目(表参道駅)の中古マンション・新築マンション・分譲マンション:物件詳細
交通 所在地 |
駅徒歩 |
価格 |
構造 階建/階 |
間取り 専有面積 |
物件種目 築年月 |
|
東京メトロ銀座線/表参道
東京都港区南青山7丁目
|
12分
|
33,000万円
|
RC
地上18階地下2階建 / 5階
|
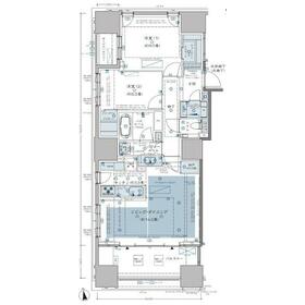
2LDK
80.02m²
|
中古マンション
2022年1月(築4年2ヶ月)
|
|
フロントサービス、角部屋、南向き、24時間セキュリティー、24時間換気システム、閑静な住宅街、管理人日勤
|
|
間取図
最新の設備と洗練された意匠が、新築未入居ならではの清廉な空気感と共に提供されます。
|
外観
洗練されたライフスタイルを求める富裕層にとって、南青山のアドレスと「新築未入居」という響きは最強のブランドになります。
|
その他の画像
|
| 交通 | 東京メトロ銀座線 表参道駅 徒歩12分 |
|---|
| その他の交通 | 東京メトロ日比谷線 広尾駅 徒歩14分 東急東横線 渋谷駅 徒歩17分 |
| 所在地 |
東京都港区南青山7丁目
|
| 物件種目 |
中古マンション |
| 価格 |
33,000万円 |
平米単価 |
412.40万円 |
| 管理費等 |
45,820円 |
修繕積立金 |
6,950円 |
| 借地期間・地代(月額) |
- |
権利金 |
- |
| 敷金または保証金 |
- / - |
維持費等 |
- |
| その他一時金 |
- |
|
|
| 間取り |
2LDK(洋 2) |
専有面積 |
80.02m²(壁芯) |
| 階建 / 階 |
地上18階地下2階建 / 5階 |
バルコニー |
3.87m² |
| 築年月 |
2022年1月(築4年2ヶ月)
|
建物構造 |
RC |
| 駐車場 |
- |
総戸数 |
105戸 |
| 駐輪場 |
- |
バイク置き場 |
- |
| ペット |
-
|
|
|
| 土地権利 |
所有権 |
敷地面積 |
- |
| 管理形態/管理員の勤務形態 |
全部委託/日勤(住友不動産建物サービス) |
国土法届出 |
- |
| アピールポイント |
☆居住用:清廉な住空間で叶える理想の都市生活
最新の設備と洗練された意匠が、新築未入居ならではの清廉な空気感と共に提供されます。第一種中高層住居専用地域に守られた静かな環境で、誰の手にも触れられていない水回りや居室を使い始める喜びは、この物件だからこそ得られる特権です。愛犬と共に、都心中枢の利便性と高台の平穏を心ゆくまで享受できる理想の住まいです。
☆投資:新築未入居がもたらす高稼働・高収益
洗練されたライフスタイルを求める富裕層にとって、南青山のアドレスと「新築未入居」という響きは最強のブランドになります。内装や設備が未使用であるため、賃貸募集時にも圧倒的な訴求力を発揮し、最高水準の賃料設定が可能です。
☆資産形成:歴史ある高台に刻む新たな資産価値
南青山の閑静な邸宅街にありながら、大規模再開発が進む周辺エリアの恩恵を享受できる好立地です。2022年築の新築未入居物件は、建物のコンディションが最高潮に保たれており、中古市場においても他を圧倒する優位性を誇ります。流行に左右されない重厚な建築美は、長期的な資産形成における盤石な礎となってくれます。 |
| 建物名・部屋番号 |
グランドヒルズ南青山 501 |
| リフォーム履歴 |
- |
| リノベーション履歴 |
- |
| 瑕疵保証 |
- |
| 瑕疵保険 |
- |
| 評価・証明書 |
- |
| 備考 |
主要採光面:南向き
|
| エネルギー消費性能 |
- |
| 断熱性能 |
- |
| 目安光熱費 |
- |
| バス・トイレ |
浴室乾燥機、追焚機能、シャワー付洗面化粧台、温水洗浄便座 |
| キッチン |
システムキッチン、食器洗浄乾燥機、食器乾燥機、浄水器、3口以上コンロ |
| 設備・サービス |
モニター付オートロック、全居室収納、床暖房、収納スペース、室内洗濯機置場、クローゼット、オートロック、ダブルロックドア、防犯カメラ、防犯用ガラス、洗濯機置場、給湯、都市ガス、エアコン、暖房、冷房、二面バルコニー、人感センサー付照明、ダウンライト、インターネット対応 |
| その他 |
宅配BOX、エレベーター2基以上、エレベーター |
| 条件等 |
- |
現況 |
完成済 |
| 引渡可能時期 |
即時 |
物件番号 |
6989199012 |
| 情報公開日 |
2026年1月23日 |
次回更新予定日 |
2026年2月17日 |
| ケータイ用バーコード |
- スマートフォンでこの物件を見る
- スマートフォンからもこの物件をご覧になれます。
|
※「-」と表示されている項目については、情報提供会社にご確認ください。
ここから簡単にお問い合わせをすることができます。
(SSLでの暗号化での送信を希望されるお客さまは
こちら
よりお問い合わせください)
お問い合わせを行う前に
「個人情報の取り扱いについて」を必ずお読みください。
「個人情報の取り扱いについて」に同意いただいた場合は「上記にご同意の上 確認画面へ進む」のボタンをクリックしてください。
個人情報の取り扱いについて
皆さまが送付された個人情報はアットホーム(株)のサーバを経由し、お問い合わせ先の不動産会社にメールまたはFAXにて転送されるためアットホーム(株)にも保管されます。アットホーム(株)で保管された個人情報の取り扱いについては、【こちら】をご覧ください。
また、本画面でご記入いただいた個人情報は、お問い合わせ先の不動産会社でも保管します。 お問い合わせ先の不動産会社が保管する個人情報の取り扱いについては、不動産会社に直接お問い合わせください。
埼玉県知事免許(3)第22317号 |
|---|
- 交通:
- JR武蔵野線/東浦和駅 【バス】12分 松ノ木東公園 停歩1分
- 埼玉県さいたま市緑区松木3丁目15-16
- TEL:
- 048-829-7836
- FAX:
- 048-829-7837
- 所属団体:
- (公社)埼玉県宅地建物取引業協会会員(公社)首都圏不動産公正取引協議会加盟
取引態様:媒介  - 00106978
|
- スマートフォンで
この不動産会社を見る

|
- 提携サイト等より掲載されている物件情報につきましては、不動産会社詳細情報にリンクされていないものがあります。
- 物件に関するお問合せは、物件詳細ページの「情報提供会社」に表示されている不動産会社へ直接お願いいたします。
- 間取図は、現況を優先させていただきます。
- 映像は物件の一部を撮影したものです。物件の契約にあたっての最終判断はご自身の判断に基づいて行ってください。
- 仲介手数料について

アットホームは物件情報の適正化に努めております。
内容に誤りがある場合にはこちらへご連絡ください。