宮城県仙台市太白区あすと長町4丁目(長町駅)の中古マンション・新築マンション・分譲マンション:物件詳細
交通 所在地 |
駅徒歩 |
価格 |
構造 階建/階 |
間取り 専有面積 |
物件種目 築年月 |
|
JR東北本線/長町
宮城県仙台市太白区あすと長町4丁目
|
8分
|
6,180万円
|
RC
24階建 / 21階
|
3LDK
90.44m²
|
中古マンション
賃貸中
2017年9月(築8年6ヶ月)
|
|
ペット相談、フロントサービス、角部屋、南向き、免震構造、2面採光、24時間換気システム、前面棟無、管理人日勤
|
|
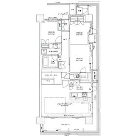
間取図
|
外観
|
<
その他の画像
>
|
| 交通 | JR東北本線 長町駅 徒歩8分 |
|---|
| その他の交通 | 仙台市南北線 長町南駅 徒歩18分 仙台市南北線 長町一丁目駅 徒歩20分 |
| 所在地 |
宮城県仙台市太白区あすと長町4丁目
|
| 物件種目 |
中古マンション |
| 価格 |
6,180万円 |
平米単価 |
68.34万円 |
| 管理費等 |
10,983円 |
修繕積立金 |
11,310円 |
| 借地期間・地代(月額) |
- |
権利金 |
- |
| 敷金または保証金 |
- / - |
維持費等 |
スマートエネルギーサービス利用料:1,221円/月、自治会費:3,000円/年 |
| その他一時金 |
- |
|
|
| 間取り |
3LDK(洋 7・5.4・5 LDK 19.1) |
専有面積 |
90.44m²(壁芯) |
| 階建 / 階 |
24階建 / 21階 |
バルコニー |
19.12m² |
| 築年月 |
2017年9月(築8年6ヶ月)
|
建物構造 |
RC |
| 駐車場 |
- |
総戸数 |
345戸 |
| 駐輪場 |
- |
バイク置き場 |
- |
| ペット |
小型犬可・ 猫可・ 管理規約による制限があります |
|
|
| 土地権利 |
所有権 |
敷地面積 |
- |
| 管理形態/管理員の勤務形態 |
全部委託/日勤(株式会社ワールドアイシティ) |
国土法届出 |
- |
| アピールポイント |
広々90㎡の高層階の南東角住戸。たっぷりと収納できるファミリークローゼットはお部屋をすっきり保て荷物の多い方にも安心です。 |
| 建物名・部屋番号 |
ワンパークレジデンシャルタワーズ |
| リフォーム履歴 |
- |
| リノベーション履歴 |
- |
| 瑕疵保証 |
- |
| 瑕疵保険 |
- |
| 評価・証明書 |
- |
| 備考 |
主要採光面:南向き
用途地域:商業地域
現在賃借人様がお住まいですが2月末日までに退去予定です。
|
| エネルギー消費性能 |
- |
| 断熱性能 |
- |
| 目安光熱費 |
- |
| バス・トイレ |
追焚機能、シャワー付洗面化粧台、温水洗浄便座 |
| キッチン |
カウンターキッチン、システムキッチン、食器洗浄乾燥機、浄水器、IHクッキングヒーター、3口以上コンロ |
| 設備・サービス |
全居室収納、ウォークインクローゼット、エアコン2台以上、床暖房、室内洗濯機置場、オートロック、モニター付インターホン、ディンプルキー、ダブルロックドア、防犯カメラ、給湯、全居室フローリング、都市ガス、二面バルコニー、インターネット対応、CS、BS端子、複層ガラス |
| その他 |
宅配BOX、ペット用施設、共用シアタールーム、敷地内AED有、エレベーター2基以上、共用ゲストルーム、共用パーティルーム |
| 条件等 |
- |
現況 |
賃貸中 |
| 引渡可能時期 |
指定有り2026年3月1日 |
物件番号 |
6989231650 |
| 仲介手数料 |
210.54万円 |
|
|
| 情報公開日 |
2026年1月26日 |
次回更新予定日 |
2026年2月15日 |
| ケータイ用バーコード |
- スマートフォンでこの物件を見る
- スマートフォンからもこの物件をご覧になれます。
|
※「-」と表示されている項目については、情報提供会社にご確認ください。
| 周辺施設 |
ヨークベニマルあすと長町店 |
| 距離 |
685m |
| 周辺施設 |
ファミリーマート長町六丁目店 |
| 距離 |
535m |
| 周辺施設 |
あすと長町こぶたの城こども園 |
| 距離 |
429m |
| 周辺施設 |
tekuteながまち郵便局 |
| 距離 |
772m |
ここから簡単にお問い合わせをすることができます。
(SSLでの暗号化での送信を希望されるお客さまは
こちら
よりお問い合わせください)
お問い合わせを行う前に
「個人情報の取り扱いについて」を必ずお読みください。
「個人情報の取り扱いについて」に同意いただいた場合は「上記にご同意の上 確認画面へ進む」のボタンをクリックしてください。
個人情報の取り扱いについて
皆さまが送付された個人情報はアットホーム(株)のサーバを経由し、お問い合わせ先の不動産会社にメールまたはFAXにて転送されるためアットホーム(株)にも保管されます。アットホーム(株)で保管された個人情報の取り扱いについては、【こちら】をご覧ください。
また、本画面でご記入いただいた個人情報は、お問い合わせ先の不動産会社でも保管します。 お問い合わせ先の不動産会社が保管する個人情報の取り扱いについては、不動産会社に直接お問い合わせください。
宮城県知事免許(6)第4432号 |
|---|
- 交通:
- 仙台市南北線/仙台駅 徒歩2分
- 宮城県仙台市青葉区中央2丁目6-8 ホテルプレミアムグリーンプラス1F
- TEL:
- 022-213-5881
- FAX:
- 022-225-8002
- 所属団体:
- (公社)宮城県宅地建物取引業協会会員東北地区不動産公正取引協議会加盟
取引態様:一般媒介  - 20001300
|
- スマートフォンで
この不動産会社を見る

|
- 提携サイト等より掲載されている物件情報につきましては、不動産会社詳細情報にリンクされていないものがあります。
- 物件に関するお問合せは、物件詳細ページの「情報提供会社」に表示されている不動産会社へ直接お願いいたします。
- 間取図は、現況を優先させていただきます。
- 映像は物件の一部を撮影したものです。物件の契約にあたっての最終判断はご自身の判断に基づいて行ってください。
- 仲介手数料について

アットホームは物件情報の適正化に努めております。
内容に誤りがある場合にはこちらへご連絡ください。