北海道札幌市北区新川三条3丁目(新川駅)の中古マンション・新築マンション・分譲マンション:物件詳細
交通 所在地 |
駅徒歩 |
価格 |
構造 階建/階 |
間取り 専有面積 |
物件種目 築年月 |
|
JR札沼線/新川
北海道札幌市北区新川三条3丁目
|
5分
|
2,480万円
|
RC
地上10階地下1階建 / メゾネット9階~10階部分
|
3LDK
105.54m²
|
中古マンション
1990年1月(築36年3ヶ月)
|
|
ペット相談、最上階、メゾネット、管理人日勤
|
|
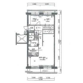
間取図
9階平面図
|
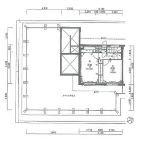
間取図
10階平面図
|
その他の画像
|
| 交通 | JR札沼線 新川駅 徒歩5分 |
| 所在地 |
北海道札幌市北区新川三条3丁目
|
| 物件種目 |
中古マンション |
| 価格 |
2,480万円 |
平米単価 |
23.50万円 |
| 管理費等 |
12,680円 |
修繕積立金 |
13,720円 |
| 借地期間・地代(月額) |
- |
権利金 |
- |
| 敷金または保証金 |
- / - |
維持費等 |
- |
| その他一時金 |
- |
|
|
| 間取り |
3LDK(洋 9.4・7.4・6 LDK 19.6) |
専有面積 |
105.54m²(壁芯) |
| 階建 / 階 |
地上10階地下1階建 / メゾネット9階~10階部分 |
バルコニー |
12.79m² |
| 築年月 |
1990年1月(築36年3ヶ月)
|
建物構造 |
RC |
| 駐車場 |
有 5,000円/月 |
総戸数 |
126戸 |
| 駐輪場 |
有 1,000円/年 |
バイク置き場 |
有 5,000円/年 |
| ペット |
ペット規約有 |
|
|
| 土地権利 |
所有権 |
敷地面積 |
6,912.06m² |
| 管理形態/管理員の勤務形態 |
一部委託/日勤(太平洋興発株式会社) |
国土法届出 |
- |
| アピールポイント |
広々とした延床面積105.54㎡で居住スペースにゆとり充分。また洗濯機が雨ざらしにならない室内洗濯機置場有だから、高機能な洗濯機の電装機能を風雨にさらすことはありません。家族が帰宅を焦がれる3LDK。是非その目でお確かめください。 |
| 建物名・部屋番号 |
|
| リフォーム履歴 |
- |
| リノベーション履歴 |
- |
| 瑕疵保証 |
- |
| 瑕疵保険 |
- |
| 評価・証明書 |
- |
| 備考 |
主要採光面:南東向き
施工会社:株式会社錢高組
用途地域:2種中高
延べ面積:11,831.12m²
|
| エネルギー消費性能 |
- |
| 断熱性能 |
- |
| 目安光熱費 |
- |
| バス・トイレ |
- |
| キッチン |
- |
| 設備・サービス |
バイク置き場、室内洗濯機置場、駐輪場 |
| その他 |
エレベーター |
| 条件等 |
- |
現況 |
所有者居住中 |
| 引渡可能時期 |
相談 |
物件番号 |
6989242078 |
| 仲介手数料 |
売買代金の3%+6万円 |
|
|
| 情報公開日 |
2026年1月27日 |
次回更新予定日 |
2026年4月6日 |
| ケータイ用バーコード |
- スマートフォンでこの物件を見る
- スマートフォンからもこの物件をご覧になれます。
|
※「-」と表示されている項目については、情報提供会社にご確認ください。
| 周辺施設 |
マックスバリュエクスプレス 新川3条店 |
| 距離 |
110m |
写真を見る |
| 周辺施設 |
ツルハドラッグ 新川3条店 |
| 距離 |
130m |
写真を見る |
| 周辺施設 |
札幌市立新川中央小学校 |
| 距離 |
220m |
写真を見る |
| 周辺施設 |
札幌市立新川中学校 |
| 距離 |
120m |
写真を見る |
| 周辺施設 |
新川にしまきば公園 |
| 距離 |
170m |
写真を見る |
| 周辺施設 |
セブン-イレブン 札幌新川2条店 |
| 距離 |
210m |
写真を見る |
| 周辺施設 |
ジェイ・アール生鮮市場 新川店 |
| 距離 |
550m |
写真を見る |
ここから簡単にお問い合わせをすることができます。
(SSLでの暗号化での送信を希望されるお客さまは
こちら
よりお問い合わせください)
お問い合わせを行う前に
「個人情報の取り扱いについて」を必ずお読みください。
「個人情報の取り扱いについて」に同意いただいた場合は「上記にご同意の上 確認画面へ進む」のボタンをクリックしてください。
個人情報の取り扱いについて
皆さまが送付された個人情報はアットホーム(株)のサーバを経由し、お問い合わせ先の不動産会社にメールまたはFAXにて転送されるためアットホーム(株)にも保管されます。アットホーム(株)で保管された個人情報の取り扱いについては、【こちら】をご覧ください。
また、本画面でご記入いただいた個人情報は、お問い合わせ先の不動産会社でも保管します。 お問い合わせ先の不動産会社が保管する個人情報の取り扱いについては、不動産会社に直接お問い合わせください。
北海道知事免許 石狩(1)第9423号 |
|---|
- 交通:
- 札幌市東西線/東札幌駅 徒歩11分
- 北海道札幌市豊平区豊平二条11丁目1-14 レブニーズ ザ レジデンス
- TEL:
- 011-827-8918
- FAX:
- 011-827-8919
- 所属団体:
- (公社)北海道宅地建物取引業協会会員(一社)北海道不動産公正取引協議会加盟
取引態様:媒介  - 10006320
|
- スマートフォンで
この不動産会社を見る

|
- 提携サイト等より掲載されている物件情報につきましては、不動産会社詳細情報にリンクされていないものがあります。
- 物件に関するお問合せは、物件詳細ページの「情報提供会社」に表示されている不動産会社へ直接お願いいたします。
- 間取図は、現況を優先させていただきます。
- 映像は物件の一部を撮影したものです。物件の契約にあたっての最終判断はご自身の判断に基づいて行ってください。
- 仲介手数料について

アットホームは物件情報の適正化に努めております。
内容に誤りがある場合にはこちらへご連絡ください。