埼玉県さいたま市浦和区高砂1丁目(浦和駅)の中古マンション・新築マンション・分譲マンション:物件詳細
交通 所在地 |
駅徒歩 |
価格 |
構造 階建/階 |
間取り 専有面積 |
物件種目 築年月 |
|
湘南新宿ライン(宇都宮〜逗子)/浦和
埼玉県さいたま市浦和区高砂1丁目
|
2分
|
24,000万円
|
RC
地上27階地下2階建 / 8階
|
4LDK
90.19m²
|
新築マンション
2026年11月
|
|
角部屋、南向き、24時間セキュリティー、バス1坪以上、2面採光、管理人日勤
|
|
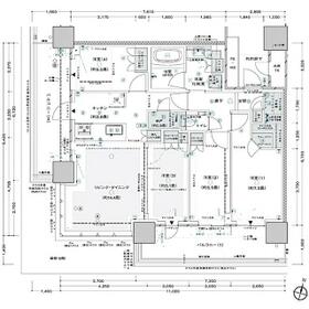
間取図
90.19㎡ 4LDK
|
外観
|
その他の画像
|
| 交通 | 湘南新宿ライン(宇都宮〜逗子) 浦和駅 徒歩2分 |
|---|
| その他の交通 | JR東北本線 浦和駅 徒歩2分 JR京浜東北線 浦和駅 徒歩2分 |
| 所在地 |
埼玉県さいたま市浦和区高砂1丁目
|
| 物件種目 |
新築マンション |
| 価格 |
24,000万円 |
平米単価 |
266.11万円 |
| 管理費等 |
39,610円 |
修繕積立金 |
32,120円 |
| 借地期間・地代(月額) |
- |
権利金 |
- |
| 敷金または保証金 |
- / - |
維持費等 |
- |
| その他一時金 |
- |
|
|
| 間取り |
4LDK |
専有面積 |
90.19m²(壁芯) |
| 階建 / 階 |
地上27階地下2階建 / 8階 |
バルコニー |
26.63m² |
| 築年月 |
2026年11月
|
建物構造 |
RC |
| 駐車場 |
- |
総戸数 |
- |
| 駐輪場 |
- |
バイク置き場 |
- |
| ペット |
-
|
|
|
| 土地権利 |
所有権 |
敷地面積 |
- |
| 管理形態/管理員の勤務形態 |
全部委託/日勤(野村不動産パートナーズ) |
国土法届出 |
- |
| アピールポイント |
広々とした延床面積90.19㎡の居室空間、更に広さ1坪以上の浴室だから、洗い場が広くて大柄な方でも体を伸ばしてゴシゴシ洗えます。またわざわざジムに通わなくても済むフィットネス施設完備で、その上365日異変を監視する24時間セキュリティー採用で、万一の対応が素早い点も魅力です。ちなみに捨てる決心ができない物の一時避難にも使えるトランクルーム利用可です。家族みんなのワガママにも応える4LDK。ご案内いたしますのでお気軽にご連絡ください。 |
| 建物名・部屋番号 |
|
| リフォーム履歴 |
- |
| リノベーション履歴 |
- |
| 瑕疵保証 |
- |
| 瑕疵保険 |
- |
| 評価・証明書 |
- |
| 備考 |
主要採光面:南向き
用途地域:商業地域
|
| エネルギー消費性能 |
- |
| 断熱性能 |
- |
| 目安光熱費 |
- |
| バス・トイレ |
浴室乾燥機、追焚機能、シャワー付洗面化粧台、温水洗浄便座 |
| キッチン |
カウンターキッチン、システムキッチン、3口以上コンロ |
| 設備・サービス |
全居室収納、ウォークインクローゼット、収納スペース、室内洗濯機置場、トランクルーム、シューズインクローゼット、クローゼット、モニター付インターホン、防犯カメラ、都市ガス、二面バルコニー |
| その他 |
フィットネス施設、エレベーター2基以上、エレベーター |
| 条件等 |
- |
現況 |
未完成 |
| 引渡可能時期 |
2026年11月下旬予定 |
物件番号 |
6989286924 |
| 仲介手数料 |
売買代金の3%+6万円 |
|
|
| 情報公開日 |
2026年2月3日 |
次回更新予定日 |
2026年2月17日 |
| ケータイ用バーコード |
- スマートフォンでこの物件を見る
- スマートフォンからもこの物件をご覧になれます。
|
※「-」と表示されている項目については、情報提供会社にご確認ください。
| 周辺施設 |
ファミリーマート浦和東口駅前店 |
| 距離 |
133m |
ここから簡単にお問い合わせをすることができます。
(SSLでの暗号化での送信を希望されるお客さまは
こちら
よりお問い合わせください)
お問い合わせを行う前に
「個人情報の取り扱いについて」を必ずお読みください。
「個人情報の取り扱いについて」に同意いただいた場合は「上記にご同意の上 確認画面へ進む」のボタンをクリックしてください。
個人情報の取り扱いについて
皆さまが送付された個人情報はアットホーム(株)のサーバを経由し、お問い合わせ先の不動産会社にメールまたはFAXにて転送されるためアットホーム(株)にも保管されます。アットホーム(株)で保管された個人情報の取り扱いについては、【こちら】をご覧ください。
また、本画面でご記入いただいた個人情報は、お問い合わせ先の不動産会社でも保管します。 お問い合わせ先の不動産会社が保管する個人情報の取り扱いについては、不動産会社に直接お問い合わせください。
埼玉県知事免許(1)第25784号 |
|---|
- 交通:
- JR埼京線/武蔵浦和駅 徒歩1分
- 埼玉県さいたま市南区白幡5丁目19-19 武蔵浦和駅南ビルMARE2階
- TEL:
- 048-845-0461
- FAX:
- 048-845-0463
- 所属団体:
- (公社)埼玉県宅地建物取引業協会会員(公社)首都圏不動産公正取引協議会加盟
取引態様:媒介  - 00051293
|
- スマートフォンで
この不動産会社を見る

|
- 提携サイト等より掲載されている物件情報につきましては、不動産会社詳細情報にリンクされていないものがあります。
- 物件に関するお問合せは、物件詳細ページの「情報提供会社」に表示されている不動産会社へ直接お願いいたします。
- 間取図は、現況を優先させていただきます。
- 映像は物件の一部を撮影したものです。物件の契約にあたっての最終判断はご自身の判断に基づいて行ってください。
- 仲介手数料について

アットホームは物件情報の適正化に努めております。
内容に誤りがある場合にはこちらへご連絡ください。