広島県福山市三之丸町(福山駅)の中古マンション・新築マンション・分譲マンション:物件詳細
交通 所在地 |
駅徒歩 |
価格 |
構造 階建/階 |
間取り 専有面積 |
物件種目 築年月 |
|
JR山陽本線/福山
広島県福山市三之丸町
|
2分
|
3,900万円
|
RC
15階建 / 14階
|
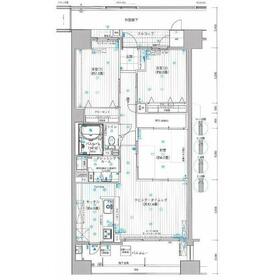
3LDK
81.12m²
|
中古マンション
賃貸中
2009年2月(築17年2ヶ月)
|
|
ペット相談、南向き、管理人日勤、IT重説対応物件
|
|
間取図
|
外観
|
<
その他の画像
>
|
| 交通 | JR山陽本線 福山駅 徒歩2分 |
| 所在地 |
広島県福山市三之丸町
|
| 物件種目 |
中古マンション |
| 価格 |
3,900万円 |
平米単価 |
48.08万円 |
| 管理費等 |
10,400円 |
修繕積立金 |
12,200円 |
| 借地期間・地代(月額) |
- |
権利金 |
- |
| 敷金または保証金 |
- / - |
維持費等 |
インターネット使用料:2,835円/月、専有部警備料SOS利用料:264円/月、エスコートサービス利用料:220円/月 |
| その他一時金 |
- |
|
|
| 間取り |
3LDK(和 6 洋 7・6 LDK 16.4) |
専有面積 |
81.12m²(壁芯) |
| 階建 / 階 |
15階建 / 14階 |
バルコニー |
13.23m² |
| 築年月 |
2009年2月(築17年2ヶ月)
|
建物構造 |
RC |
| 駐車場 |
- |
総戸数 |
- |
| 駐輪場 |
- |
バイク置き場 |
- |
| ペット |
相談 |
|
|
| 土地権利 |
所有権 |
敷地面積 |
- |
| 管理形態/管理員の勤務形態 |
全部委託/日勤(穴吹コミュニティ) |
国土法届出 |
- |
| アピールポイント |
こちらのページから内見予約や資料請求が可能です!
購入や売却、その他ご相談など・・・
『不動産会社のトリコム』に
お気軽にお問い合わせください。
■━POINT ━■
■2026年3月末退去予定
室内の見学は退去以降になります
■福山駅徒歩2分で通勤、通学、買い物に便利です
■バルコニー南向きで陽当り良好
■ペット飼育可
【不動産売却・査定のご相談を大募集!】
相場に応じた売却価格の査定はもちろん、
お客さまのご要望やお悩みをお聞かせいただくことにより、
よりよい売却方法をご提案いたします。
ご自宅の資産価値を査定されたい方、
住宅ローンのご相談など、売却にまつわる様々なお悩みに
お応えいたします。お気軽にご相談ください。 |
| 建物名・部屋番号 |
サーパスシティ福山駅前 |
| リフォーム履歴 |
- |
| リノベーション履歴 |
- |
| 瑕疵保証 |
- |
| 瑕疵保険 |
- |
| 評価・証明書 |
- |
| 備考 |
主要採光面:南向き
用途地域:商業地域
IT重説対応物件
|
| エネルギー消費性能 |
- |
| 断熱性能 |
- |
| 目安光熱費 |
- |
| バス・トイレ |
浴室乾燥機、オートバス、追焚機能、シャワー付洗面化粧台、温水洗浄便座 |
| キッチン |
カウンターキッチン、システムキッチン、3口以上コンロ |
| 設備・サービス |
収納スペース、室内洗濯機置場、クローゼット、オートロック、モニター付インターホン、給湯、都市ガス、火災警報器(報知機)、インターネット対応 |
| その他 |
宅配BOX、エレベーター2基以上、エレベーター |
| 条件等 |
- |
現況 |
賃貸中 |
| 引渡可能時期 |
相談 |
物件番号 |
6989290690 |
| 仲介手数料 |
不要 |
|
|
| 情報公開日 |
2026年1月30日 |
次回更新予定日 |
2026年4月5日 |
| ケータイ用バーコード |
- スマートフォンでこの物件を見る
- スマートフォンからもこの物件をご覧になれます。
|
※「-」と表示されている項目については、情報提供会社にご確認ください。
| 周辺施設 |
ドトールコーヒーショップJR福山駅店 |
| 距離 |
214m |
写真を見る |
| 周辺施設 |
フレスタアイネス店 |
| 距離 |
308m |
写真を見る |
| 周辺施設 |
天満屋福山店 |
| 距離 |
433m |
写真を見る |
| 周辺施設 |
セブンイレブン福山駅前店 |
| 距離 |
9m |
写真を見る |
| 周辺施設 |
福山市立西小学校 |
| 距離 |
688m |
写真を見る |
| 周辺施設 |
医療法人社団尚志会福山城西病院 |
| 距離 |
663m |
写真を見る |
ここから簡単にお問い合わせをすることができます。
(SSLでの暗号化での送信を希望されるお客さまは
こちら
よりお問い合わせください)
お問い合わせを行う前に
「個人情報の取り扱いについて」を必ずお読みください。
「個人情報の取り扱いについて」に同意いただいた場合は「上記にご同意の上 確認画面へ進む」のボタンをクリックしてください。
個人情報の取り扱いについて
皆さまが送付された個人情報はアットホーム(株)のサーバを経由し、お問い合わせ先の不動産会社にメールまたはFAXにて転送されるためアットホーム(株)にも保管されます。アットホーム(株)で保管された個人情報の取り扱いについては、【こちら】をご覧ください。
また、本画面でご記入いただいた個人情報は、お問い合わせ先の不動産会社でも保管します。 お問い合わせ先の不動産会社が保管する個人情報の取り扱いについては、不動産会社に直接お問い合わせください。
広島県知事免許(2)第10530号 |
|---|
- 交通:
- 【バス】 多治米五丁目 停歩1分
- 広島県福山市多治米町5丁目24-15
- TEL:
- 084-954-1888
- FAX:
- 084-954-8883
- 所属団体:
- (公社)広島県宅地建物取引業協会会員中国地区不動産公正取引協議会加盟
取引態様:売主  - 50101291
|
- スマートフォンで
この不動産会社を見る

|
- 提携サイト等より掲載されている物件情報につきましては、不動産会社詳細情報にリンクされていないものがあります。
- 物件に関するお問合せは、物件詳細ページの「情報提供会社」に表示されている不動産会社へ直接お願いいたします。
- 間取図は、現況を優先させていただきます。
- 映像は物件の一部を撮影したものです。物件の契約にあたっての最終判断はご自身の判断に基づいて行ってください。
- 仲介手数料について

アットホームは物件情報の適正化に努めております。
内容に誤りがある場合にはこちらへご連絡ください。