東京都八王子市横山町(八王子駅)の中古マンション・新築マンション・分譲マンション:物件詳細
交通 所在地 |
駅徒歩 |
価格 |
構造 階建/階 |
間取り 専有面積 |
物件種目 築年月 |
|
JR中央線/八王子
東京都八王子市横山町
|
8分
|
650万円
|
SRC
9階建 / 9階
|
ワンルーム
17.40m²
|
中古マンション
1989年9月(築36年6ヶ月)
|
|
楽器相談、常時ゴミ出し可能、角部屋、最上階、南向き、24時間セキュリティー、閑静な住宅街、外観タイル張り、管理人日勤
|
|
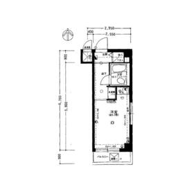
間取図
|
外観
|
その他の画像
|
| 交通 | JR中央線 八王子駅 徒歩8分 |
|---|
| その他の交通 | 京王線 京王八王子駅 徒歩10分 |
| 所在地 |
東京都八王子市横山町
|
| 物件種目 |
中古マンション |
| 価格 |
650万円 |
平米単価 |
37.36万円 |
| 管理費等 |
9,920円 |
修繕積立金 |
2,950円 |
| 借地期間・地代(月額) |
- |
権利金 |
- |
| 敷金または保証金 |
- / - |
維持費等 |
- |
| その他一時金 |
- |
|
|
| 間取り |
ワンルーム(洋 5.9) |
専有面積 |
17.40m²(壁芯) |
| 階建 / 階 |
9階建 / 9階 |
バルコニー |
2.29m² |
| 築年月 |
1989年9月(築36年6ヶ月)
|
建物構造 |
SRC |
| 駐車場 |
無 |
総戸数 |
61戸 |
| 駐輪場 |
有 無料 |
バイク置き場 |
有 無料 |
| ペット |
-
|
|
|
| 土地権利 |
所有権 |
敷地面積 |
- |
| 管理形態/管理員の勤務形態 |
全部委託/日勤(株式会社大京アステージ) |
国土法届出 |
- |
| アピールポイント |
JR中央線『八王子』駅 徒歩8分の閑静な住宅街の物件です。現在、大幅リノベーション工事実施中につき実需、セカンドルーム、投資用マンションとしても利用可能です。また、賃料50,000円管理費5,000円(総額55,000円)にて募集予定になります。最上階・角部屋につき眺望良好、オートロック・防犯カメラ完備になり防犯面でも安心です。 |
| 建物名・部屋番号 |
ライオンズマンション八王子第2 900 |
| リフォーム履歴 |
■水回り:2026年2月 キッチン、浴室、洗面所 2026年2月完了予定。 ■内装:2026年2月 全室クロス張替え、床(フローリング等)、壁・天井(クロス・塗装等) 2026年2月完了予定。 ■共用部の大規模修繕工事:2006年8月 2006年6月完了済。 ※実施年月は最も古い履歴を表示 |
| リノベーション履歴 |
- |
| 瑕疵保証 |
- |
| 瑕疵保険 |
- |
| 評価・証明書 |
- |
| 備考 |
主要採光面:南向き
用途地域:近隣商業
利回り:10.15%
年間予定賃料収入:66万円
|
| エネルギー消費性能 |
- |
| 断熱性能 |
- |
| 目安光熱費 |
- |
| バス・トイレ |
- |
| キッチン |
IHクッキングヒーター |
| 設備・サービス |
モニター付オートロック、全居室収納、バイク置き場、収納スペース、室内洗濯機置場、シューズインクローゼット、クローゼット、オートロック、モニター付インターホン、非接触型ICカードキー、防犯カメラ、冷蔵庫、全居室フローリング、都市ガス、エアコン、ルーフバルコニー、駐輪場、照明器具、火災警報器(報知機)、インターネット対応、ケーブルTV、BS端子 |
| その他 |
宅配BOX、エレベーター |
| 条件等 |
- |
現況 |
空家 |
| 引渡可能時期 |
相談 |
物件番号 |
6989331662 |
| 仲介手数料 |
不要 |
|
|
| 情報公開日 |
2026年2月2日 |
次回更新予定日 |
2026年2月16日 |
| ケータイ用バーコード |
- スマートフォンでこの物件を見る
- スマートフォンからもこの物件をご覧になれます。
|
※「-」と表示されている項目については、情報提供会社にご確認ください。
| 周辺施設 |
イオンフードスタイル八王子店 |
| 距離 |
372m |
| 周辺施設 |
セブンイレブン八王子横山町店 |
| 距離 |
215m |
| 周辺施設 |
みずほ銀行八王子南口支店 |
| 距離 |
208m |
ここから簡単にお問い合わせをすることができます。
(SSLでの暗号化での送信を希望されるお客さまは
こちら
よりお問い合わせください)
お問い合わせを行う前に
「個人情報の取り扱いについて」を必ずお読みください。
「個人情報の取り扱いについて」に同意いただいた場合は「上記にご同意の上 確認画面へ進む」のボタンをクリックしてください。
個人情報の取り扱いについて
皆さまが送付された個人情報はアットホーム(株)のサーバを経由し、お問い合わせ先の不動産会社にメールまたはFAXにて転送されるためアットホーム(株)にも保管されます。アットホーム(株)で保管された個人情報の取り扱いについては、【こちら】をご覧ください。
また、本画面でご記入いただいた個人情報は、お問い合わせ先の不動産会社でも保管します。 お問い合わせ先の不動産会社が保管する個人情報の取り扱いについては、不動産会社に直接お問い合わせください。
東京都知事免許(4)第91560号 |
|---|
- 交通:
- 東京メトロ丸ノ内線/大手町駅 徒歩5分
- 東京都千代田区内神田1丁目5-9 大手町サンビルディング4F
- TEL:
- 03-3518-9061
- FAX:
- 03-3518-9062
- 所属団体:
- (公社)全日本不動産協会会員(公社)首都圏不動産公正取引協議会加盟
取引態様:売主  - 00103620
|
- スマートフォンで
この不動産会社を見る

|
- 提携サイト等より掲載されている物件情報につきましては、不動産会社詳細情報にリンクされていないものがあります。
- 物件に関するお問合せは、物件詳細ページの「情報提供会社」に表示されている不動産会社へ直接お願いいたします。
- 間取図は、現況を優先させていただきます。
- 映像は物件の一部を撮影したものです。物件の契約にあたっての最終判断はご自身の判断に基づいて行ってください。
- 仲介手数料について

アットホームは物件情報の適正化に努めております。
内容に誤りがある場合にはこちらへご連絡ください。