東京都武蔵野市吉祥寺本町2丁目(吉祥寺駅)の中古マンション・新築マンション・分譲マンション:物件詳細
交通 所在地 |
駅徒歩 |
価格 |
構造 階建/階 |
間取り 専有面積 |
物件種目 築年月 |
|
JR中央線/吉祥寺
東京都武蔵野市吉祥寺本町2丁目
|
6分
|
6,480万円
|
RC
地上7階地下1階建 / 3階
|
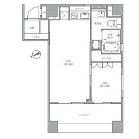
1LDK
42.98m²
|
中古マンション
2007年2月(築19年1ヶ月)
|
|
ペット相談、24時間セキュリティー、二重床・二重天井、24時間換気システム、閑静な住宅街、オール電化、管理人日勤
|
|
間取図
洗練された設備仕様 ペット飼育可能で、IHキッチンや浴室乾燥機など現代のニーズに応える設備が整っています 。二重床・二重天井構造により、快適なプライベート空間が確保されています 。
|
外観
生活利便性の極致 東急百貨店やマルエツプチが徒歩3分圏内に揃い、買い物に困ることはありません 。都内屈指の商業利便性を享受しつつ、自分らしい都心生活を満喫できる好立地です 。
|
<
その他の画像
>
|
| 交通 | JR中央線 吉祥寺駅 徒歩6分 |
|---|
| その他の交通 | JR総武線 吉祥寺駅 徒歩6分 京王井の頭線 吉祥寺駅 徒歩7分 |
| 所在地 |
東京都武蔵野市吉祥寺本町2丁目
|
| 物件種目 |
中古マンション |
| 価格 |
6,480万円 |
平米単価 |
150.77万円 |
| 管理費等 |
17,620円 |
修繕積立金 |
17,840円 |
| 借地期間・地代(月額) |
- |
権利金 |
- |
| 敷金または保証金 |
- / - |
維持費等 |
- |
| その他一時金 |
- |
|
|
| 間取り |
1LDK(洋 1) |
専有面積 |
42.98m²(壁芯) |
| 階建 / 階 |
地上7階地下1階建 / 3階 |
バルコニー |
11.00m² |
| 築年月 |
2007年2月(築19年1ヶ月)
|
建物構造 |
RC |
| 駐車場 |
- |
総戸数 |
- |
| 駐輪場 |
- |
バイク置き場 |
- |
| ペット |
小型犬可・ 猫可・ ※細則有 |
|
|
| 土地権利 |
所有権 |
敷地面積 |
- |
| 管理形態/管理員の勤務形態 |
全部委託/日勤(日本ハウズイング) |
国土法届出 |
- |
| アピールポイント |
居住用:安心を支える強固なセキュリティ
賑わいある商業地域にありながら、オートロックや24時間セキュリティ、防犯カメラを完備し、プライバシーと安全を徹底追求しています 。TVモニター付インターホンによる来客確認も可能で、単身者の夜間帰宅も安心です 。都会の躍動感を楽しみつつ、我が家では静謐と安全を求める方に相応しい住まいです。
投資:ペット共生という付加価値
吉祥寺は井の頭公園を筆頭に、愛犬との散歩を楽しめる環境が整っています 。本物件はペット飼育が可能であり、周辺の住環境を活かした募集戦略が可能です 。需要に対して供給が限られる「ペット可・好立地」の条件は、賃料設定や成約率において強力な武器となり、投資効率を一段と引き上げます。
資産形成:リフォーム済みによる維持管理の優位性
2025年12月に水回りを含む大規模リフォームを完了しており、購入後の追加コストを大幅に抑制できます 。二重床・二重天井やIHシステムキッチンなど、現代の居住水準を満たす設備が整っているため、建物の質による差別化が図れます 。修繕の負担を抑えつつ、確実な資産形成を歩みたい方向けです。 |
| 建物名・部屋番号 |
コムロンド吉祥寺 3階 |
| リフォーム履歴 |
■水回り:2025年12月 キッチン、浴室、トイレ、洗面所、給湯器 ・IHシステムキッチン交換・ユニットバス交換 (1216サイズ・換気乾燥機付)・給湯器交換(追炊付)・洗浄機能付トイレ交換・エコカラット施工(洗面室)・建具一部交換・フローリング上張・天井・壁クロス張替・フロアタイル一部張替・網戸張替・防水パン交換・照明器具交換・スイッチパネル交換・防水パン交換・レースカーテン取付・ハウスクリーニング 他 ■内装:2025年12月 内装全面(床・壁・天井・建具) ・IHシステムキッチン交換・ユニットバス交換 (1216サイズ・換気乾燥機付)・給湯器交換(追炊付)・洗浄機能付トイレ交換・エコカラット施工(洗面室)・建具一部交換・フローリング上張・天井・壁クロス張替・フロアタイル一部張替・網戸張替・防水パン交換・照明器具交換・スイッチパネル交換・防水パン交換・レースカーテン取付・ハウスクリーニング 他 ※実施年月は最も古い履歴を表示 |
| リノベーション履歴 |
- |
| 瑕疵保証 |
- |
| 瑕疵保険 |
- |
| 評価・証明書 |
- |
| 備考 |
主要採光面:北西向き
用途地域:商業地域
|
| エネルギー消費性能 |
- |
| 断熱性能 |
- |
| 目安光熱費 |
- |
| バス・トイレ |
浴室乾燥機、追焚機能 |
| キッチン |
カウンターキッチン、システムキッチン、IHクッキングヒーター、2口コンロ |
| 設備・サービス |
モニター付オートロック、全居室収納、収納スペース、室内洗濯機置場、クローゼット、オートロック、モニター付インターホン、ダブルロックドア、防犯カメラ、防犯用ガラス、二重床、洗濯機置場、給湯、全居室フローリング、エアコン、暖房、冷房、ワイドバルコニー、照明器具、火災警報器(報知機)、インターネット対応、複層ガラス |
| その他 |
宅配BOX、エレベーター |
| 条件等 |
- |
現況 |
空家 |
| 引渡可能時期 |
即時 |
物件番号 |
6989339672 |
| 情報公開日 |
2026年2月3日 |
次回更新予定日 |
2026年2月27日 |
| ケータイ用バーコード |
- スマートフォンでこの物件を見る
- スマートフォンからもこの物件をご覧になれます。
|
※「-」と表示されている項目については、情報提供会社にご確認ください。
| 周辺施設 |
武蔵野市役所 |
| 距離 |
2150m |
写真を見る |
| 周辺施設 |
みずほ銀行吉祥寺支店 |
| 距離 |
353m |
写真を見る |
| 周辺施設 |
医療法人社団東仁会吉祥寺あさひ病院 |
| 距離 |
702m |
写真を見る |
| 周辺施設 |
井の頭恩賜公園 |
| 距離 |
1545m |
写真を見る |
| 周辺施設 |
武蔵野市立吉祥寺図書館 |
| 距離 |
568m |
写真を見る |
| 周辺施設 |
プラサカプコン吉祥寺店 |
| 距離 |
231m |
写真を見る |
| 周辺施設 |
武蔵野市立吉祥寺美術館 |
| 距離 |
318m |
写真を見る |
| 周辺施設 |
マルエツプチ吉祥寺店 |
| 距離 |
163m |
写真を見る |
ここから簡単にお問い合わせをすることができます。
(SSLでの暗号化での送信を希望されるお客さまは
こちら
よりお問い合わせください)
お問い合わせを行う前に
「個人情報の取り扱いについて」を必ずお読みください。
「個人情報の取り扱いについて」に同意いただいた場合は「上記にご同意の上 確認画面へ進む」のボタンをクリックしてください。
個人情報の取り扱いについて
皆さまが送付された個人情報はアットホーム(株)のサーバを経由し、お問い合わせ先の不動産会社にメールまたはFAXにて転送されるためアットホーム(株)にも保管されます。アットホーム(株)で保管された個人情報の取り扱いについては、【こちら】をご覧ください。
また、本画面でご記入いただいた個人情報は、お問い合わせ先の不動産会社でも保管します。 お問い合わせ先の不動産会社が保管する個人情報の取り扱いについては、不動産会社に直接お問い合わせください。
埼玉県知事免許(3)第22317号 |
|---|
- 交通:
- JR武蔵野線/東浦和駅 【バス】12分 松ノ木東公園 停歩1分
- 埼玉県さいたま市緑区松木3丁目15-16
- TEL:
- 048-829-7836
- FAX:
- 048-829-7837
- 所属団体:
- (公社)埼玉県宅地建物取引業協会会員(公社)首都圏不動産公正取引協議会加盟
取引態様:媒介  - 00106978
|
- スマートフォンで
この不動産会社を見る

|
- 提携サイト等より掲載されている物件情報につきましては、不動産会社詳細情報にリンクされていないものがあります。
- 物件に関するお問合せは、物件詳細ページの「情報提供会社」に表示されている不動産会社へ直接お願いいたします。
- 間取図は、現況を優先させていただきます。
- 映像は物件の一部を撮影したものです。物件の契約にあたっての最終判断はご自身の判断に基づいて行ってください。
- 仲介手数料について

アットホームは物件情報の適正化に努めております。
内容に誤りがある場合にはこちらへご連絡ください。