岩手県盛岡市大通3丁目(盛岡駅)の中古マンション・新築マンション・分譲マンション:物件詳細
交通 所在地 |
駅徒歩 |
価格 |
構造 階建/階 |
間取り 専有面積 |
物件種目 築年月 |
|
JR東北本線/盛岡 [バス利用可] バス 3分 開運橋 停歩1分
岩手県盛岡市大通3丁目
|
7分
|
3,100万円
|
SRC
13階建 / 12階
|
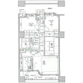
3LDK
78.01m²
|
中古マンション
2002年11月(築23年4ヶ月)
|
|
ペット相談、バス1坪以上、管理人日勤
|
|
間取図
|
外観
|
<
その他の画像
>
|
| 交通 | JR東北本線 盛岡駅 徒歩7分 [バス利用可] バス 3分 開運橋 停歩1分 |
| 所在地 |
岩手県盛岡市大通3丁目
|
| 物件種目 |
中古マンション |
| 価格 |
3,100万円 |
平米単価 |
39.74万円 |
| 管理費等 |
11,400円 |
修繕積立金 |
17,960円 |
| 借地期間・地代(月額) |
- |
権利金 |
- |
| 敷金または保証金 |
- / - |
維持費等 |
- |
| その他一時金 |
- |
|
|
| 間取り |
3LDK(和 6 洋 5・6.7 LDK 13.2) |
専有面積 |
78.01m²(壁芯) |
| 階建 / 階 |
13階建 / 12階 |
バルコニー |
9.46m² |
| 築年月 |
2002年11月(築23年4ヶ月)
|
建物構造 |
SRC |
| 駐車場 |
空無 |
総戸数 |
1戸 |
| 駐輪場 |
- |
バイク置き場 |
- |
| ペット |
小型犬可・ 猫可・ 成長時の体長が50㎝未満 |
|
|
| 土地権利 |
所有権 |
敷地面積 |
- |
| 管理形態/管理員の勤務形態 |
全部委託/日勤(株式会社寿広) |
国土法届出 |
- |
| アピールポイント |
●当社では住宅ローンのご相談も承っております!
当社店舗でも、お客様のご自宅でも、物件のある現地でも、どこでも大丈夫です。いつでもご相談下さい。毎月の支払金額を知ることで購入物件・リフォーム内容が具体的になります!
●中古住宅のリフォームで悩んでいるお客様へ
当社でリフォーム業者のご紹介、お見積りが可能です。
まずは現地をご覧いただきイメージを膨らませましょう(^-^)/
●物件のご見学について
土日祝日のご案内も可能です。まずは、お気軽にお問合せください(^-^)/
●決断の難しいマイホームの購入をお手伝いします!
マイホーム購入には不動産や住宅ローンの知識が必要となります。
注文住宅、建売住宅、中古住宅、マンション等の選択、資金計画や住宅ローンに関することなど、
悩み事やご不明点を弊社にご相談ください。お客様と一緒に考え、最適なプランをご提案致します。 |
| 建物名・部屋番号 |
クランズスクエア開運橋 |
| リフォーム履歴 |
- |
| リノベーション履歴 |
- |
| 瑕疵保証 |
- |
| 瑕疵保険 |
- |
| 評価・証明書 |
- |
| 備考 |
主要採光面:南東向き
用途地域:商業地域
|
| エネルギー消費性能 |
- |
| 断熱性能 |
- |
| 目安光熱費 |
- |
| バス・トイレ |
浴室暖房、浴室乾燥機、追焚機能、シャワー付洗面化粧台、温水洗浄便座 |
| キッチン |
カウンターキッチン、システムキッチン、3口以上コンロ |
| 設備・サービス |
全居室収納、エアコン2台以上、シューズインクローゼット、クローゼット、オートロック、ディンプルキー、ダブルロックドア、洗濯機置場、給湯、都市ガス、FF暖房、複層ガラス |
| その他 |
エレベーター |
| 条件等 |
- |
現況 |
空家 |
| 引渡可能時期 |
即時 |
物件番号 |
6989348363 |
| 情報公開日 |
2026年2月3日 |
次回更新予定日 |
2026年2月17日 |
| ケータイ用バーコード |
- スマートフォンでこの物件を見る
- スマートフォンからもこの物件をご覧になれます。
|
※「-」と表示されている項目については、情報提供会社にご確認ください。
| 周辺施設 |
ベルプラスベルプラスワン |
| 距離 |
369m |
| 周辺施設 |
ファミリーマート盛岡クロステラス店 |
| 距離 |
160m |
| 周辺施設 |
セブンイレブン盛岡駅前通店 |
| 距離 |
214m |
ここから簡単にお問い合わせをすることができます。
(SSLでの暗号化での送信を希望されるお客さまは
こちら
よりお問い合わせください)
お問い合わせを行う前に
「個人情報の取り扱いについて」を必ずお読みください。
「個人情報の取り扱いについて」に同意いただいた場合は「上記にご同意の上 確認画面へ進む」のボタンをクリックしてください。
個人情報の取り扱いについて
皆さまが送付された個人情報はアットホーム(株)のサーバを経由し、お問い合わせ先の不動産会社にメールまたはFAXにて転送されるためアットホーム(株)にも保管されます。アットホーム(株)で保管された個人情報の取り扱いについては、【こちら】をご覧ください。
また、本画面でご記入いただいた個人情報は、お問い合わせ先の不動産会社でも保管します。 お問い合わせ先の不動産会社が保管する個人情報の取り扱いについては、不動産会社に直接お問い合わせください。
岩手県知事免許(1)第2756号 |
|---|
- 交通:
- JR東北本線/盛岡駅 徒歩12分 【バス】2分 夕顔瀬橋 停歩2分
- 岩手県盛岡市夕顔瀬町2-2 夕顔瀬マンション2F
- TEL:
- 019-622-2534
- FAX:
- 019-601-2513
- 所属団体:
- (公社)全日本不動産協会会員東北地区不動産公正取引協議会加盟
取引態様:媒介  - 20007087
|
- スマートフォンで
この不動産会社を見る

|
- 提携サイト等より掲載されている物件情報につきましては、不動産会社詳細情報にリンクされていないものがあります。
- 物件に関するお問合せは、物件詳細ページの「情報提供会社」に表示されている不動産会社へ直接お願いいたします。
- 間取図は、現況を優先させていただきます。
- 映像は物件の一部を撮影したものです。物件の契約にあたっての最終判断はご自身の判断に基づいて行ってください。
- 仲介手数料について

アットホームは物件情報の適正化に努めております。
内容に誤りがある場合にはこちらへご連絡ください。