北海道札幌市白石区南郷通19丁目北(南郷18丁目駅)の中古マンション・新築マンション・分譲マンション:物件詳細
交通 所在地 |
駅徒歩 |
価格 |
構造 階建/階 |
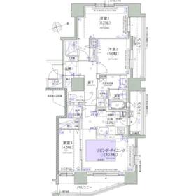
間取り 専有面積 |
物件種目 築年月 |
|
札幌市東西線/南郷18丁目
北海道札幌市白石区南郷通19丁目北
|
2分
|
4,180万円
|
RC
15階建 / 9階
|
3LDK
74.36m²
|
中古マンション
2020年1月(築6年3ヶ月)
|
|
ペット相談、角部屋、24時間セキュリティー、バス1坪以上、2面採光、ロードヒーティング、建設住宅性能評価書あり、管理人日勤
|
|
間取図
|
|
<
その他の画像
>
|
| 交通 | 札幌市東西線 南郷18丁目駅 徒歩2分 |
|---|
| その他の交通 | JR千歳線 平和駅 徒歩30分 |
| 所在地 |
北海道札幌市白石区南郷通19丁目北
|
| 物件種目 |
中古マンション |
| 価格 |
4,180万円 |
平米単価 |
56.22万円 |
| 管理費等 |
8,020円 |
修繕積立金 |
9,670円 |
| 借地期間・地代(月額) |
- |
権利金 |
- |
| 敷金または保証金 |
- / - |
維持費等 |
- |
| その他一時金 |
- |
|
|
| 間取り |
3LDK(洋 8.2・5・4.5) |
専有面積 |
74.36m²(壁芯) |
| 階建 / 階 |
15階建 / 9階 |
バルコニー |
17.90m² |
| 築年月 |
2020年1月(築6年3ヶ月)
|
建物構造 |
RC |
| 駐車場 |
空無 |
総戸数 |
58戸 |
| 駐輪場 |
有 200円/月 |
バイク置き場 |
- |
| ペット |
小型犬可・ 猫可・ 2匹迄 |
|
|
| 土地権利 |
所有権 |
敷地面積 |
- |
| 管理形態/管理員の勤務形態 |
全部委託/日勤(株式会社クリーンリバー) |
国土法届出 |
- |
| アピールポイント |
■来客用駐車場有!
■駐車場はロードヒーティング完備!
■小中学校徒歩圏内!
■24時間熱交換型セントラル換気システム!
■給湯は都市ガスFact! |
| 建物名・部屋番号 |
クリーンリバーフィネス南郷18丁目駅前レジデンス |
| リフォーム履歴 |
- |
| リノベーション履歴 |
- |
| 瑕疵保証 |
- |
| 瑕疵保険 |
- |
| 評価・証明書 |
- |
| 備考 |
主要採光面:南東向き
施工会社:株式会社企画設計事務所オルト
|
| エネルギー消費性能 |
- |
| 断熱性能 |
- |
| 目安光熱費 |
- |
| バス・トイレ |
オートバス、追焚機能、シャワー付洗面化粧台、温水洗浄便座、浴室に窓あり |
| キッチン |
カウンターキッチン、オープンキッチン、システムキッチン、食器洗浄乾燥機、IHクッキングヒーター、3口以上コンロ |
| 設備・サービス |
モニター付オートロック、全居室収納、収納スペース、室内洗濯機置場、トランクルーム、クローゼット、オートロック、モニター付インターホン、非接触型ICカードキー、ディンプルキー、防犯カメラ、洗濯機置場、省エネ給湯器、給湯、全居室フローリング、都市ガス、エアコン、二面バルコニー、駐輪場、人感センサー付照明、照明器具、複層ガラス |
| その他 |
宅配BOX、来客用駐車場、エレベーター |
| 条件等 |
- |
現況 |
空家 |
| 引渡可能時期 |
即時 |
物件番号 |
6989348570 |
| 仲介手数料 |
売買代金の3% |
|
|
| 情報公開日 |
2026年2月3日 |
次回更新予定日 |
2026年4月5日 |
| ケータイ用バーコード |
- スマートフォンでこの物件を見る
- スマートフォンからもこの物件をご覧になれます。
|
※「-」と表示されている項目については、情報提供会社にご確認ください。
| 周辺施設 |
コープさっぽろLucy店 |
| 距離 |
484m |
| 周辺施設 |
ワークマンプラス札幌北野東北通店 |
| 距離 |
963m |
| 周辺施設 |
セイコーマート南郷通19丁目店 |
| 距離 |
38m |
ここから簡単にお問い合わせをすることができます。
(SSLでの暗号化での送信を希望されるお客さまは
こちら
よりお問い合わせください)
お問い合わせを行う前に
「個人情報の取り扱いについて」を必ずお読みください。
「個人情報の取り扱いについて」に同意いただいた場合は「上記にご同意の上 確認画面へ進む」のボタンをクリックしてください。
個人情報の取り扱いについて
皆さまが送付された個人情報はアットホーム(株)のサーバを経由し、お問い合わせ先の不動産会社にメールまたはFAXにて転送されるためアットホーム(株)にも保管されます。アットホーム(株)で保管された個人情報の取り扱いについては、【こちら】をご覧ください。
また、本画面でご記入いただいた個人情報は、お問い合わせ先の不動産会社でも保管します。 お問い合わせ先の不動産会社が保管する個人情報の取り扱いについては、不動産会社に直接お問い合わせください。
北海道知事免許 石狩(1)第9304号 |
|---|
- 交通:
- 【バス】 東苗穂3条2丁目 停歩1分
- 北海道札幌市東区東苗穂三条1丁目3番30号 杉都ビル
- TEL:
- 011-792-1408
- FAX:
- 011-792-1409
- 所属団体:
- (公社)北海道宅地建物取引業協会会員(一社)北海道不動産公正取引協議会加盟
取引態様:専任媒介  - 10006198
|
- スマートフォンで
この不動産会社を見る

|
- 提携サイト等より掲載されている物件情報につきましては、不動産会社詳細情報にリンクされていないものがあります。
- 物件に関するお問合せは、物件詳細ページの「情報提供会社」に表示されている不動産会社へ直接お願いいたします。
- 間取図は、現況を優先させていただきます。
- 映像は物件の一部を撮影したものです。物件の契約にあたっての最終判断はご自身の判断に基づいて行ってください。
- 仲介手数料について

アットホームは物件情報の適正化に努めております。
内容に誤りがある場合にはこちらへご連絡ください。