神奈川県相模原市中央区相模原4丁目(相模原駅)の中古マンション・新築マンション・分譲マンション:物件詳細
交通 所在地 |
駅徒歩 |
価格 |
構造 階建/階 |
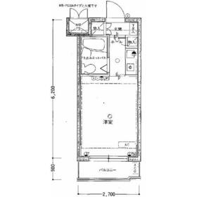
間取り 専有面積 |
物件種目 築年月 |
|
JR横浜線/相模原
神奈川県相模原市中央区相模原4丁目
|
9分
|
466万円
|
SRC
9階建 / 9階
|
ワンルーム
16.74m²
|
中古マンション
オーナーチェンジ
1991年7月(築34年11ヶ月)
|
|
最上階、南向き、管理人日勤
|
|
間取図
南向き
|
外観
|
その他の画像
|
| 交通 | JR横浜線 相模原駅 徒歩9分 |
|---|
| その他の交通 | JR横浜線 矢部駅 徒歩12分 JR横浜線 淵野辺駅 徒歩27分 |
| 所在地 |
神奈川県相模原市中央区相模原4丁目
|
| 物件種目 |
中古マンション |
| 価格 |
466万円 |
平米単価 |
27.84万円 |
| 管理費等 |
5,370円 |
修繕積立金 |
2,930円 |
| 借地期間・地代(月額) |
- |
権利金 |
- |
| 敷金または保証金 |
- / - |
維持費等 |
- |
| その他一時金 |
- |
|
|
| 間取り |
ワンルーム |
専有面積 |
16.74m²(壁芯) |
| 階建 / 階 |
9階建 / 9階 |
バルコニー |
2.27m² |
| 築年月 |
1991年7月(築34年11ヶ月)
|
建物構造 |
SRC |
| 駐車場 |
空無 |
総戸数 |
88戸 |
| 駐輪場 |
有 |
バイク置き場 |
空無 |
| ペット |
-
|
|
|
| 土地権利 |
所有権 |
敷地面積 |
- |
| 管理形態/管理員の勤務形態 |
全部委託/日勤(大京アステージ) |
国土法届出 |
- |
| アピールポイント |
■2023年に大規模修繕工事完了、大京アステージの管理マンション
■9階部分、最上階
■自転車置場有り
■コンビニやほっともっとが至近で一人暮らしがしやすい環境 |
| 建物名・部屋番号 |
ライオンズマンション相模原第8 |
| リフォーム履歴 |
- |
| リノベーション履歴 |
- |
| 瑕疵保証 |
- |
| 瑕疵保険 |
- |
| 評価・証明書 |
- |
| 備考 |
主要採光面:南向き
用途地域:商業地域
利回り:9.01%
年間予定賃料収入:42万円
|
| エネルギー消費性能 |
- |
| 断熱性能 |
- |
| 目安光熱費 |
- |
| バス・トイレ |
- |
| キッチン |
- |
| 設備・サービス |
バイク置き場、オートロック、エアコン、駐輪場 |
| その他 |
- |
| 条件等 |
オーナーチェンジ |
現況 |
賃貸中 |
| 引渡可能時期 |
相談 |
物件番号 |
6989370462 |
| 仲介手数料 |
売買代金の3%+6万円 |
|
|
| 情報公開日 |
2026年2月5日 |
次回更新予定日 |
2026年5月25日 |
| ケータイ用バーコード |
- スマートフォンでこの物件を見る
- スマートフォンからもこの物件をご覧になれます。
|
※「-」と表示されている項目については、情報提供会社にご確認ください。
| 周辺施設 |
まいばすけっと相模原駅南店 |
| 距離 |
600m |
| 周辺施設 |
セブンイレブン相模原5丁目店 |
| 距離 |
251m |
| 周辺施設 |
ローソンストア100相模原5丁目店 |
| 距離 |
265m |
| 周辺施設 |
ファミリーマート相模原四丁目店 |
| 距離 |
300m |
| 周辺施設 |
三菱UFJ銀行相模原中央支店 |
| 距離 |
608m |
ここから簡単にお問い合わせをすることができます。
(SSLでの暗号化での送信を希望されるお客さまは
こちら
よりお問い合わせください)
お問い合わせを行う前に
「個人情報の取り扱いについて」を必ずお読みください。
「個人情報の取り扱いについて」に同意いただいた場合は「上記にご同意の上 確認画面へ進む」のボタンをクリックしてください。
個人情報の取り扱いについて
皆さまが送付された個人情報はアットホーム(株)のサーバを経由し、お問い合わせ先の不動産会社にメールまたはFAXにて転送されるためアットホーム(株)にも保管されます。アットホーム(株)で保管された個人情報の取り扱いについては、【こちら】をご覧ください。
また、本画面でご記入いただいた個人情報は、お問い合わせ先の不動産会社でも保管します。 お問い合わせ先の不動産会社が保管する個人情報の取り扱いについては、不動産会社に直接お問い合わせください。
東京都知事免許(15)第17719号 |
|---|
- 交通:
- JR山手線/渋谷駅 徒歩6分
- 東京都渋谷区桜丘町21-2 池田ビル
- TEL:
- 03-3463-4101
- FAX:
- 03-3463-4329
- 所属団体:
- (公社)東京都宅地建物取引業協会会員(公社)首都圏不動産公正取引協議会加盟
取引態様:一般媒介  - 00130065
|
- スマートフォンで
この不動産会社を見る

|
- 提携サイト等より掲載されている物件情報につきましては、不動産会社詳細情報にリンクされていないものがあります。
- 物件に関するお問合せは、物件詳細ページの「情報提供会社」に表示されている不動産会社へ直接お願いいたします。
- 間取図は、現況を優先させていただきます。
- 映像は物件の一部を撮影したものです。物件の契約にあたっての最終判断はご自身の判断に基づいて行ってください。
- 仲介手数料について

アットホームは物件情報の適正化に努めております。
内容に誤りがある場合にはこちらへご連絡ください。