千葉県茂原市下永吉(茂原駅)の中古マンション・新築マンション・分譲マンション:物件詳細
交通 所在地 |
駅徒歩 |
価格 |
構造 階建/階 |
間取り 専有面積 |
物件種目 築年月 |
|
JR外房線/茂原
千葉県茂原市下永吉
|
20分
|
498万円
|
RC
7階建 / 6階
|
1SDK
40.32m²
|
中古マンション
1993年7月(築32年9ヶ月)
|
|
閑静な住宅街、外観タイル張り、管理人日勤
|
|
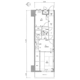
間取図
|
外観
南側正面
|
その他の画像
|
| 交通 | JR外房線 茂原駅 徒歩20分 |
| 所在地 |
千葉県茂原市下永吉
|
| 物件種目 |
中古マンション |
| 価格 |
498万円 |
平米単価 |
12.36万円 |
| 管理費等 |
9,400円 |
修繕積立金 |
7,740円 |
| 借地期間・地代(月額) |
- |
権利金 |
- |
| 敷金または保証金 |
- / - |
維持費等 |
- |
| その他一時金 |
- |
|
|
| 間取り |
1SDK(和 6) |
専有面積 |
40.32m²(壁芯) |
| 階建 / 階 |
7階建 / 6階 |
バルコニー |
4.32m² |
| 築年月 |
1993年7月(築32年9ヶ月)
|
建物構造 |
RC |
| 駐車場 |
- |
総戸数 |
64戸 |
| 駐輪場 |
- |
バイク置き場 |
- |
| ペット |
-
|
|
|
| 土地権利 |
所有権 |
敷地面積 |
- |
| 管理形態/管理員の勤務形態 |
全部委託/日勤(大京アステージ) |
国土法届出 |
- |
| アピールポイント |
売マンション ライオンズマンション茂原第二 6階
平成4年築 総タイル張りのきれいな外観
7階建て総戸数64戸 オートロック
JR外房線茂原駅徒歩20分
一宮川そばで景観豊かな環境
専有面積40㎡ 1SDK 西側バルコニー
高層階につき日当り眺望良好
小学校、病院、スーパー近く生活便利 |
| 建物名・部屋番号 |
|
| リフォーム履歴 |
- |
| リノベーション履歴 |
- |
| 瑕疵保証 |
- |
| 瑕疵保険 |
- |
| 評価・証明書 |
- |
| 備考 |
主要採光面:西向き
|
| エネルギー消費性能 |
- |
| 断熱性能 |
- |
| 目安光熱費 |
- |
| バス・トイレ |
- |
| キッチン |
システムキッチン |
| 設備・サービス |
全居室収納、室内洗濯機置場、オートロック、洗濯機置場、都市ガス |
| その他 |
エレベーター |
| 条件等 |
- |
現況 |
空家 |
| 引渡可能時期 |
相談 |
物件番号 |
6989423729 |
| 情報公開日 |
2026年2月9日 |
次回更新予定日 |
2026年3月9日 |
| ケータイ用バーコード |
- スマートフォンでこの物件を見る
- スマートフォンからもこの物件をご覧になれます。
|
※「-」と表示されている項目については、情報提供会社にご確認ください。
| 周辺施設 |
ミニストップ茂原JDI前店 |
| 距離 |
380m |
| 周辺施設 |
セブンイレブン茂原下永吉店 |
| 距離 |
961m |
| 周辺施設 |
医療法人社団東光会茂原中央病院 |
| 距離 |
380m |
ここから簡単にお問い合わせをすることができます。
(SSLでの暗号化での送信を希望されるお客さまは
こちら
よりお問い合わせください)
お問い合わせを行う前に
「個人情報の取り扱いについて」を必ずお読みください。
「個人情報の取り扱いについて」に同意いただいた場合は「上記にご同意の上 確認画面へ進む」のボタンをクリックしてください。
個人情報の取り扱いについて
皆さまが送付された個人情報はアットホーム(株)のサーバを経由し、お問い合わせ先の不動産会社にメールまたはFAXにて転送されるためアットホーム(株)にも保管されます。アットホーム(株)で保管された個人情報の取り扱いについては、【こちら】をご覧ください。
また、本画面でご記入いただいた個人情報は、お問い合わせ先の不動産会社でも保管します。 お問い合わせ先の不動産会社が保管する個人情報の取り扱いについては、不動産会社に直接お問い合わせください。
千葉県知事免許(12)第6298号 |
|---|
- 交通:
- JR外房線/茂原駅 徒歩10分
- 千葉県茂原市高師57
- TEL:
- 0475-23-3251
- FAX:
- 0475-23-7200
- 所属団体:
- (一社)千葉県宅地建物取引業協会会員(公社)首都圏不動産公正取引協議会加盟
取引態様:媒介  - 00410589
|
- スマートフォンで
この不動産会社を見る

|
- 提携サイト等より掲載されている物件情報につきましては、不動産会社詳細情報にリンクされていないものがあります。
- 物件に関するお問合せは、物件詳細ページの「情報提供会社」に表示されている不動産会社へ直接お願いいたします。
- 間取図は、現況を優先させていただきます。
- 映像は物件の一部を撮影したものです。物件の契約にあたっての最終判断はご自身の判断に基づいて行ってください。
- 仲介手数料について

アットホームは物件情報の適正化に努めております。
内容に誤りがある場合にはこちらへご連絡ください。