兵庫県尼崎市田能3丁目(猪名寺駅)の中古マンション・新築マンション・分譲マンション:物件詳細
交通 所在地 |
駅徒歩 |
価格 |
構造 階建/階 |
間取り 専有面積 |
物件種目 築年月 |
|
JR福知山線/猪名寺 [バス利用可] バス 5分 田能(阪神バス) 停歩2分
兵庫県尼崎市田能3丁目
|
23分
|
1,650万円
|
RC
7階建 / 1階
|
3LDK
66.39m²
|
中古マンション
2000年10月(築25年8ヶ月)
|
|
角部屋、南向き、3面採光、管理人日勤
|
|
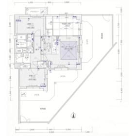
間取図
リノベプランとしても自由度の高いココロオドル間取です。
|
外観
当物件は園田・田能の落ち着きのある街並みを背景に、光と風を感じて快適にゆとりを楽しみ過ごせる住まいです。
|
<
その他の画像
>
|
| 交通 | JR福知山線 猪名寺駅 徒歩23分 [バス利用可] バス 5分 田能(阪神バス) 停歩2分 |
|---|
| その他の交通 | 阪急神戸線 園田駅 徒歩27分 [バス利用可] バス 8分 田能(阪神バス) 停歩2分 阪急伊丹線 稲野駅 徒歩28分 |
| 所在地 |
兵庫県尼崎市田能3丁目
|
| 物件種目 |
中古マンション |
| 価格 |
1,650万円 |
平米単価 |
24.86万円 |
| 管理費等 |
11,310円 |
修繕積立金 |
13,200円 |
| 借地期間・地代(月額) |
- |
権利金 |
- |
| 敷金または保証金 |
- / - |
維持費等 |
- |
| その他一時金 |
- |
|
|
| 間取り |
3LDK(和 6 洋 6.2・5.6) |
専有面積 |
66.39m²(壁芯) |
| 階建 / 階 |
7階建 / 1階 |
バルコニー |
2.80m² |
| 築年月 |
2000年10月(築25年8ヶ月)
|
建物構造 |
RC |
| 駐車場 |
- |
総戸数 |
- |
| 駐輪場 |
- |
バイク置き場 |
- |
| ペット |
-
|
|
|
| 土地権利 |
所有権 |
敷地面積 |
- |
| 管理形態/管理員の勤務形態 |
全部委託/日勤(HESTAオークラハウジング(株)) |
国土法届出 |
- |
| アピールポイント |
◇リノベプランは「テラテンポ株式会社」で検索頂き、弊社のリノベ事例を是非ご覧ください!
◇立地
・阪急園田駅等からバスを利用して約10分でご自宅に!
梅田へもドアtoドアで約30分でアクセス良好!
・園和北小学校まで徒歩約6分
・園和中学校まで徒歩約15分
お子さまの通学にも安心!
・コンビニ徒歩5分、スーパー万代徒歩11分で買い物も便利!
・公園も10分圏内に複数あり、のどかな雰囲気!
◇物件
・オートロックと宅配ボックス付のマンション。外壁一部はタイル張り!
・床暖房アリ!
・専有面積66.39㎡+専用庭62.77㎡(使用料2040円/月)
1階部分の専用庭付で暮らしの中に「落ち着き」「安らぎ」を感じられます。 |
| 建物名・部屋番号 |
エーベル園田・田能 |
| リフォーム履歴 |
- |
| リノベーション履歴 |
- |
| 瑕疵保証 |
- |
| 瑕疵保険 |
- |
| 評価・証明書 |
- |
| 備考 |
主要採光面:南向き
|
| エネルギー消費性能 |
- |
| 断熱性能 |
- |
| 目安光熱費 |
- |
| バス・トイレ |
シャワー付洗面化粧台、浴室に窓あり |
| キッチン |
カウンターキッチン、システムキッチン、食器洗浄乾燥機、3口以上コンロ、グリル |
| 設備・サービス |
全居室収納、床暖房、三面バルコニー、収納スペース、室内洗濯機置場、オートロック、モニター付インターホン、防犯カメラ、給湯、都市ガス、専用庭、ワイドバルコニー、テラス |
| その他 |
宅配BOX、エレベーター |
| 条件等 |
- |
現況 |
空家 |
| 引渡可能時期 |
即時 |
物件番号 |
6989456422 |
| 情報公開日 |
2026年2月11日 |
次回更新予定日 |
2026年5月20日 |
| ケータイ用バーコード |
- スマートフォンでこの物件を見る
- スマートフォンからもこの物件をご覧になれます。
|
※「-」と表示されている項目については、情報提供会社にご確認ください。
ここから簡単にお問い合わせをすることができます。
(SSLでの暗号化での送信を希望されるお客さまは
こちら
よりお問い合わせください)
お問い合わせを行う前に
「個人情報の取り扱いについて」を必ずお読みください。
「個人情報の取り扱いについて」に同意いただいた場合は「上記にご同意の上 確認画面へ進む」のボタンをクリックしてください。
個人情報の取り扱いについて
皆さまが送付された個人情報はアットホーム(株)のサーバを経由し、お問い合わせ先の不動産会社にメールまたはFAXにて転送されるためアットホーム(株)にも保管されます。アットホーム(株)で保管された個人情報の取り扱いについては、【こちら】をご覧ください。
また、本画面でご記入いただいた個人情報は、お問い合わせ先の不動産会社でも保管します。 お問い合わせ先の不動産会社が保管する個人情報の取り扱いについては、不動産会社に直接お問い合わせください。
大阪府知事免許(1)第65353号 |
|---|
- 交通:
- 南海高野線/難波駅 徒歩4分
- 大阪府大阪市浪速区難波中3丁目9-1 難波ビルディング205号室
- TEL:
- 06-4394-7371
- 所属団体:
- (公社)全日本不動産協会会員(公社)近畿地区不動産公正取引協議会加盟
取引態様:媒介  - 50110368
|
- スマートフォンで
この不動産会社を見る

|
- 提携サイト等より掲載されている物件情報につきましては、不動産会社詳細情報にリンクされていないものがあります。
- 物件に関するお問合せは、物件詳細ページの「情報提供会社」に表示されている不動産会社へ直接お願いいたします。
- 間取図は、現況を優先させていただきます。
- 映像は物件の一部を撮影したものです。物件の契約にあたっての最終判断はご自身の判断に基づいて行ってください。
- 仲介手数料について

アットホームは物件情報の適正化に努めております。
内容に誤りがある場合にはこちらへご連絡ください。