愛知県名古屋市名東区高針原2丁目(星ヶ丘駅)の中古マンション・新築マンション・分譲マンション:物件詳細
交通 所在地 |
駅徒歩 |
価格 |
構造 階建/階 |
間取り 専有面積 |
物件種目 築年月 |
|
名古屋市東山線/星ヶ丘
愛知県名古屋市名東区高針原2丁目
|
32分
|
2,180万円
|
RC
7階建 / 5階
|
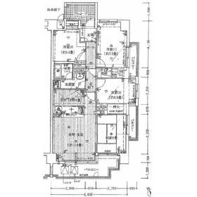
4LDK
76.86m²
|
中古マンション
1995年3月(築31年3ヶ月)
|
|
ペット相談、角部屋、南向き、管理人巡回
|
|
間取図
|
エントランス
|
<
その他の画像
>
|
| 交通 | 名古屋市東山線 星ヶ丘駅 徒歩32分 |
| 所在地 |
愛知県名古屋市名東区高針原2丁目
|
| 物件種目 |
中古マンション |
| 価格 |
2,180万円 |
平米単価 |
28.37万円 |
| 管理費等 |
8,000円 |
修繕積立金 |
9,900円 |
| 借地期間・地代(月額) |
- |
権利金 |
- |
| 敷金または保証金 |
- / - |
維持費等 |
- |
| その他一時金 |
- |
|
|
| 間取り |
4LDK |
専有面積 |
76.86m²(内法) |
| 階建 / 階 |
7階建 / 5階 |
バルコニー |
13.88m² |
| 築年月 |
1995年3月(築31年3ヶ月)
|
建物構造 |
RC |
| 駐車場 |
有 8,000円/月 |
総戸数 |
- |
| 駐輪場 |
有 無料 |
バイク置き場 |
有 無料 |
| ペット |
相談 |
|
|
| 土地権利 |
所有権 |
敷地面積 |
837.95m² |
| 管理形態/管理員の勤務形態 |
全部委託/巡回(株式会社合人社計画研究所) |
国土法届出 |
- |
| アピールポイント |
名古屋市名東区高針原2丁目「NDSマンション高針」504号室を販売します。5階部分(7階建)で、角住戸ならではの開放感が魅力。大きな窓から光が入る明るいLDKに、家事がしやすいカウンターキッチン。洋室3室+和室の4LDKで、在宅ワーク・子供部屋・来客用など使い分けもしやすい間取りです。バルコニーが複数あり、風が抜けて洗濯動線も良好。室内は写真の通りコンディション良好で、そのまま気持ちよく住み始めたい方におすすめ。共用部も整い、オートロックで安心感もあります。内覧はととのい不動産(ふつき株式会社)が段取りします。日程調整すぐ動けますので、まずはお気軽にお問い合わせください。
物件 |
| 建物名・部屋番号 |
NDSマンション |
| リフォーム履歴 |
- |
| リノベーション履歴 |
- |
| 瑕疵保証 |
- |
| 瑕疵保険 |
- |
| 評価・証明書 |
- |
| 備考 |
主要採光面:南向き
用途地域:2種住居
場所:名東区高針原2丁目205番地
現状渡し。
室内状態良好・内覧随時可。条件調整含め柔軟に進めます。
住宅ローン相談からサポート可能。
まずはお気軽にお問い合わせください。スピード対応します。
|
| エネルギー消費性能 |
- |
| 断熱性能 |
- |
| 目安光熱費 |
- |
| バス・トイレ |
- |
| キッチン |
浄水器、2口コンロ、グリル |
| 設備・サービス |
バイク置き場、オートロック、モニター付インターホン、給湯、エアコン、駐輪場 |
| その他 |
エレベーター |
| 条件等 |
- |
現況 |
空家 |
| 引渡可能時期 |
相談 |
物件番号 |
6989457928 |
| 仲介手数料 |
売買代金の3.3%+6.6万円 |
|
|
| 情報公開日 |
2026年2月11日 |
次回更新予定日 |
2026年5月17日 |
| ケータイ用バーコード |
- スマートフォンでこの物件を見る
- スマートフォンからもこの物件をご覧になれます。
|
※「-」と表示されている項目については、情報提供会社にご確認ください。
| 周辺施設 |
ファミリーマート名東牧の原店 |
| 距離 |
555m |
| 周辺施設 |
セブンイレブン名古屋高針原1丁目店 |
| 距離 |
478m |
ここから簡単にお問い合わせをすることができます。
(SSLでの暗号化での送信を希望されるお客さまは
こちら
よりお問い合わせください)
お問い合わせを行う前に
「個人情報の取り扱いについて」を必ずお読みください。
「個人情報の取り扱いについて」に同意いただいた場合は「上記にご同意の上 確認画面へ進む」のボタンをクリックしてください。
個人情報の取り扱いについて
皆さまが送付された個人情報はアットホーム(株)のサーバを経由し、お問い合わせ先の不動産会社にメールまたはFAXにて転送されるためアットホーム(株)にも保管されます。アットホーム(株)で保管された個人情報の取り扱いについては、【こちら】をご覧ください。
また、本画面でご記入いただいた個人情報は、お問い合わせ先の不動産会社でも保管します。 お問い合わせ先の不動産会社が保管する個人情報の取り扱いについては、不動産会社に直接お問い合わせください。
愛知県知事免許(1)第25508号 |
|---|
- 交通:
- 名鉄名古屋本線/有松駅 徒歩10分
- 愛知県名古屋市緑区太子2丁目132番地
- TEL:
- 052-380-8873
- FAX:
- 052-307-4164
- 所属団体:
- (公社)全日本不動産協会会員東海不動産公正取引協議会加盟
取引態様:専属専任媒介  - 40411029
|
- スマートフォンで
この不動産会社を見る

|
- 提携サイト等より掲載されている物件情報につきましては、不動産会社詳細情報にリンクされていないものがあります。
- 物件に関するお問合せは、物件詳細ページの「情報提供会社」に表示されている不動産会社へ直接お願いいたします。
- 間取図は、現況を優先させていただきます。
- 映像は物件の一部を撮影したものです。物件の契約にあたっての最終判断はご自身の判断に基づいて行ってください。
- 仲介手数料について

アットホームは物件情報の適正化に努めております。
内容に誤りがある場合にはこちらへご連絡ください。