北海道札幌市白石区北郷八条8丁目(白石駅)の中古マンション・新築マンション・分譲マンション:物件詳細
交通 所在地 |
駅徒歩 |
価格 |
構造 階建/階 |
間取り 専有面積 |
物件種目 築年月 |
|
札幌市東西線/白石 【バス】23分 端穂中央 停歩5分
北海道札幌市白石区北郷八条8丁目
|
-
|
2,750万円
|
RC
2階建 / メゾネット1階~2階部分
|
4LDK
123.44m²
|
中古マンション
オーナーチェンジ
2011年10月(築14年6ヶ月)
|
|
ペット相談、駐車場2台分、天井高2.5M以上、バス1坪以上、閑静な住宅街、メゾネット、管理人巡回
|
|
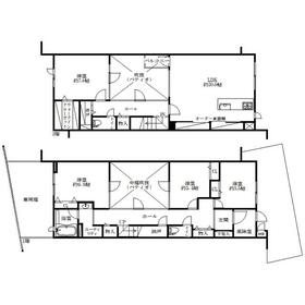
間取図
|
リビング
|
<
その他の画像
>
|
| 交通 | 札幌市東西線 白石駅 【バス】 23分 端穂中央 停歩5分 |
| 所在地 |
北海道札幌市白石区北郷八条8丁目
|
| 物件種目 |
中古マンション |
| 価格 |
2,750万円 |
平米単価 |
22.28万円 |
| 管理費等 |
3,890円 |
修繕積立金 |
8,400円 |
| 借地期間・地代(月額) |
- |
権利金 |
- |
| 敷金または保証金 |
- / - |
維持費等 |
- |
| その他一時金 |
- |
|
|
| 間取り |
4LDK(洋 7.8・6.8・5.4・5.5 LDK 20) |
専有面積 |
123.44m²(壁芯) |
| 階建 / 階 |
2階建 / メゾネット1階~2階部分 |
バルコニー |
- |
| 築年月 |
2011年10月(築14年6ヶ月)
|
建物構造 |
RC |
| 駐車場 |
有 3,000円/月 |
総戸数 |
12戸 |
| 駐輪場 |
有 |
バイク置き場 |
- |
| ペット |
規約による制限あり |
|
|
| 土地権利 |
所有権 |
敷地面積 |
1,951.55m² |
| 管理形態/管理員の勤務形態 |
全部委託/巡回(アイ・ハウズィングサービス) |
国土法届出 |
- |
| アピールポイント |
■駐車場2台分あり■台所オーダーキッチン収納ユニット棚■全室オーダーバーチカルブラインド■全室ダウンライト照明■屋上には大型テラス■1階専用庭■中庭吹抜■対面式キッチン■1階2階ともにトイレあり■リビング天井高310mm開放的■リビングLDK20帖4LDK■リビング床暖房■カウンターキッチン■IHクッキングヒーター■全居室に収納・ウォークインクローゼット・階段下納戸あり■リビング床暖房■暖房給湯は、集中プロパンガスを熱源とするセントラルヒーティング■温水洗浄便座付トイレ1階2階ともにあり■シャワー付洗面化粧台■浴室追焚機能付・浴室内に窓あり■オートロック・モニタ付インターホン■ペット飼育可(規約による制限あり)■バルコニーあり■セントラルヒーティングボイラー新品交換■エアコン設置あり■ |
| 建物名・部屋番号 |
|
| リフォーム履歴 |
- |
| リノベーション履歴 |
- |
| 瑕疵保証 |
- |
| 瑕疵保険 |
- |
| 評価・証明書 |
- |
| 備考 |
用途地域:1種低層
利回り:7.85%
年間予定賃料収入:216万円
|
| エネルギー消費性能 |
- |
| 断熱性能 |
- |
| 目安光熱費 |
- |
| バス・トイレ |
追焚機能、シャワー付洗面化粧台、温水洗浄便座、トイレ2ヶ所、浴室に窓あり |
| キッチン |
システムキッチン、独立型キッチン、食器洗浄乾燥機、IHクッキングヒーター |
| 設備・サービス |
モニター付オートロック、全居室収納、ウォークインクローゼット、床暖房、収納スペース、室内洗濯機置場、クローゼット、オートロック、モニター付インターホン、洗濯機置場、給湯、全居室フローリング、プロパンガス、エアコン、暖房、冷房、専用庭、駐輪場、テラス、ダウンライト、照明器具、光ファイバー |
| その他 |
- |
| 条件等 |
オーナーチェンジ |
現況 |
空家 |
| 引渡可能時期 |
相談 |
物件番号 |
6989482826 |
| 情報公開日 |
2026年2月13日 |
次回更新予定日 |
2026年3月27日 |
| ケータイ用バーコード |
- スマートフォンでこの物件を見る
- スマートフォンからもこの物件をご覧になれます。
|
※「-」と表示されている項目については、情報提供会社にご確認ください。
| 周辺施設 |
コープさっぽろきたごう店 |
| 距離 |
1800m |
| 周辺施設 |
セブンイレブン札幌北郷9条店 |
| 距離 |
450m |
ここから簡単にお問い合わせをすることができます。
(SSLでの暗号化での送信を希望されるお客さまは
こちら
よりお問い合わせください)
お問い合わせを行う前に
「個人情報の取り扱いについて」を必ずお読みください。
「個人情報の取り扱いについて」に同意いただいた場合は「上記にご同意の上 確認画面へ進む」のボタンをクリックしてください。
個人情報の取り扱いについて
皆さまが送付された個人情報はアットホーム(株)のサーバを経由し、お問い合わせ先の不動産会社にメールまたはFAXにて転送されるためアットホーム(株)にも保管されます。アットホーム(株)で保管された個人情報の取り扱いについては、【こちら】をご覧ください。
また、本画面でご記入いただいた個人情報は、お問い合わせ先の不動産会社でも保管します。 お問い合わせ先の不動産会社が保管する個人情報の取り扱いについては、不動産会社に直接お問い合わせください。
北海道知事免許 石狩(6)第6478号 |
|---|
- 交通:
- 札幌市東西線/白石駅 徒歩12分
- 北海道札幌市豊平区美園二条5丁目4-8
- TEL:
- 011-817-0005
- FAX:
- 011-817-0006
- 所属団体:
- (公社)全日本不動産協会会員(一社)北海道不動産公正取引協議会加盟
取引態様:一般媒介  - 10002468
|
- スマートフォンで
この不動産会社を見る

|
- 提携サイト等より掲載されている物件情報につきましては、不動産会社詳細情報にリンクされていないものがあります。
- 物件に関するお問合せは、物件詳細ページの「情報提供会社」に表示されている不動産会社へ直接お願いいたします。
- 間取図は、現況を優先させていただきます。
- 映像は物件の一部を撮影したものです。物件の契約にあたっての最終判断はご自身の判断に基づいて行ってください。
- 仲介手数料について

アットホームは物件情報の適正化に努めております。
内容に誤りがある場合にはこちらへご連絡ください。