兵庫県川辺郡猪名川町松尾台2丁目(日生中央駅)の中古マンション・新築マンション・分譲マンション:物件詳細
交通 所在地 |
駅徒歩 |
価格 |
構造 階建/階 |
間取り 専有面積 |
物件種目 築年月 |
|
能勢電鉄妙見線/日生中央
兵庫県川辺郡猪名川町松尾台2丁目
|
6分
|
1,050万円
|
RC
10階建 / 8階
|
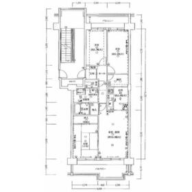
3SLDK
74.08m²
|
中古マンション
1989年8月(築36年10ヶ月)
|
|
駐車場2台分、閑静な住宅街、区画整理地内、隣接建物距離2m以上、管理人日勤
|
|
間取図
|
外観
|
<
その他の画像
>
|
| 交通 | 能勢電鉄妙見線 日生中央駅 徒歩6分 |
| 所在地 |
兵庫県川辺郡猪名川町松尾台2丁目
|
| 物件種目 |
中古マンション |
| 価格 |
1,050万円 |
平米単価 |
14.18万円 |
| 管理費等 |
7,170円 |
修繕積立金 |
13,334円 |
| 借地期間・地代(月額) |
- |
権利金 |
- |
| 敷金または保証金 |
- / - |
維持費等 |
有線放送使用料:880円/月、自治会費:307円/月、組合賛助費:500円/月 |
| その他一時金 |
なし |
|
|
| 間取り |
3SLDK(和 6 洋 6.6・5.3 LDK 13.4 S 2) |
専有面積 |
74.08m²(壁芯) |
| 階建 / 階 |
10階建 / 8階 |
バルコニー |
17.87m² |
| 築年月 |
1989年8月(築36年10ヶ月)
|
建物構造 |
RC |
| 駐車場 |
有 6,500円/月 |
総戸数 |
121戸 |
| 駐輪場 |
有 100円/月 |
バイク置き場 |
有 200円/月 |
| ペット |
-
|
|
|
| 土地権利 |
所有権 |
敷地面積 |
10,378.50m² |
| 管理形態/管理員の勤務形態 |
全部委託/日勤(株式会社大京アステージ) |
国土法届出 |
- |
| アピールポイント |
8階部分につき前面棟の影響が全くない見晴らしのよいお住まいです。エレベーター停止階ではありませんが、その分お部屋の前を他の人が通らず、プライバシーが確保されたお部屋となっております。全く手を入れていない分販売価格を抑えましたので、ご自身で間取り変更を含むフルリノベーションをお考えの方や、こだわりのキッチンや浴室、洗面化粧台、トイレを入れたい方には好都合な物件です。日生中央駅まで徒歩6分で通勤や買い物に便利ですし、小学校もすぐ近くにありますので、毎日の生活に余裕と潤いが生まれるお住まいです。まずはご覧いただき、しっかりとリフォームの打ち合わせをして頂けましたらと思います。 |
| 建物名・部屋番号 |
|
| リフォーム履歴 |
- |
| リノベーション履歴 |
- |
| 瑕疵保証 |
- |
| 瑕疵保険 |
- |
| 評価・証明書 |
- |
| 備考 |
主要採光面:南東向き
施工会社:株式会社大林組、青木建設株式会社、飛島建設株式会社
用途地域:1種中高
延べ面積:16,854.78m²
売主は建物ならびに附属設備に関しまして、一切契約不適合責任を負いません。
|
| エネルギー消費性能 |
- |
| 断熱性能 |
- |
| 目安光熱費 |
- |
| バス・トイレ |
追焚機能 |
| キッチン |
システムキッチン、3口以上コンロ |
| 設備・サービス |
バイク置き場、収納スペース、室内洗濯機置場、モニター付インターホン、給湯、二面バルコニー、駐輪場、有線放送 |
| その他 |
敷地内公園、敷地内AED有、エレベーター2基以上 |
| 条件等 |
- |
現況 |
空家 |
| 引渡可能時期 |
相談 |
物件番号 |
6989489315 |
| 仲介手数料 |
41万円 |
|
|
| 情報公開日 |
2026年2月13日 |
次回更新予定日 |
2026年5月23日 |
| ケータイ用バーコード |
- スマートフォンでこの物件を見る
- スマートフォンからもこの物件をご覧になれます。
|
※「-」と表示されている項目については、情報提供会社にご確認ください。
| 周辺施設 |
認定こども園YMCA松尾台こども園YMCA松尾台幼稚園 |
| 距離 |
559m |
| 周辺施設 |
池田泉州銀行日生中央支店 |
| 距離 |
461m |
ここから簡単にお問い合わせをすることができます。
(SSLでの暗号化での送信を希望されるお客さまは
こちら
よりお問い合わせください)
お問い合わせを行う前に
「個人情報の取り扱いについて」を必ずお読みください。
「個人情報の取り扱いについて」に同意いただいた場合は「上記にご同意の上 確認画面へ進む」のボタンをクリックしてください。
個人情報の取り扱いについて
皆さまが送付された個人情報はアットホーム(株)のサーバを経由し、お問い合わせ先の不動産会社にメールまたはFAXにて転送されるためアットホーム(株)にも保管されます。アットホーム(株)で保管された個人情報の取り扱いについては、【こちら】をご覧ください。
また、本画面でご記入いただいた個人情報は、お問い合わせ先の不動産会社でも保管します。 お問い合わせ先の不動産会社が保管する個人情報の取り扱いについては、不動産会社に直接お問い合わせください。
兵庫県知事免許(1)第204753号 |
|---|
- 交通:
- 阪神本線/甲子園駅 徒歩10分
- 兵庫県西宮市甲子園浜田町12-25 ノナ甲子園102
- TEL:
- 0798-78-5823
- FAX:
- 0798-78-8723
- 所属団体:
- (公社)全日本不動産協会会員(公社)近畿地区不動産公正取引協議会加盟
取引態様:専任媒介  - 50022070
|
- スマートフォンで
この不動産会社を見る

|
- 提携サイト等より掲載されている物件情報につきましては、不動産会社詳細情報にリンクされていないものがあります。
- 物件に関するお問合せは、物件詳細ページの「情報提供会社」に表示されている不動産会社へ直接お願いいたします。
- 間取図は、現況を優先させていただきます。
- 映像は物件の一部を撮影したものです。物件の契約にあたっての最終判断はご自身の判断に基づいて行ってください。
- 仲介手数料について

アットホームは物件情報の適正化に努めております。
内容に誤りがある場合にはこちらへご連絡ください。