愛知県豊田市若林東町沖田(若林駅)の中古マンション・新築マンション・分譲マンション:物件詳細
交通 所在地 |
駅徒歩 |
価格 |
構造 階建/階 |
間取り 専有面積 |
物件種目 築年月 |
|
名鉄三河線/若林
愛知県豊田市若林東町沖田
|
3分
|
650万円
|
SRC
7階建 / メゾネット6階~7階部分
|
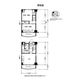
2DK
54.29m²
|
中古マンション
1975年2月(築51年4ヶ月)
|
|
駐車場2台分、最上階、2面採光、メゾネット、管理人巡回
|
|
間取図
|
外観
|
<
その他の画像
>
|
| 交通 | 名鉄三河線 若林駅 徒歩3分 |
| 所在地 |
愛知県豊田市若林東町沖田
|
| 物件種目 |
中古マンション |
| 価格 |
650万円 |
平米単価 |
11.98万円 |
| 管理費等 |
6,320円 |
修繕積立金 |
5,000円 |
| 借地期間・地代(月額) |
- |
権利金 |
- |
| 敷金または保証金 |
- / - |
維持費等 |
- |
| その他一時金 |
- |
|
|
| 間取り |
2DK(洋 6・6) |
専有面積 |
54.29m²(壁芯) |
| 階建 / 階 |
7階建 / メゾネット6階~7階部分 |
バルコニー |
10.29m² |
| 築年月 |
1975年2月(築51年4ヶ月)
|
建物構造 |
SRC |
| 駐車場 |
有 3,300円/月 |
総戸数 |
66戸 |
| 駐輪場 |
- |
バイク置き場 |
- |
| ペット |
-
|
|
|
| 土地権利 |
所有権 |
敷地面積 |
- |
| 管理形態/管理員の勤務形態 |
一部委託/巡回(㈱エイティーノウビ) |
国土法届出 |
- |
| アピールポイント |
豊田市南部、マンションのご紹介です。目の前に、名鉄三河線「若林駅」があり、交通便利です。(※現在建替え工事中、ピカピカに生れ変ります!)メゾネットタイプで最上階(6.7階)の物件です。南東向き陽当たり良好です。周辺はスーパー等の商業施設充実しています。駐車場2台確保!専用物置有り(1.8m×1.67m)、エアコン3台付!是非一度ご内覧ください。 |
| 建物名・部屋番号 |
富士若林マンションB棟 614号 |
| リフォーム履歴 |
- |
| リノベーション履歴 |
- |
| 瑕疵保証 |
- |
| 瑕疵保険 |
- |
| 評価・証明書 |
- |
| 備考 |
主要採光面:南東向き
施工会社:㈱富士工務店
用途地域:1種住居
|
| エネルギー消費性能 |
- |
| 断熱性能 |
- |
| 目安光熱費 |
- |
| バス・トイレ |
温水洗浄便座 |
| キッチン |
2口コンロ、グリル |
| 設備・サービス |
エアコン2台以上、室内洗濯機置場、給湯、都市ガス、二面バルコニー |
| その他 |
エレベーター |
| 条件等 |
- |
現況 |
空家 |
| 引渡可能時期 |
相談 |
物件番号 |
6989496604 |
| 仲介手数料 |
33万円 |
|
|
| 情報公開日 |
2026年3月7日 |
次回更新予定日 |
2026年5月23日 |
| ケータイ用バーコード |
- スマートフォンでこの物件を見る
- スマートフォンからもこの物件をご覧になれます。
|
※「-」と表示されている項目については、情報提供会社にご確認ください。
| 周辺施設 |
名鉄若林駅(※完成予想図 現在建替え工事中です。ピカピカに生れ変ります) |
| 距離 |
180m |
写真を見る |
| 周辺施設 |
社会福祉法人大成福祉会わかばこども園 |
| 距離 |
750m |
写真を見る |
| 周辺施設 |
豊田市立若林東小学校 |
| 距離 |
1200m |
写真を見る |
| 周辺施設 |
豊田市立高岡中学校 |
| 距離 |
1600m |
写真を見る |
| 周辺施設 |
ドミー若林店 |
| 距離 |
450m |
写真を見る |
| 周辺施設 |
ファミリーマート豊田若林店 |
| 距離 |
78m |
写真を見る |
| 周辺施設 |
やまのぶ若林店 |
| 距離 |
900m |
写真を見る |
| 周辺施設 |
スギ薬局 豊田吉原店 |
| 距離 |
900m |
写真を見る |
ここから簡単にお問い合わせをすることができます。
(SSLでの暗号化での送信を希望されるお客さまは
こちら
よりお問い合わせください)
お問い合わせを行う前に
「個人情報の取り扱いについて」を必ずお読みください。
「個人情報の取り扱いについて」に同意いただいた場合は「上記にご同意の上 確認画面へ進む」のボタンをクリックしてください。
個人情報の取り扱いについて
皆さまが送付された個人情報はアットホーム(株)のサーバを経由し、お問い合わせ先の不動産会社にメールまたはFAXにて転送されるためアットホーム(株)にも保管されます。アットホーム(株)で保管された個人情報の取り扱いについては、【こちら】をご覧ください。
また、本画面でご記入いただいた個人情報は、お問い合わせ先の不動産会社でも保管します。 お問い合わせ先の不動産会社が保管する個人情報の取り扱いについては、不動産会社に直接お問い合わせください。
愛知県知事免許(6)第18029号 |
|---|
- 交通:
- 名鉄三河線/三河八橋駅 【バス】 駒場東口 停歩5分
- 愛知県豊田市駒場町平古83-9
- TEL:
- 0565-57-1509
- FAX:
- 0565-57-3478
- 所属団体:
- (公社)愛知県宅地建物取引業協会会員東海不動産公正取引協議会加盟
取引態様:専属専任媒介  - 40003816
|
- スマートフォンで
この不動産会社を見る

|
- 提携サイト等より掲載されている物件情報につきましては、不動産会社詳細情報にリンクされていないものがあります。
- 物件に関するお問合せは、物件詳細ページの「情報提供会社」に表示されている不動産会社へ直接お願いいたします。
- 間取図は、現況を優先させていただきます。
- 映像は物件の一部を撮影したものです。物件の契約にあたっての最終判断はご自身の判断に基づいて行ってください。
- 仲介手数料について

アットホームは物件情報の適正化に努めております。
内容に誤りがある場合にはこちらへご連絡ください。