兵庫県神戸市中央区下山手通3丁目(三宮駅)の中古マンション・新築マンション・分譲マンション:物件詳細
交通 所在地 |
駅徒歩 |
価格 |
構造 階建/階 |
間取り 専有面積 |
物件種目 築年月 |
|
地下鉄西神・山手線/三宮
兵庫県神戸市中央区下山手通3丁目
|
6分
|
4,980万円
|
RC
13階建 / 4階
|
4DK
57.86m²
|
中古マンション
賃貸中
2008年1月(築18年3ヶ月)
|
|
ペット相談、南向き、バリアフリー、管理人常駐
|
|
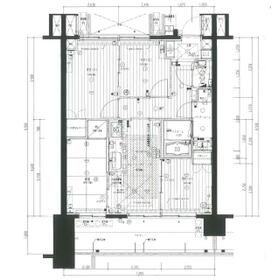
間取図
|
|
<
その他の画像
>
|
| 交通 | 地下鉄西神・山手線 三宮駅 徒歩6分 |
|---|
| その他の交通 | JR東海道本線 元町駅 徒歩8分 阪急神戸線 神戸三宮駅 徒歩8分 |
| 所在地 |
兵庫県神戸市中央区下山手通3丁目
|
| 物件種目 |
中古マンション |
| 価格 |
4,980万円 |
平米単価 |
86.07万円 |
| 管理費等 |
12,730円 |
修繕積立金 |
19,740円 |
| 借地期間・地代(月額) |
- |
権利金 |
- |
| 敷金または保証金 |
- / - |
維持費等 |
- |
| その他一時金 |
- |
|
|
| 間取り |
4DK(和 4 洋 6.1・4.5・4.1 DK 8.1) |
専有面積 |
57.86m²(壁芯) |
| 階建 / 階 |
13階建 / 4階 |
バルコニー |
- |
| 築年月 |
2008年1月(築18年3ヶ月)
|
建物構造 |
RC |
| 駐車場 |
- |
総戸数 |
91戸 |
| 駐輪場 |
有 無料 |
バイク置き場 |
- |
| ペット |
小型犬可・ 猫可 |
|
|
| 土地権利 |
所有権 |
敷地面積 |
- |
| 管理形態/管理員の勤務形態 |
全部委託/常駐(住商建物株式会社) |
国土法届出 |
- |
| アピールポイント |
お探しの方には嬉しいペット(小型犬)相談可。通勤通学に便の良い三宮駅徒歩6分立地の物件、更に自転車通勤・通学者には必須の駐輪場付だから、自転車を使った買い物も楽になります。また不在時の通販受け取りで重宝する宅配BOX付で、その上合理的なシステムキッチン仕様なので、無駄や隙がありません。ちなみに生ゴミ処理の手間を省いてくれるディスポーザー付です。家族の物語が生まれる4DK。実際の空間をご自身で体感ください。 |
| 建物名・部屋番号 |
トア山手フラッツ棟 |
| リフォーム履歴 |
- |
| リノベーション履歴 |
- |
| 瑕疵保証 |
- |
| 瑕疵保険 |
- |
| 評価・証明書 |
- |
| 備考 |
主要採光面:南向き
用途地域:商業地域
現状賃貸中、3月末退去予定
|
| エネルギー消費性能 |
- |
| 断熱性能 |
- |
| 目安光熱費 |
- |
| バス・トイレ |
浴室乾燥機、追焚機能、シャワー付洗面化粧台、温水洗浄便座、タンクレストイレ |
| キッチン |
システムキッチン、浄水器、ディスポーザー、3口以上コンロ |
| 設備・サービス |
モニター付オートロック、収納スペース、室内洗濯機置場、クローゼット、オートロック、ディンプルキー、給湯、駐輪場、人感センサー付照明、火災警報器(報知機) |
| その他 |
宅配BOX、エレベーター2基以上 |
| 条件等 |
- |
現況 |
賃貸中 |
| 引渡可能時期 |
指定有り2026年4月25日 |
物件番号 |
6989551075 |
| 仲介手数料 |
売買代金の3%+6万円 |
|
|
| 情報公開日 |
2026年2月18日 |
次回更新予定日 |
2026年4月1日 |
| ケータイ用バーコード |
- スマートフォンでこの物件を見る
- スマートフォンからもこの物件をご覧になれます。
|
※「-」と表示されている項目については、情報提供会社にご確認ください。
ここから簡単にお問い合わせをすることができます。
(SSLでの暗号化での送信を希望されるお客さまは
こちら
よりお問い合わせください)
お問い合わせを行う前に
「個人情報の取り扱いについて」を必ずお読みください。
「個人情報の取り扱いについて」に同意いただいた場合は「上記にご同意の上 確認画面へ進む」のボタンをクリックしてください。
個人情報の取り扱いについて
皆さまが送付された個人情報はアットホーム(株)のサーバを経由し、お問い合わせ先の不動産会社にメールまたはFAXにて転送されるためアットホーム(株)にも保管されます。アットホーム(株)で保管された個人情報の取り扱いについては、【こちら】をご覧ください。
また、本画面でご記入いただいた個人情報は、お問い合わせ先の不動産会社でも保管します。 お問い合わせ先の不動産会社が保管する個人情報の取り扱いについては、不動産会社に直接お問い合わせください。
兵庫県知事免許(4)第11386号 |
|---|
- 交通:
- 阪急神戸線/神戸三宮駅 徒歩5分
- 兵庫県神戸市中央区下山手通2丁目15-10
- TEL:
- 078-333-0003
- FAX:
- 078-331-0370
- 所属団体:
- (一社)兵庫県宅地建物取引業協会会員(公社)近畿地区不動産公正取引協議会加盟
取引態様:媒介  - 50002877
|
- スマートフォンで
この不動産会社を見る

|
- 提携サイト等より掲載されている物件情報につきましては、不動産会社詳細情報にリンクされていないものがあります。
- 物件に関するお問合せは、物件詳細ページの「情報提供会社」に表示されている不動産会社へ直接お願いいたします。
- 間取図は、現況を優先させていただきます。
- 映像は物件の一部を撮影したものです。物件の契約にあたっての最終判断はご自身の判断に基づいて行ってください。
- 仲介手数料について

アットホームは物件情報の適正化に努めております。
内容に誤りがある場合にはこちらへご連絡ください。