東京都東久留米市南沢5丁目(ひばりヶ丘駅)の中古マンション・新築マンション・分譲マンション:物件詳細
交通 所在地 |
駅徒歩 |
価格 |
構造 階建/階 |
間取り 専有面積 |
物件種目 築年月 |
|
西武池袋線/ひばりヶ丘 [バス利用可] バス 7分 南沢五丁目 停歩1分
東京都東久留米市南沢5丁目
|
28分
|
4,580万円
|
RC
11階建 / 6階
|
3LDK
91.91m²
|
中古マンション
2003年11月(築22年5ヶ月)
|
|
バス1坪以上、全室2面採光、管理人日勤
|
|
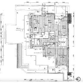
間取図
素晴らしい眺望。広々91.91m2の3LDK+ウォークインクロゼット+エクスクロークの欲張り間取り。暮らしを多彩に演出する広いルーフバルコニー。エントランスポーチも広く、トランクルームもあります。
|
眺望
素晴らしい眺望。冬の空気が澄んだ時期は富士山まで一望です。
|
<
その他の画像
>
|
| 交通 | 西武池袋線 ひばりヶ丘駅 徒歩28分 [バス利用可] バス 7分 南沢五丁目 停歩1分 |
|---|
| その他の交通 | 西武池袋線 東久留米駅 徒歩26分 西武新宿線 田無駅 【バス】 12分 南沢五丁目 停歩1分 |
| 所在地 |
東京都東久留米市南沢5丁目
|
| 物件種目 |
中古マンション |
| 価格 |
4,580万円 |
平米単価 |
49.84万円 |
| 管理費等 |
14,370円 |
修繕積立金 |
18,960円 |
| 借地期間・地代(月額) |
- |
権利金 |
- |
| 敷金または保証金 |
- / - |
維持費等 |
- |
| その他一時金 |
- |
|
|
| 間取り |
3LDK(洋 7.1・6・5) |
専有面積 |
91.91m²(壁芯) |
| 階建 / 階 |
11階建 / 6階 |
バルコニー |
33.38m² |
| 築年月 |
2003年11月(築22年5ヶ月)
|
建物構造 |
RC |
| 駐車場 |
有 4,000円/月 |
総戸数 |
252戸 |
| 駐輪場 |
有 300円/月 |
バイク置き場 |
- |
| ペット |
-
|
|
|
| 土地権利 |
所有権 |
敷地面積 |
- |
| 管理形態/管理員の勤務形態 |
全部委託/日勤 |
国土法届出 |
- |
| アピールポイント |
ゆとりのある91.91m2の居室空間。全室2面採光の居室空間だから明るく快適に暮らせます。3LDK+ウォークインクロゼット+エクスクロークの欲張り間取り。広いルーフバルコニーが日々の生活を多彩に演出します。。さらに、エントランスポーチも広く、トランクルームもあります。浴室も広さ1坪以上です!
角部屋で一番奥まっているところに位置しており、車の多い道路側と反対側に位置しているので、外廊下の人通りもなく、とても静かです。
ルーフバルコニーからの眺めは素晴らしく、特に冬の空気が澄んでいる時期はとてもきれいな富士山が見えます。もちろん夕日もとてもキレイです。自然に団らんが生まれる間取り、実際の空間をご自身で体感ください。
早朝から深夜までバスが出ているので、移動に便利です。最寄りのバス停はマンション通用口からすぐにあり、タイミングよくバスが来れば、雨にも濡れにくいです。マイカー感覚でバスが使え、機動性に優れています。
イオンモール東久留米隣接。東久留米市立第5小学校も歩いてすぐです。 |
| 建物名・部屋番号 |
|
| リフォーム履歴 |
- |
| リノベーション履歴 |
- |
| 瑕疵保証 |
- |
| 瑕疵保険 |
- |
| 評価・証明書 |
- |
| 備考 |
主要採光面:北西向き
工事完了予定日:2003年11月
|
| エネルギー消費性能 |
- |
| 断熱性能 |
- |
| 目安光熱費 |
- |
| バス・トイレ |
- |
| キッチン |
システムキッチン |
| 設備・サービス |
ウォークインクローゼット、エアコン2台以上、床暖房、収納スペース、トランクルーム、クローゼット、オートロック、給湯、全居室フローリング、アルコーブ、駐輪場 |
| その他 |
エレベーター |
| 条件等 |
- |
現況 |
所有者居住中 |
| 引渡可能時期 |
相談 |
物件番号 |
6989557827 |
| 情報公開日 |
2026年2月23日 |
次回更新予定日 |
2026年3月12日 |
| ケータイ用バーコード |
- スマートフォンでこの物件を見る
- スマートフォンからもこの物件をご覧になれます。
|
※「-」と表示されている項目については、情報提供会社にご確認ください。
| 周辺施設 |
イオンモール東久留米 |
| 距離 |
288m |
写真を見る |
| 周辺施設 |
ファミリーマート東久留米南町店 |
| 距離 |
477m |
| 周辺施設 |
ガスト東久留米南町店(から好し取扱店) |
| 距離 |
196m |
| 周辺施設 |
南町運動広場多目的運動広場 |
| 距離 |
642m |
ここから簡単にお問い合わせをすることができます。
(SSLでの暗号化での送信を希望されるお客さまは
こちら
よりお問い合わせください)
お問い合わせを行う前に
「個人情報の取り扱いについて」を必ずお読みください。
「個人情報の取り扱いについて」に同意いただいた場合は「上記にご同意の上 確認画面へ進む」のボタンをクリックしてください。
個人情報の取り扱いについて
皆さまが送付された個人情報はアットホーム(株)のサーバを経由し、お問い合わせ先の不動産会社にメールまたはFAXにて転送されるためアットホーム(株)にも保管されます。アットホーム(株)で保管された個人情報の取り扱いについては、【こちら】をご覧ください。
また、本画面でご記入いただいた個人情報は、お問い合わせ先の不動産会社でも保管します。 お問い合わせ先の不動産会社が保管する個人情報の取り扱いについては、不動産会社に直接お問い合わせください。
東京都知事免許(2)第102207号 |
|---|
- 交通:
- 京王井の頭線/渋谷駅 徒歩1分
- 東京都渋谷区道玄坂2丁目9-2 4階
- TEL:
- 03-6455-2328
- FAX:
- 03-6455-2842
- 所属団体:
- (公社)東京都宅地建物取引業協会会員(公社)首都圏不動産公正取引協議会加盟
取引態様:専任媒介  - 00264753
|
- スマートフォンで
この不動産会社を見る

|
- 提携サイト等より掲載されている物件情報につきましては、不動産会社詳細情報にリンクされていないものがあります。
- 物件に関するお問合せは、物件詳細ページの「情報提供会社」に表示されている不動産会社へ直接お願いいたします。
- 間取図は、現況を優先させていただきます。
- 映像は物件の一部を撮影したものです。物件の契約にあたっての最終判断はご自身の判断に基づいて行ってください。
- 仲介手数料について

アットホームは物件情報の適正化に努めております。
内容に誤りがある場合にはこちらへご連絡ください。