東京都小平市栄町2丁目(小川駅)の中古マンション・新築マンション・分譲マンション:物件詳細
交通 所在地 |
駅徒歩 |
価格 |
構造 階建/階 |
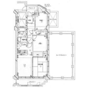
間取り 専有面積 |
物件種目 築年月 |
|
西武国分寺線/小川
東京都小平市栄町2丁目
|
19分
|
2,390万円
|
RC
5階建 / 5階
|
3LDK
56.94m²
|
中古マンション
1997年8月(築28年8ヶ月)
|
|
ペット相談、角部屋、最上階、南向き、管理人巡回
|
|
≪オープンルーム/モデルルーム≫【開催期間】2026年3月16日~3月29日 【時間】9:30~18:30
|
|
間取図
|
|
その他の画像
|
| 交通 | 西武国分寺線 小川駅 徒歩19分 |
|---|
| その他の交通 | 西武拝島線 東大和市駅 徒歩21分 西武国分寺線 鷹の台駅 徒歩28分 |
| 所在地 |
東京都小平市栄町2丁目
|
| 物件種目 |
中古マンション |
| 価格 |
2,390万円 |
平米単価 |
41.98万円 |
| 管理費等 |
15,000円 |
修繕積立金 |
15,000円 |
| 借地期間・地代(月額) |
- |
権利金 |
- |
| 敷金または保証金 |
- / - |
維持費等 |
- |
| その他一時金 |
- |
|
|
| 間取り |
3LDK |
専有面積 |
56.94m²(壁芯) |
| 階建 / 階 |
5階建 / 5階 |
バルコニー |
8.25m² |
| 築年月 |
1997年8月(築28年8ヶ月)
|
建物構造 |
RC |
| 駐車場 |
空無 |
総戸数 |
19戸 |
| 駐輪場 |
有 100円/月 |
バイク置き場 |
空無 |
| ペット |
小型犬可・ 猫可 |
|
|
| 土地権利 |
所有権 |
敷地面積 |
- |
| 管理形態/管理員の勤務形態 |
全部委託/巡回(日本ハウズイング株式会社) |
国土法届出 |
- |
| アピールポイント |
◇西武国分寺線【小川】駅徒歩分
◇2026年5月リフォーム完成予定
≪30分~見学可能≫
お休みの日以外でもお昼休みやお仕事の出勤前やお仕事帰りのご見学も可能です。 |
| 建物名・部屋番号 |
アップルウェイ小平パートⅡ 503 |
| リフォーム履歴 |
■水回り:2026年5月 キッチン、浴室、トイレ、洗面所 ■内装:2026年5月 全室クロス張替え、床(フローリング等)、壁・天井(クロス・塗装等)、建具(室内ドア等) ※実施年月は最も古い履歴を表示 |
| リノベーション履歴 |
- |
| 瑕疵保証 |
- |
| 瑕疵保険 |
- |
| 評価・証明書 |
- |
| 備考 |
主要採光面:南向き
施工会社:株式会社志多組
用途地域:1種中高
|
| エネルギー消費性能 |
- |
| 断熱性能 |
- |
| 目安光熱費 |
- |
| バス・トイレ |
浴室暖房、浴室乾燥機、オートバス、追焚機能、高温差湯式、温水洗浄便座 |
| キッチン |
オープンキッチン、システムキッチン、浄水器、3口以上コンロ |
| 設備・サービス |
全居室収納、バイク置き場、室内洗濯機置場、クローゼット、モニター付インターホン、給湯、都市ガス、可動間仕切り、エアコン、二面バルコニー、駐輪場、人感センサー付照明、ダウンライト、照明器具、火災警報器(報知機)、ケーブルTV |
| その他 |
宅配BOX |
| 条件等 |
- |
現況 |
空家 |
| 引渡可能時期 |
相談 |
物件番号 |
6989580731 |
| 情報公開日 |
2026年2月21日 |
次回更新予定日 |
2026年3月30日 |
| ケータイ用バーコード |
- スマートフォンでこの物件を見る
- スマートフォンからもこの物件をご覧になれます。
|
※「-」と表示されている項目については、情報提供会社にご確認ください。
ここから簡単にお問い合わせをすることができます。
(SSLでの暗号化での送信を希望されるお客さまは
こちら
よりお問い合わせください)
お問い合わせを行う前に
「個人情報の取り扱いについて」を必ずお読みください。
「個人情報の取り扱いについて」に同意いただいた場合は「上記にご同意の上 確認画面へ進む」のボタンをクリックしてください。
個人情報の取り扱いについて
皆さまが送付された個人情報はアットホーム(株)のサーバを経由し、お問い合わせ先の不動産会社にメールまたはFAXにて転送されるためアットホーム(株)にも保管されます。アットホーム(株)で保管された個人情報の取り扱いについては、【こちら】をご覧ください。
また、本画面でご記入いただいた個人情報は、お問い合わせ先の不動産会社でも保管します。 お問い合わせ先の不動産会社が保管する個人情報の取り扱いについては、不動産会社に直接お問い合わせください。
東京都知事免許(2)第101132号 |
|---|
- 交通:
- JR南武線/西国立駅 徒歩8分
- 東京都立川市錦町3丁目5-22 YAZAWADEUXビル602
- TEL:
- 0120-916-788
- FAX:
- 042-512-9954
- 所属団体:
- (公社)全日本不動産協会会員(公社)首都圏不動産公正取引協議会加盟
取引態様:一般媒介  - 00985113
|
- スマートフォンで
この不動産会社を見る

|
- 提携サイト等より掲載されている物件情報につきましては、不動産会社詳細情報にリンクされていないものがあります。
- 物件に関するお問合せは、物件詳細ページの「情報提供会社」に表示されている不動産会社へ直接お願いいたします。
- 間取図は、現況を優先させていただきます。
- 映像は物件の一部を撮影したものです。物件の契約にあたっての最終判断はご自身の判断に基づいて行ってください。
- 仲介手数料について

アットホームは物件情報の適正化に努めております。
内容に誤りがある場合にはこちらへご連絡ください。