埼玉県川口市栄町3丁目(川口駅)の中古マンション・新築マンション・分譲マンション:物件詳細
交通 所在地 |
駅徒歩 |
価格 |
構造 階建/階 |
間取り 専有面積 |
物件種目 築年月 |
|
JR京浜東北線/川口
埼玉県川口市栄町3丁目
|
5分
|
4,580万円
|
SRC
10階建 / 8階
|
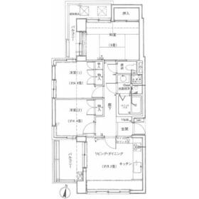
3LDK
58.97m²
|
中古マンション
1986年1月(築40年3ヶ月)
|
|
ペット相談、角部屋、3面採光、管理人日勤
|
|
≪オープンルーム/モデルルーム≫【開催期間】2026年2月22日~5月21日 【時間】9:00~19:00 事前に必ず予約してください!
|
|
間取図
|
外観
|
<
その他の画像
>
|
| 交通 | JR京浜東北線 川口駅 徒歩5分 |
|---|
| その他の交通 | 埼玉高速鉄道 川口元郷駅 徒歩17分 JR京浜東北線 西川口駅 徒歩28分 |
| 所在地 |
埼玉県川口市栄町3丁目
|
| 物件種目 |
中古マンション |
| 価格 |
4,580万円 |
平米単価 |
77.67万円 |
| 管理費等 |
12,900円 |
修繕積立金 |
19,750円 |
| 借地期間・地代(月額) |
- |
権利金 |
- |
| 敷金または保証金 |
- / - |
維持費等 |
- |
| その他一時金 |
- |
|
|
| 間取り |
3LDK |
専有面積 |
58.97m²(壁芯) |
| 階建 / 階 |
10階建 / 8階 |
バルコニー |
12.72m² |
| 築年月 |
1986年1月(築40年3ヶ月)
|
建物構造 |
SRC |
| 駐車場 |
- |
総戸数 |
43戸 |
| 駐輪場 |
- |
バイク置き場 |
- |
| ペット |
相談 |
|
|
| 土地権利 |
所有権 |
敷地面積 |
- |
| 管理形態/管理員の勤務形態 |
全部委託/日勤(アサヒメンテナンス株式会社) |
国土法届出 |
- |
| アピールポイント |
~ 物 件 お す す め ポ イ ン ト ~
◇リノベーション完了予定(2026年5月)
◇8階なので見晴らし・風通しともに良好です♪
◇三方角部屋につき日当たりが良く、明るい空間となっています♪
◇お荷物が多い方にもおススメ!全居室収納スペース有り♪
◇商店街に面しているので帰り道の際に買い物が可能です♪
◇【2路線利用可】JR京浜東北線『川口』駅徒歩5分&埼玉高速鉄道『川口元郷』駅徒歩17分♪
◇ペット飼育可!
~雰囲気や広さ、日当たりなど現地でしか体感出来ないことが多くあります~
☆頭金0円での購入可能
☆「無料ライフシミュレーション」
☆お引越し後のその先のアフタサービスも充実 |
| 建物名・部屋番号 |
|
| リフォーム履歴 |
■水回り:2026年5月 キッチン、浴室、トイレ、洗面所、給排水管、給湯器 ■内装:2026年5月 内装全面(床・壁・天井・建具) ※実施年月は最も古い履歴を表示 |
| リノベーション履歴 |
- |
| 瑕疵保証 |
- |
| 瑕疵保険 |
- |
| 評価・証明書 |
- |
| 備考 |
主要採光面:南西向き
用途地域:商業地域
□■□■□■□■□ご見学希望の方は【資料請求】よりお問い合わせください♪□■□■□■□■□
☆ ☆ ☆ ☆ ☆ ご 見 学 の 流 れ ☆ ☆ ☆ ☆ ☆
○ご予約方法について
・多くのお問い合わせを頂いておりますのでご案内の際は
ご予約の方優先でのご案内とさせて頂いております。
(1)まずは【資料請求】よりお問い合わせください!
ご見学希望の方は【資料請求】よりお問い合わせください♪
(2)次に実際に現地を担当と一緒に見学をします♪
(3)そして弊社にご来店頂き、住宅ローンや資金計画などご不安なことを解決していきましょう♪
☆ ☆ ☆ ☆ ☆ご案内の流れ☆ ☆ ☆ ☆ ☆
○日時について
・土日はもちろん、平日や仕事終わりの夜間等いつでもご案内可能です!
○住宅ローンや資金計画以外にもその他希望条件などご不安な事がございましたら
なんでもお気軽にご相談下さいませ!R’s不動産エージェンシー一同心よりお待ちしております♪
○駐車場完備
・店舗前に駐車場がございますのでお車でお気軽にお越しくださいませ!
|
| エネルギー消費性能 |
- |
| 断熱性能 |
- |
| 目安光熱費 |
- |
| バス・トイレ |
浴室乾燥機、オートバス、追焚機能、シャワー付洗面化粧台 |
| キッチン |
システムキッチン、3口以上コンロ、グリル |
| 設備・サービス |
全居室収納、収納スペース、室内洗濯機置場、クローゼット、防犯カメラ、給湯、アルコーブ、都市ガス、ワイドバルコニー、二面バルコニー |
| その他 |
エレベーター |
| 条件等 |
- |
現況 |
空家 |
| 引渡可能時期 |
相談 |
物件番号 |
6989608764 |
| 仲介手数料 |
売買代金の3%+6万円 |
|
|
| 情報公開日 |
2026年2月22日 |
次回更新予定日 |
2026年3月8日 |
| ケータイ用バーコード |
- スマートフォンでこの物件を見る
- スマートフォンからもこの物件をご覧になれます。
|
※「-」と表示されている項目については、情報提供会社にご確認ください。
| 周辺施設 |
セブンイレブン川口駅北店 |
| 距離 |
220m |
| 周辺施設 |
コマームナーサリー樹モール |
| 距離 |
160m |
| 周辺施設 |
医療法人新青会川口工業総合病院 |
| 距離 |
1024m |
ここから簡単にお問い合わせをすることができます。
(SSLでの暗号化での送信を希望されるお客さまは
こちら
よりお問い合わせください)
お問い合わせを行う前に
「個人情報の取り扱いについて」を必ずお読みください。
「個人情報の取り扱いについて」に同意いただいた場合は「上記にご同意の上 確認画面へ進む」のボタンをクリックしてください。
個人情報の取り扱いについて
皆さまが送付された個人情報はアットホーム(株)のサーバを経由し、お問い合わせ先の不動産会社にメールまたはFAXにて転送されるためアットホーム(株)にも保管されます。アットホーム(株)で保管された個人情報の取り扱いについては、【こちら】をご覧ください。
また、本画面でご記入いただいた個人情報は、お問い合わせ先の不動産会社でも保管します。 お問い合わせ先の不動産会社が保管する個人情報の取り扱いについては、不動産会社に直接お問い合わせください。
埼玉県知事免許(1)第25003号 |
|---|
- 交通:
- JR京浜東北線/蕨駅 徒歩25分 【バス】 前川4丁目 停歩5分
- 埼玉県川口市前川4丁目16-1 藤ビル1階
- TEL:
- 048-400-2932
- 所属団体:
- (公社)全日本不動産協会会員(公社)首都圏不動産公正取引協議会加盟
取引態様:媒介  - 00274483
|
- スマートフォンで
この不動産会社を見る

|
- 提携サイト等より掲載されている物件情報につきましては、不動産会社詳細情報にリンクされていないものがあります。
- 物件に関するお問合せは、物件詳細ページの「情報提供会社」に表示されている不動産会社へ直接お願いいたします。
- 間取図は、現況を優先させていただきます。
- 映像は物件の一部を撮影したものです。物件の契約にあたっての最終判断はご自身の判断に基づいて行ってください。
- 仲介手数料について

アットホームは物件情報の適正化に努めております。
内容に誤りがある場合にはこちらへご連絡ください。