東京都練馬区豊玉南3丁目(野方駅)の中古マンション・新築マンション・分譲マンション:物件詳細
交通 所在地 |
駅徒歩 |
価格 |
構造 階建/階 |
間取り 専有面積 |
物件種目 築年月 |
|
西武新宿線/野方
東京都練馬区豊玉南3丁目
|
12分
|
3,380万円
|
SRC
14階建 / 5階
|
2LDK
55.71m²
|
中古マンション
1972年11月(築53年5ヶ月)
|
|
外壁コンクリート、管理人日勤
|
|
≪オープンルーム/モデルルーム≫【開催期間】2026年3月7日~3月8日 【時間】10:00~17:30 内見希望日時を事前に予約をお願いします
|
|
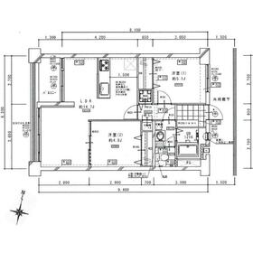
間取図
オープンキッチンのある2LDK
|
キッチン
三ツ口コンロ、浄水器付
|
<
その他の画像
>
|
| 交通 | 西武新宿線 野方駅 徒歩12分 |
|---|
| その他の交通 | 都営大江戸線 練馬駅 徒歩14分 西武池袋線 練馬駅 徒歩14分 |
| 所在地 |
東京都練馬区豊玉南3丁目
|
| 物件種目 |
中古マンション |
| 価格 |
3,380万円 |
平米単価 |
60.68万円 |
| 管理費等 |
9,200円 |
修繕積立金 |
13,800円 |
| 借地期間・地代(月額) |
- |
権利金 |
- |
| 敷金または保証金 |
- / - |
維持費等 |
- |
| その他一時金 |
- |
|
|
| 間取り |
2LDK(洋 5.1・4.8 LDK 14.7) |
専有面積 |
55.71m²(壁芯) |
| 階建 / 階 |
14階建 / 5階 |
バルコニー |
3.51m² |
| 築年月 |
1972年11月(築53年5ヶ月)
|
建物構造 |
SRC |
| 駐車場 |
- |
総戸数 |
184戸 |
| 駐輪場 |
- |
バイク置き場 |
- |
| ペット |
-
|
|
|
| 土地権利 |
所有権 |
敷地面積 |
- |
| 管理形態/管理員の勤務形態 |
全部委託/日勤(合人社計画研究所) |
国土法届出 |
- |
| アピールポイント |
不審者の侵入に目を光らせる防犯カメラ完備、更に水回りの場所を変更するリノベーションにも対応しやすく便利二重床採用なので、騒音トラブルになりがちな生活音が最小限に抑えられます。また広々とした延床面積55.71㎡の居室空間で、その上独特のモノトーンがクールな外壁コンクリート仕様なので、スタイリッシュな印象です。ちなみに気軽に憩える敷地内公園有の住居です。自然に団らんが生まれる2LDK。実際の空間をご自身で体感ください。 |
| 建物名・部屋番号 |
豊玉南住宅 515 |
| リフォーム履歴 |
■水回り:2026年1月 キッチン、浴室、トイレ、洗面所、給排水管、給湯器 ■内装:2026年1月 内装全面(床・壁・天井・建具) ■共用部の大規模修繕工事:2016年1月 耐震補強工事実施済 ※実施年月は最も古い履歴を表示 |
| リノベーション履歴 |
2026年1月 オープンキッチンに変更、和室から洋室に変更、洋室2室にエアコンを設置出来る先行配管を敷設、浴室に追焚き機能、換気乾燥機能を導入 ※実施年月は最も古い履歴を表示 |
| 瑕疵保証 |
- |
| 瑕疵保険 |
- |
| 評価・証明書 |
- |
| 備考 |
主要採光面:西向き
施工会社:(株)熊谷組
|
| エネルギー消費性能 |
- |
| 断熱性能 |
- |
| 目安光熱費 |
- |
| バス・トイレ |
浴室乾燥機、追焚機能、温水洗浄便座、浴室に窓あり |
| キッチン |
オープンキッチン、システムキッチン、浄水器、3口以上コンロ、グリル |
| 設備・サービス |
室内洗濯機置場、クローゼット、モニター付インターホン、防犯カメラ、二重床、洗濯機置場、給湯、全居室フローリング、都市ガス、人感センサー付照明、ダウンライト、照明器具、火災警報器(報知機) |
| その他 |
敷地内公園、エレベーター |
| 条件等 |
- |
現況 |
空家 |
| 引渡可能時期 |
相談 |
物件番号 |
6989625883 |
| 仲介手数料 |
売買代金の2.2% |
|
|
| 情報公開日 |
2026年2月24日 |
次回更新予定日 |
2026年3月15日 |
| ケータイ用バーコード |
- スマートフォンでこの物件を見る
- スマートフォンからもこの物件をご覧になれます。
|
※「-」と表示されている項目については、情報提供会社にご確認ください。
| 周辺施設 |
ファミリーマート豊玉南三丁目店 |
| 距離 |
185m |
| 周辺施設 |
医療法人社団野村慈豊会桜台病院 |
| 距離 |
617m |
ここから簡単にお問い合わせをすることができます。
(SSLでの暗号化での送信を希望されるお客さまは
こちら
よりお問い合わせください)
お問い合わせを行う前に
「個人情報の取り扱いについて」を必ずお読みください。
「個人情報の取り扱いについて」に同意いただいた場合は「上記にご同意の上 確認画面へ進む」のボタンをクリックしてください。
個人情報の取り扱いについて
皆さまが送付された個人情報はアットホーム(株)のサーバを経由し、お問い合わせ先の不動産会社にメールまたはFAXにて転送されるためアットホーム(株)にも保管されます。アットホーム(株)で保管された個人情報の取り扱いについては、【こちら】をご覧ください。
また、本画面でご記入いただいた個人情報は、お問い合わせ先の不動産会社でも保管します。 お問い合わせ先の不動産会社が保管する個人情報の取り扱いについては、不動産会社に直接お問い合わせください。
東京都知事免許(1)第108562号 |
|---|
- 交通:
- JR山手線/池袋駅 徒歩5分
- 東京都豊島区東池袋1丁目33-3 池袋シティハイツ307号
- TEL:
- 03-6761-7161
- FAX:
- 03-6323-5719
- 所属団体:
- (公社)全日本不動産協会会員(公社)首都圏不動産公正取引協議会加盟
取引態様:媒介  - 00273982
|
- スマートフォンで
この不動産会社を見る

|
- 提携サイト等より掲載されている物件情報につきましては、不動産会社詳細情報にリンクされていないものがあります。
- 物件に関するお問合せは、物件詳細ページの「情報提供会社」に表示されている不動産会社へ直接お願いいたします。
- 間取図は、現況を優先させていただきます。
- 映像は物件の一部を撮影したものです。物件の契約にあたっての最終判断はご自身の判断に基づいて行ってください。
- 仲介手数料について

アットホームは物件情報の適正化に努めております。
内容に誤りがある場合にはこちらへご連絡ください。