千葉県松戸市東松戸2丁目(東松戸駅)の中古マンション・新築マンション・分譲マンション:物件詳細
交通 所在地 |
駅徒歩 |
価格 |
構造 階建/階 |
間取り 専有面積 |
物件種目 築年月 |
|
JR武蔵野線/東松戸
千葉県松戸市東松戸2丁目
|
2分
|
5,640万円
|
RC
19階建 / 10階
|
3LDK
72.23m²
|
中古マンション
2018年1月(築8年3ヶ月)
|
|
常時ゴミ出し可能、24時間セキュリティー、二重床・二重天井、24時間換気システム、外観タイル張り、設計住宅性能評価書あり、建設住宅性能評価書あり、管理人日勤、置き配スペース
|
|
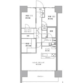
間取図
|
外観
|
その他の画像
|
| 交通 | JR武蔵野線 東松戸駅 徒歩2分 |
|---|
| その他の交通 | 北総線 東松戸駅 徒歩3分 成田スカイアクセス 東松戸駅 徒歩3分 |
| 所在地 |
千葉県松戸市東松戸2丁目
|
| 物件種目 |
中古マンション |
| 価格 |
5,640万円 |
平米単価 |
78.09万円 |
| 管理費等 |
10,000円 |
修繕積立金 |
10,200円 |
| 借地期間・地代(月額) |
- |
権利金 |
- |
| 敷金または保証金 |
- / - |
維持費等 |
- |
| その他一時金 |
- |
|
|
| 間取り |
3LDK(和 4.5 洋 6・5 LDK 15.9) |
専有面積 |
72.23m²(壁芯) |
| 階建 / 階 |
19階建 / 10階 |
バルコニー |
12.85m² |
| 築年月 |
2018年1月(築8年3ヶ月)
|
建物構造 |
RC |
| 駐車場 |
- |
総戸数 |
382戸 |
| 駐輪場 |
- |
バイク置き場 |
- |
| ペット |
-
|
|
|
| 土地権利 |
所有権 |
敷地面積 |
- |
| 管理形態/管理員の勤務形態 |
全部委託/日勤(株式会社長谷工コミュニティ) |
国土法届出 |
- |
| アピールポイント |
ALSOKの24時間セキュリティー採用だから、不審者侵入の抑止力に。またフットワークが軽くなる東松戸駅徒歩2分ロケーションで、その上遠方からの宿泊客ももてなせる共用ゲストルーム完備なので、遠方に住む親にも気兼ねなく泊まってもらえます。ちなみに出張時や旅行前でも収集日にしばられることがない常時ゴミ出し可の住戸です。家族が帰宅を焦がれる3LDK。ご案内いたしますのでお気軽にご連絡ください。 |
| 建物名・部屋番号 |
ファインシティ東松戸&レジデンス |
| リフォーム履歴 |
- |
| リノベーション履歴 |
- |
| 瑕疵保証 |
- |
| 瑕疵保険 |
- |
| 評価・証明書 |
- |
| 備考 |
主要採光面:南西向き
用途地域:近隣商業
|
| エネルギー消費性能 |
- |
| 断熱性能 |
- |
| 目安光熱費 |
- |
| バス・トイレ |
浴室暖房、浴室乾燥機、追焚機能、温水洗浄便座 |
| キッチン |
カウンターキッチン、食器洗浄乾燥機、浄水器、ディスポーザー、3口以上コンロ |
| 設備・サービス |
モニター付オートロック、全居室収納、ウォークインクローゼット、室内洗濯機置場、モニター付インターホン、ディンプルキー、ダブルロックドア、防犯カメラ、省エネ給湯器、都市ガス、火災警報器(報知機)、インターネット対応 |
| その他 |
エレベーター2基以上、共用ゲストルーム、共用パーティルーム、エレベーター |
| 条件等 |
- |
現況 |
所有者居住中 |
| 引渡可能時期 |
2026年4月上旬予定 |
物件番号 |
6989628377 |
| 仲介手数料 |
売買代金の3%+6万円 |
|
|
| 情報公開日 |
2026年2月24日 |
次回更新予定日 |
2026年3月10日 |
| ケータイ用バーコード |
- スマートフォンでこの物件を見る
- スマートフォンからもこの物件をご覧になれます。
|
※「-」と表示されている項目については、情報提供会社にご確認ください。
| 周辺施設 |
ベルクスファインシティ東松戸店 |
| 距離 |
50m |
ここから簡単にお問い合わせをすることができます。
(SSLでの暗号化での送信を希望されるお客さまは
こちら
よりお問い合わせください)
お問い合わせを行う前に
「個人情報の取り扱いについて」を必ずお読みください。
「個人情報の取り扱いについて」に同意いただいた場合は「上記にご同意の上 確認画面へ進む」のボタンをクリックしてください。
個人情報の取り扱いについて
皆さまが送付された個人情報はアットホーム(株)のサーバを経由し、お問い合わせ先の不動産会社にメールまたはFAXにて転送されるためアットホーム(株)にも保管されます。アットホーム(株)で保管された個人情報の取り扱いについては、【こちら】をご覧ください。
また、本画面でご記入いただいた個人情報は、お問い合わせ先の不動産会社でも保管します。 お問い合わせ先の不動産会社が保管する個人情報の取り扱いについては、不動産会社に直接お問い合わせください。
千葉県知事免許(3)第16268号 |
|---|
- 交通:
- つくばエクスプレス/南流山駅 徒歩8分
- 千葉県松戸市横須賀2丁目7-18
- TEL:
- 047-711-6001
- FAX:
- 047-711-6002
- 所属団体:
- (公社)全日本不動産協会会員(公社)首都圏不動産公正取引協議会加盟
取引態様:一般媒介  - 00163231
|
- スマートフォンで
この不動産会社を見る

|
- 提携サイト等より掲載されている物件情報につきましては、不動産会社詳細情報にリンクされていないものがあります。
- 物件に関するお問合せは、物件詳細ページの「情報提供会社」に表示されている不動産会社へ直接お願いいたします。
- 間取図は、現況を優先させていただきます。
- 映像は物件の一部を撮影したものです。物件の契約にあたっての最終判断はご自身の判断に基づいて行ってください。
- 仲介手数料について

アットホームは物件情報の適正化に努めております。
内容に誤りがある場合にはこちらへご連絡ください。