栃木県宇都宮市錦1丁目(宇都宮駅)の中古マンション・新築マンション・分譲マンション:物件詳細
交通 所在地 |
駅徒歩 |
価格 |
構造 階建/階 |
間取り 専有面積 |
物件種目 築年月 |
|
JR東北本線/宇都宮
栃木県宇都宮市錦1丁目
|
16分
|
3,150万円
|
RC
15階建 / 13階
|
3LDK
73.08m²
|
中古マンション
2015年11月(築10年7ヶ月)
|
|
ペット相談、楽器相談、南向き、24時間換気システム、バリアフリー、閑静な住宅街、外観タイル張り、隣接建物距離2m以上、管理人日勤
|
|
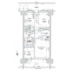
間取図
使い勝手よい3LDKの間取り
|
外観
13階部分の高層階になります。
|
<
その他の画像
>
|
| 交通 | JR東北本線 宇都宮駅 徒歩16分 |
| 所在地 |
栃木県宇都宮市錦1丁目
|
| 物件種目 |
中古マンション |
| 価格 |
3,150万円 |
平米単価 |
43.11万円 |
| 管理費等 |
9,130円 |
修繕積立金 |
10,780円 |
| 借地期間・地代(月額) |
- |
権利金 |
- |
| 敷金または保証金 |
- / - |
維持費等 |
自治会費:300円/月 |
| その他一時金 |
- |
|
|
| 間取り |
3LDK(和 4.6 洋 6.8・5.5 LDK 15.7) |
専有面積 |
73.08m²(壁芯) |
| 階建 / 階 |
15階建 / 13階 |
バルコニー |
12.66m² |
| 築年月 |
2015年11月(築10年7ヶ月)
|
建物構造 |
RC |
| 駐車場 |
有 4,500円/月 |
総戸数 |
59戸 |
| 駐輪場 |
有 |
バイク置き場 |
- |
| ペット |
飼育細則有り |
|
|
| 土地権利 |
所有権 |
敷地面積 |
2,584.99m² |
| 管理形態/管理員の勤務形態 |
全部委託/日勤(株式会社GMアソシエ) |
国土法届出 |
- |
| アピールポイント |
中心部にほど近いながら閑静なエリアで人気の錦1丁目のマンションです。15階建てのマンション13階部分の高層のお部屋です。南向きのお部屋で目の前に広がる眺望は圧巻です。小・中学校も近く、大型ショッピングセンターや公園なども徒歩圏内に御座いますので生活環境も充実している立地です。ウォークインクローゼットをはじめとした収納スペースも多数あります。ペット可(飼育細則有り)マンションになりますので大切なペットとも一緒に暮らせます。また、駐車場は全台平置き駐車場となっているのも特徴です。 |
| 建物名・部屋番号 |
ポレスター錦パノラマコート |
| リフォーム履歴 |
- |
| リノベーション履歴 |
- |
| 瑕疵保証 |
- |
| 瑕疵保険 |
- |
| 評価・証明書 |
- |
| 備考 |
主要採光面:南向き
施工会社:東武建設株式会社
用途地域:1種住居
延べ面積:5,008.37m²
【現在、内装リフォーム中。リフォーム完了後の内覧希望予約を受け付けしておりますのでお気軽にお問合せ下さい】*敷地内駐車場100%平置き(駐車料は区画によって料金が異なりますので都度ご確認下さい)*ペット可(飼育細則有り)
|
| エネルギー消費性能 |
- |
| 断熱性能 |
- |
| 目安光熱費 |
- |
| バス・トイレ |
浴室暖房、浴室乾燥機、オートバス、追焚機能、シャワー付洗面化粧台、温水洗浄便座 |
| キッチン |
カウンターキッチン、システムキッチン、食器洗浄乾燥機、食器乾燥機、浄水器、3口以上コンロ、グリル |
| 設備・サービス |
モニター付オートロック、全居室収納、ウォークインクローゼット、収納スペース、室内洗濯機置場、クローゼット、オートロック、モニター付インターホン、ディンプルキー、ダブルロックドア、防犯カメラ、洗濯機置場、給湯、都市ガス、エアコン、駐輪場、人感センサー付照明、火災警報器(報知機)、光ファイバー、ケーブルTV、CS、BS端子、複層ガラス |
| その他 |
宅配BOX、来客用駐車場、エレベーター |
| 条件等 |
- |
現況 |
空家 |
| 引渡可能時期 |
相談 |
物件番号 |
6989693137 |
| 仲介手数料 |
売買代金の3.3%+6.6万円 |
|
|
| 情報公開日 |
2026年3月2日 |
次回更新予定日 |
2026年5月19日 |
| ケータイ用バーコード |
- スマートフォンでこの物件を見る
- スマートフォンからもこの物件をご覧になれます。
|
※「-」と表示されている項目については、情報提供会社にご確認ください。
| 周辺施設 |
ヨークベニマル今泉店 |
| 距離 |
220m |
写真を見る |
| 周辺施設 |
宇都宮市立陽北中学校 |
| 距離 |
400m |
写真を見る |
| 周辺施設 |
宇都宮市立錦小学校 |
| 距離 |
500m |
写真を見る |
| 周辺施設 |
FKD宇都宮店 |
| 距離 |
600m |
写真を見る |
| 周辺施設 |
済生会宇都宮病院 |
| 距離 |
1000m |
写真を見る |
| 周辺施設 |
トナリエ宇都宮 |
| 距離 |
1000m |
写真を見る |
ここから簡単にお問い合わせをすることができます。
(SSLでの暗号化での送信を希望されるお客さまは
こちら
よりお問い合わせください)
お問い合わせを行う前に
「個人情報の取り扱いについて」を必ずお読みください。
「個人情報の取り扱いについて」に同意いただいた場合は「上記にご同意の上 確認画面へ進む」のボタンをクリックしてください。
個人情報の取り扱いについて
皆さまが送付された個人情報はアットホーム(株)のサーバを経由し、お問い合わせ先の不動産会社にメールまたはFAXにて転送されるためアットホーム(株)にも保管されます。アットホーム(株)で保管された個人情報の取り扱いについては、【こちら】をご覧ください。
また、本画面でご記入いただいた個人情報は、お問い合わせ先の不動産会社でも保管します。 お問い合わせ先の不動産会社が保管する個人情報の取り扱いについては、不動産会社に直接お問い合わせください。
栃木県知事免許(2)第5194号 |
|---|
- 交通:
- JR東北本線/宇都宮駅 徒歩6分
- 栃木県宇都宮市東宿郷3丁目1-8 大福ビル1F-C
- TEL:
- 028-601-9130
- FAX:
- 028-601-9131
- 所属団体:
- (公社)栃木県宅地建物取引業協会会員(公社)首都圏不動産公正取引協議会加盟
取引態様:専任媒介  - 00267567
|
- スマートフォンで
この不動産会社を見る

|
- 提携サイト等より掲載されている物件情報につきましては、不動産会社詳細情報にリンクされていないものがあります。
- 物件に関するお問合せは、物件詳細ページの「情報提供会社」に表示されている不動産会社へ直接お願いいたします。
- 間取図は、現況を優先させていただきます。
- 映像は物件の一部を撮影したものです。物件の契約にあたっての最終判断はご自身の判断に基づいて行ってください。
- 仲介手数料について

アットホームは物件情報の適正化に努めております。
内容に誤りがある場合にはこちらへご連絡ください。