東京都中央区佃2丁目(月島駅)の中古マンション・新築マンション・分譲マンション:物件詳細
交通 所在地 |
駅徒歩 |
価格 |
構造 階建/階 |
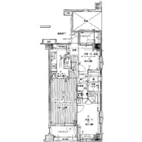
間取り 専有面積 |
物件種目 築年月 |
|
東京メトロ有楽町線/月島
東京都中央区佃2丁目
|
2分
|
8,880万円
|
RC
8階建 / 2階
|
2LDK
63.88m²
|
中古マンション
1997年11月(築28年5ヶ月)
|
|
角部屋、管理人巡回
|
|
間取図
|
|
その他の画像
|
| 交通 | 東京メトロ有楽町線 月島駅 徒歩2分 |
|---|
| その他の交通 | 都営大江戸線 月島駅 徒歩4分 JR京葉線 越中島駅 徒歩10分 |
| 所在地 |
東京都中央区佃2丁目
|
| 物件種目 |
中古マンション |
| 価格 |
8,880万円 |
平米単価 |
139.02万円 |
| 管理費等 |
18,980円 |
修繕積立金 |
15,970円 |
| 借地期間・地代(月額) |
- |
権利金 |
- |
| 敷金または保証金 |
- / - |
維持費等 |
- |
| その他一時金 |
- |
|
|
| 間取り |
2LDK |
専有面積 |
63.88m²(壁芯) |
| 階建 / 階 |
8階建 / 2階 |
バルコニー |
8.55m² |
| 築年月 |
1997年11月(築28年5ヶ月)
|
建物構造 |
RC |
| 駐車場 |
- |
総戸数 |
28戸 |
| 駐輪場 |
- |
バイク置き場 |
- |
| ペット |
-
|
|
|
| 土地権利 |
所有権 |
敷地面積 |
458.38m² |
| 管理形態/管理員の勤務形態 |
自主管理/巡回 |
国土法届出 |
- |
| アピールポイント |
合理的なシステムキッチン付、更に夕食の支度をしながら翌日の献立も調理できるコンロ3口以上は調理時間の時短の強い味方です。また通勤通学に便の良い月島駅徒歩2分立地の物件で、その上衣服を1箇所にまとめて収納可能なウォークインクロゼット有なので、色々なサイズの物の収納に便利。ちなみに取り付け不要全居室エアコン付です。家族が帰宅を焦がれる2LDK。是非その目でお確かめください。 |
| 建物名・部屋番号 |
|
| リフォーム履歴 |
- |
| リノベーション履歴 |
- |
| 瑕疵保証 |
- |
| 瑕疵保険 |
- |
| 評価・証明書 |
- |
| 備考 |
主要採光面:南西向き
用途地域:2種住居
|
| エネルギー消費性能 |
- |
| 断熱性能 |
- |
| 目安光熱費 |
- |
| バス・トイレ |
温水洗浄便座 |
| キッチン |
システムキッチン、3口以上コンロ |
| 設備・サービス |
全居室収納、ウォークインクローゼット、全居室エアコン、エアコン2台以上、収納スペース、室内洗濯機置場、給湯、全居室フローリング、都市ガス |
| その他 |
エレベーター |
| 条件等 |
- |
現況 |
空家 |
| 引渡可能時期 |
即時 |
物件番号 |
6989694569 |
| 情報公開日 |
2026年2月28日 |
次回更新予定日 |
2026年3月14日 |
| ケータイ用バーコード |
- スマートフォンでこの物件を見る
- スマートフォンからもこの物件をご覧になれます。
|
※「-」と表示されている項目については、情報提供会社にご確認ください。
| 周辺施設 |
セブンイレブン中央区佃2丁目店 |
| 距離 |
111m |
ここから簡単にお問い合わせをすることができます。
(SSLでの暗号化での送信を希望されるお客さまは
こちら
よりお問い合わせください)
お問い合わせを行う前に
「個人情報の取り扱いについて」を必ずお読みください。
「個人情報の取り扱いについて」に同意いただいた場合は「上記にご同意の上 確認画面へ進む」のボタンをクリックしてください。
個人情報の取り扱いについて
皆さまが送付された個人情報はアットホーム(株)のサーバを経由し、お問い合わせ先の不動産会社にメールまたはFAXにて転送されるためアットホーム(株)にも保管されます。アットホーム(株)で保管された個人情報の取り扱いについては、【こちら】をご覧ください。
また、本画面でご記入いただいた個人情報は、お問い合わせ先の不動産会社でも保管します。 お問い合わせ先の不動産会社が保管する個人情報の取り扱いについては、不動産会社に直接お問い合わせください。
東京都知事免許(2)第102463号 |
|---|
- 交通:
- JR山手線/目黒駅 徒歩3分
- 東京都港区白金台5丁目22-11 ソフトタウン白金402号室
- TEL:
- 03-6907-1175
- FAX:
- 03-6907-1196
- 所属団体:
- (公社)東京都宅地建物取引業協会会員(公社)首都圏不動産公正取引協議会加盟
取引態様:媒介  - 00264883
|
- スマートフォンで
この不動産会社を見る

|
- 提携サイト等より掲載されている物件情報につきましては、不動産会社詳細情報にリンクされていないものがあります。
- 物件に関するお問合せは、物件詳細ページの「情報提供会社」に表示されている不動産会社へ直接お願いいたします。
- 間取図は、現況を優先させていただきます。
- 映像は物件の一部を撮影したものです。物件の契約にあたっての最終判断はご自身の判断に基づいて行ってください。
- 仲介手数料について

アットホームは物件情報の適正化に努めております。
内容に誤りがある場合にはこちらへご連絡ください。