和歌山県和歌山市狐島(東松江駅)の中古マンション・新築マンション・分譲マンション:物件詳細
交通 所在地 |
駅徒歩 |
価格 |
構造 階建/階 |
間取り 専有面積 |
物件種目 築年月 |
|
南海加太線/東松江 [バス利用可] バス 狐島宮前 停歩5分
和歌山県和歌山市狐島
|
14分
|
830万円
|
SRC
9階建 / 1階
|
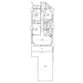
3LDK
72.45m²
|
中古マンション
1992年10月(築33年6ヶ月)
|
|
2面採光、管理人日勤
|
|
間取図
|
リビング
約18帖のリビングには100インチのホームシアターつき!
|
<
その他の画像
>
|
| 交通 | 南海加太線 東松江駅 徒歩14分 [バス利用可] バス 狐島宮前 停歩5分 |
| 所在地 |
和歌山県和歌山市狐島
|
| 物件種目 |
中古マンション |
| 価格 |
830万円 |
平米単価 |
11.46万円 |
| 管理費等 |
9,900円 |
修繕積立金 |
4,800円 |
| 借地期間・地代(月額) |
- |
権利金 |
- |
| 敷金または保証金 |
- / - |
維持費等 |
- |
| その他一時金 |
- |
|
|
| 間取り |
3LDK |
専有面積 |
72.45m²(壁芯) |
| 階建 / 階 |
9階建 / 1階 |
バルコニー |
- |
| 築年月 |
1992年10月(築33年6ヶ月)
|
建物構造 |
SRC |
| 駐車場 |
有 7,350円/月 |
総戸数 |
142戸 |
| 駐輪場 |
- |
バイク置き場 |
- |
| ペット |
-
|
|
|
| 土地権利 |
所有権 |
敷地面積 |
- |
| 管理形態/管理員の勤務形態 |
全部委託/日勤(関電コミュニティ) |
国土法届出 |
- |
| アピールポイント |
広々テラス&専用庭はなんと53.51㎡!お庭でバーベキューパーティをしたり、ちびっこのプール遊びもOK!お庭があるって意外と贅沢な気分かも。憧れの庭付き物件どうするかはあなた次第です。少しテイストのちがう空間づくりにチャレンジしてみるのはどうでしょうか? 広々はお庭だけではありません。18帖のLDKには6人掛けのダイニングテーブルにソファもゆとりで置けます、お気に入りのソファやクッションでくつろぎ空間を演出してください。言い忘れてましたが、リビングには100インチのテレビシアターもついてます。ソファでくつろぎワイン片手に映画鑑賞なんていいですよね! ぜひぜひセンスのひかるオーナー様ご自慢のお部屋をお気軽にご内覧くださいませ~ ご連絡お待ちしておりま~す。 |
| 建物名・部屋番号 |
クロバーメゾン狐島 117 |
| リフォーム履歴 |
■水回り:2022年10月 浴室、洗面所 ■内装:2020年10月 内装全面(床・壁・天井・建具) ※実施年月は最も古い履歴を表示 |
| リノベーション履歴 |
- |
| 瑕疵保証 |
- |
| 瑕疵保険 |
- |
| 評価・証明書 |
- |
| 備考 |
主要採光面:南東向き
用途地域:1種住居
|
| エネルギー消費性能 |
- |
| 断熱性能 |
- |
| 目安光熱費 |
- |
| バス・トイレ |
オートバス、追焚機能、高温差湯式、シャワー付洗面化粧台、温水洗浄便座 |
| キッチン |
カウンターキッチン、システムキッチン、3口以上コンロ |
| 設備・サービス |
モニター付オートロック、室内洗濯機置場、クローゼット、床下収納、給湯、都市ガス、専用庭、テラス、照明器具 |
| その他 |
敷地内公園、エレベーター2基以上 |
| 条件等 |
- |
現況 |
所有者居住中 |
| 引渡可能時期 |
相談 |
物件番号 |
6989715369 |
| 情報公開日 |
2026年3月2日 |
次回更新予定日 |
2026年3月30日 |
| ケータイ用バーコード |
- スマートフォンでこの物件を見る
- スマートフォンからもこの物件をご覧になれます。
|
※「-」と表示されている項目については、情報提供会社にご確認ください。
| 周辺施設 |
マンション正面玄関 |
| 距離 |
1m |
写真を見る |
| 周辺施設 |
マンション玄関ホール |
| 距離 |
2m |
写真を見る |
| 周辺施設 |
マンション内駐車場 |
| 距離 |
10m |
写真を見る |
| 周辺施設 |
マンション敷地内 公園 |
| 距離 |
20m |
写真を見る |
ここから簡単にお問い合わせをすることができます。
(SSLでの暗号化での送信を希望されるお客さまは
こちら
よりお問い合わせください)
お問い合わせを行う前に
「個人情報の取り扱いについて」を必ずお読みください。
「個人情報の取り扱いについて」に同意いただいた場合は「上記にご同意の上 確認画面へ進む」のボタンをクリックしてください。
個人情報の取り扱いについて
皆さまが送付された個人情報はアットホーム(株)のサーバを経由し、お問い合わせ先の不動産会社にメールまたはFAXにて転送されるためアットホーム(株)にも保管されます。アットホーム(株)で保管された個人情報の取り扱いについては、【こちら】をご覧ください。
また、本画面でご記入いただいた個人情報は、お問い合わせ先の不動産会社でも保管します。 お問い合わせ先の不動産会社が保管する個人情報の取り扱いについては、不動産会社に直接お問い合わせください。
和歌山県知事免許(3)第3779号 |
|---|
- 交通:
- JR阪和線/和歌山駅 徒歩10分
- 和歌山県和歌山市太田3丁目3-17 AKビル
- TEL:
- 073-471-0800
- FAX:
- 073-471-0811
- 所属団体:
- (公社)和歌山県宅地建物取引業協会会員(公社)近畿地区不動産公正取引協議会加盟
取引態様:媒介  - 50027014
|
- スマートフォンで
この不動産会社を見る

|
- 提携サイト等より掲載されている物件情報につきましては、不動産会社詳細情報にリンクされていないものがあります。
- 物件に関するお問合せは、物件詳細ページの「情報提供会社」に表示されている不動産会社へ直接お願いいたします。
- 間取図は、現況を優先させていただきます。
- 映像は物件の一部を撮影したものです。物件の契約にあたっての最終判断はご自身の判断に基づいて行ってください。
- 仲介手数料について

アットホームは物件情報の適正化に努めております。
内容に誤りがある場合にはこちらへご連絡ください。