東京都品川区旗の台1丁目(旗の台駅)の中古マンション・新築マンション・分譲マンション:物件詳細
交通 所在地 |
駅徒歩 |
価格 |
構造 階建/階 |
間取り 専有面積 |
物件種目 築年月 |
|
東急池上線/旗の台
東京都品川区旗の台1丁目
|
7分
|
3,480万円
|
RC
地上4階地下1階建 / 2階
|
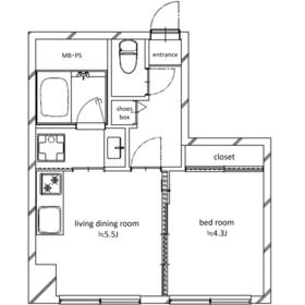
1DK
29.46m²
|
中古マンション
1995年4月(築31年)
|
|
外観タイル張り、管理人日勤
|
|
間取図
|
|
その他の画像
|
| 交通 | 東急池上線 旗の台駅 徒歩7分 |
|---|
| その他の交通 | 東急大井町線 旗の台駅 徒歩8分 東急池上線 荏原中延駅 徒歩9分 |
| 所在地 |
東京都品川区旗の台1丁目
|
| 物件種目 |
中古マンション |
| 価格 |
3,480万円 |
平米単価 |
118.13万円 |
| 管理費等 |
11,500円 |
修繕積立金 |
11,800円 |
| 借地期間・地代(月額) |
- |
権利金 |
- |
| 敷金または保証金 |
- / - |
維持費等 |
- |
| その他一時金 |
- |
|
|
| 間取り |
1DK |
専有面積 |
29.46m²(壁芯) |
| 階建 / 階 |
地上4階地下1階建 / 2階 |
バルコニー |
- |
| 築年月 |
1995年4月(築31年)
|
建物構造 |
RC |
| 駐車場 |
- |
総戸数 |
- |
| 駐輪場 |
- |
バイク置き場 |
- |
| ペット |
-
|
|
|
| 土地権利 |
所有権 |
敷地面積 |
- |
| 管理形態/管理員の勤務形態 |
全部委託/日勤(日本ハウズイング) |
国土法届出 |
- |
| アピールポイント |
室内大幅リノベーション工事中。旗の台駅より徒歩7分に位置し主要駅までのアクセスも便利。
マンション入口が2階になるため、玄関までフラットアプローチ。日々の移動がとても楽なお部屋です。
昭和大学病院まで徒歩3分、近隣に複数の商店街、ホームセンター、コンビニと生活に便利な立地になっております。 |
| 建物名・部屋番号 |
リフレスコア旗の台 202 |
| リフォーム履歴 |
- |
| リノベーション履歴 |
- |
| 瑕疵保証 |
- |
| 瑕疵保険 |
- |
| 評価・証明書 |
- |
| 備考 |
-
|
| エネルギー消費性能 |
- |
| 断熱性能 |
- |
| 目安光熱費 |
- |
| バス・トイレ |
浴室乾燥機、追焚機能、温水洗浄便座 |
| キッチン |
システムキッチン、2口コンロ |
| 設備・サービス |
モニター付オートロック、収納スペース、室内洗濯機置場、オートロック、洗濯機置場、都市ガス、暖房、冷房、インターネット対応 |
| その他 |
エレベーター |
| 条件等 |
- |
現況 |
空家 |
| 引渡可能時期 |
相談 |
物件番号 |
6989743503 |
| 情報公開日 |
2026年3月3日 |
次回更新予定日 |
2026年3月17日 |
| ケータイ用バーコード |
- スマートフォンでこの物件を見る
- スマートフォンからもこの物件をご覧になれます。
|
※「-」と表示されている項目については、情報提供会社にご確認ください。
| 周辺施設 |
サミットストア荏原4丁目店 |
| 距離 |
568m |
| 周辺施設 |
セブンイレブン品川荏原6丁目店 |
| 距離 |
258m |
| 周辺施設 |
昭和医科大学病院附属東病院 |
| 距離 |
211m |
| 周辺施設 |
セブンイレブン品川荏原6丁目店 |
| 距離 |
258m |
| 周辺施設 |
ホームセンターコーナン品川旗の台店 |
| 距離 |
180m |
| 周辺施設 |
私立昭和医科大学旗の台キャンパス |
| 距離 |
350m |
ここから簡単にお問い合わせをすることができます。
(SSLでの暗号化での送信を希望されるお客さまは
こちら
よりお問い合わせください)
お問い合わせを行う前に
「個人情報の取り扱いについて」を必ずお読みください。
「個人情報の取り扱いについて」に同意いただいた場合は「上記にご同意の上 確認画面へ進む」のボタンをクリックしてください。
個人情報の取り扱いについて
皆さまが送付された個人情報はアットホーム(株)のサーバを経由し、お問い合わせ先の不動産会社にメールまたはFAXにて転送されるためアットホーム(株)にも保管されます。アットホーム(株)で保管された個人情報の取り扱いについては、【こちら】をご覧ください。
また、本画面でご記入いただいた個人情報は、お問い合わせ先の不動産会社でも保管します。 お問い合わせ先の不動産会社が保管する個人情報の取り扱いについては、不動産会社に直接お問い合わせください。
東京都知事免許(4)第88540号 |
|---|
- 交通:
- 東急目黒線/武蔵小山駅 徒歩2分
- 東京都目黒区目黒本町5丁目1-3
- TEL:
- 03-5704-3591
- FAX:
- 03-5704-3592
- 所属団体:
- (公社)東京都宅地建物取引業協会会員(公社)首都圏不動産公正取引協議会加盟
取引態様:専任媒介  - 00018270
|
- スマートフォンで
この不動産会社を見る

|
- 提携サイト等より掲載されている物件情報につきましては、不動産会社詳細情報にリンクされていないものがあります。
- 物件に関するお問合せは、物件詳細ページの「情報提供会社」に表示されている不動産会社へ直接お願いいたします。
- 間取図は、現況を優先させていただきます。
- 映像は物件の一部を撮影したものです。物件の契約にあたっての最終判断はご自身の判断に基づいて行ってください。
- 仲介手数料について

アットホームは物件情報の適正化に努めております。
内容に誤りがある場合にはこちらへご連絡ください。