東京都江東区南砂7丁目(南砂町駅)の中古マンション・新築マンション・分譲マンション:物件詳細
交通 所在地 |
駅徒歩 |
価格 |
構造 階建/階 |
間取り 専有面積 |
物件種目 築年月 |
|
東京メトロ東西線/南砂町
東京都江東区南砂7丁目
|
5分
|
7,980万円
|
RC
13階建 / 1階
|
3SLDK
72.27m²
|
中古マンション
2023年1月(築3年5ヶ月)
|
|
ペット相談、楽器相談、常時ゴミ出し可能、24時間セキュリティー、天井高2.5M以上、逆梁工法、二重床・二重天井、アウトフレーム工法、24時間換気システム、閑静な住宅街、隣接建物距離2m以上、管理人日勤、IT重説対応物件
|
|
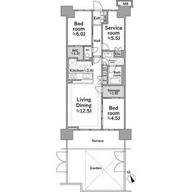
間取図
|
庭
23.81㎡の専用庭南西向きの陽当たりと水栓付きの専用庭はガーデニング、ペット、お子様の遊び場にピッタリです。
|
<
その他の画像
>
|
| 交通 | 東京メトロ東西線 南砂町駅 徒歩5分 |
|---|
| その他の交通 | 東京メトロ東西線 東陽町駅 徒歩22分 |
| 所在地 |
東京都江東区南砂7丁目
|
| 物件種目 |
中古マンション |
| 価格 |
7,980万円 |
平米単価 |
110.42万円 |
| 管理費等 |
12,350円 |
修繕積立金 |
6,500円 |
| 借地期間・地代(月額) |
2085年9月30日まで 6,750円 |
権利金 |
- |
| 敷金または保証金 |
- / - |
維持費等 |
- |
| その他一時金 |
- |
|
|
| 間取り |
3SLDK(洋 6・5.5・4.5 S 1.8) |
専有面積 |
72.27m²(壁芯) |
| 階建 / 階 |
13階建 / 1階 |
バルコニー |
11.21m² |
| 築年月 |
2023年1月(築3年5ヶ月)
|
建物構造 |
RC |
| 駐車場 |
有 21,000円/月 |
総戸数 |
362戸 |
| 駐輪場 |
- |
バイク置き場 |
- |
| ペット |
小型犬可・ 猫可 |
|
|
| 土地権利 |
定期借地権(賃借権) |
敷地面積 |
- |
| 管理形態/管理員の勤務形態 |
全部委託/日勤(株式会社日鉄コミュニティ) |
国土法届出 |
- |
| 建物名・部屋番号 |
|
| リフォーム履歴 |
- |
| リノベーション履歴 |
- |
| 瑕疵保証 |
- |
| 瑕疵保険 |
- |
| 評価・証明書 |
- |
| 備考 |
主要採光面:南西向き
施工会社:株式会社長谷工コーポレーション
用途地域:準工業
設備保証利用可
IT重説対応物件
|
| エネルギー消費性能 |
- |
| 断熱性能 |
- |
| 目安光熱費 |
- |
| バス・トイレ |
浴室暖房、浴室乾燥機、オートバス、追焚機能、シャワー付洗面化粧台、温水洗浄便座 |
| キッチン |
カウンターキッチン、システムキッチン、食器洗浄乾燥機、食器乾燥機、浄水器、ディスポーザー、3口以上コンロ |
| 設備・サービス |
モニター付オートロック、全居室収納、ウォークインクローゼット、床暖房、収納スペース、室内洗濯機置場、シューズインクローゼット、クローゼット、オートロック、モニター付インターホン、ディンプルキー、防犯カメラ、給湯、全居室フローリング、都市ガス、可動間仕切り、専用庭、衣類乾燥機、テラス、人感センサー付照明、ダウンライト、火災警報器(報知機)、ケーブルTV、BS端子、複層ガラス |
| その他 |
宅配BOX、ペット用施設、キッズルーム、フィットネス施設、敷地内AED有、エレベーター2基以上、共用ゲストルーム、共用パーティルーム、来客用駐車場、エレベーター |
| 条件等 |
- |
現況 |
所有者居住中 |
| 引渡可能時期 |
相談 |
物件番号 |
6989807059 |
| 情報公開日 |
2026年5月12日 |
次回更新予定日 |
2026年5月26日 |
| ケータイ用バーコード |
- スマートフォンでこの物件を見る
- スマートフォンからもこの物件をご覧になれます。
|
※「-」と表示されている項目については、情報提供会社にご確認ください。
| 周辺施設 |
SUNAMO |
| 距離 |
800m |
写真を見る |
| 周辺施設 |
イオンスタイル南砂 |
| 距離 |
496m |
写真を見る |
| 周辺施設 |
江東区立第三砂町小学校 |
| 距離 |
550m |
写真を見る |
| 周辺施設 |
南砂三丁目公園 |
| 距離 |
200m |
写真を見る |
ここから簡単にお問い合わせをすることができます。
(SSLでの暗号化での送信を希望されるお客さまは
こちら
よりお問い合わせください)
お問い合わせを行う前に
「個人情報の取り扱いについて」を必ずお読みください。
「個人情報の取り扱いについて」に同意いただいた場合は「上記にご同意の上 確認画面へ進む」のボタンをクリックしてください。
個人情報の取り扱いについて
皆さまが送付された個人情報はアットホーム(株)のサーバを経由し、お問い合わせ先の不動産会社にメールまたはFAXにて転送されるためアットホーム(株)にも保管されます。アットホーム(株)で保管された個人情報の取り扱いについては、【こちら】をご覧ください。
また、本画面でご記入いただいた個人情報は、お問い合わせ先の不動産会社でも保管します。 お問い合わせ先の不動産会社が保管する個人情報の取り扱いについては、不動産会社に直接お問い合わせください。
東京都知事免許(2)第106105号 |
|---|
- 交通:
- JR山手線/目黒駅 徒歩1分
- 東京都品川区上大崎2丁目15-21 PMO目黒6階
- TEL:
- 03-6381-7604
- FAX:
- 03-6381-7605
- 所属団体:
- (公社)全日本不動産協会会員(公社)首都圏不動産公正取引協議会加盟
取引態様:専任媒介  - 00281402
|
- スマートフォンで
この不動産会社を見る

|
- 提携サイト等より掲載されている物件情報につきましては、不動産会社詳細情報にリンクされていないものがあります。
- 物件に関するお問合せは、物件詳細ページの「情報提供会社」に表示されている不動産会社へ直接お願いいたします。
- 間取図は、現況を優先させていただきます。
- 映像は物件の一部を撮影したものです。物件の契約にあたっての最終判断はご自身の判断に基づいて行ってください。
- 仲介手数料について

アットホームは物件情報の適正化に努めております。
内容に誤りがある場合にはこちらへご連絡ください。