兵庫県神戸市須磨区大池町5丁目(鷹取駅)の中古マンション・新築マンション・分譲マンション:物件詳細
交通 所在地 |
駅徒歩 |
価格 |
構造 階建/階 |
間取り 専有面積 |
物件種目 築年月 |
|
JR山陽本線/鷹取
兵庫県神戸市須磨区大池町5丁目
|
3分
|
2,450万円
|
RC
10階建 / 5階
|
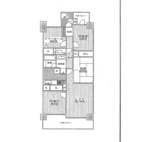
4LDK
80.33m²
|
中古マンション
2003年4月(築23年)
|
|
ペット相談、角部屋、2面採光、閑静な住宅街、外観タイル張り、管理人日勤
|
|
間取図
|
外観
|
<
その他の画像
>
|
| 交通 | JR山陽本線 鷹取駅 徒歩3分 |
|---|
| その他の交通 | 山陽電鉄本線 東須磨駅 徒歩13分 地下鉄西神・山手線 板宿駅 徒歩12分 |
| 所在地 |
兵庫県神戸市須磨区大池町5丁目
|
| 物件種目 |
中古マンション |
| 価格 |
2,450万円 |
平米単価 |
30.50万円 |
| 管理費等 |
8,300円 |
修繕積立金 |
14,100円 |
| 借地期間・地代(月額) |
2054年3月22日まで 14,100円 |
権利金 |
- |
| 敷金または保証金 |
- / - |
維持費等 |
- |
| その他一時金 |
解体積立金(月額):3,510円 |
|
|
| 間取り |
4LDK(和 6 洋 6・6・5) |
専有面積 |
80.33m²(壁芯) |
| 階建 / 階 |
10階建 / 5階 |
バルコニー |
14.91m² |
| 築年月 |
2003年4月(築23年)
|
建物構造 |
RC |
| 駐車場 |
有 7,000円/月 |
総戸数 |
65戸 |
| 駐輪場 |
- |
バイク置き場 |
- |
| ペット |
小型犬可・ 猫可・ 1住戸二頭まで可。 |
|
|
| 土地権利 |
定期借地権(地上権) |
敷地面積 |
- |
| 管理形態/管理員の勤務形態 |
全部委託/日勤(穴吹ハウジングサービス) |
国土法届出 |
- |
| アピールポイント |
お探しの方には嬉しいペット(小型犬・猫)合計2匹飼育可。閑静な住宅街の住戸、更に室外へのアプローチを2箇所備えた2面バルコニーのある住戸なので、風が通りやすく換気も楽ちんです。またアクセスのいい鷹取駅徒歩3分立地の物件で、その上受け取りに心配なしの宅配BOX付なので、ネット通販大好き派にはお勧めです。ちなみにシステムキッチン付です。家族というコミュニティを支える4LDK。ご案内いたしますのでお気軽にご連絡ください。 |
| 建物名・部屋番号 |
アルファステイツ鷹取駅前 508 |
| リフォーム履歴 |
■その他:2022年7月 全室クロス・キッチン・浴室・浴室乾燥機・洗面台・洗濯パン・フローリング ※実施年月は最も古い履歴を表示 |
| リノベーション履歴 |
- |
| 瑕疵保証 |
- |
| 瑕疵保険 |
- |
| 評価・証明書 |
- |
| 備考 |
主要採光面:南東向き
|
| エネルギー消費性能 |
- |
| 断熱性能 |
- |
| 目安光熱費 |
- |
| バス・トイレ |
浴室暖房、浴室乾燥機、高温差湯式、シャワー付洗面化粧台、温水洗浄便座 |
| キッチン |
システムキッチン、独立型キッチン、3口以上コンロ |
| 設備・サービス |
モニター付オートロック、室内洗濯機置場、クローゼット、全居室フローリング、都市ガス、二面バルコニー、ケーブルTV |
| その他 |
宅配BOX、エレベーター |
| 条件等 |
- |
現況 |
所有者居住中 |
| 引渡可能時期 |
相談 |
物件番号 |
6989827413 |
| 仲介手数料 |
売買代金の3% |
|
|
| 情報公開日 |
2026年3月9日 |
次回更新予定日 |
2026年4月8日 |
| ケータイ用バーコード |
- スマートフォンでこの物件を見る
- スマートフォンからもこの物件をご覧になれます。
|
※「-」と表示されている項目については、情報提供会社にご確認ください。
| 周辺施設 |
セブンイレブン神戸須磨大池町店 |
| 距離 |
228m |
| 周辺施設 |
兵庫県立大学新長田ブランチ |
| 距離 |
1513m |
| 周辺施設 |
国立兵庫教育大学神戸キャンパス |
| 距離 |
1514m |
ここから簡単にお問い合わせをすることができます。
(SSLでの暗号化での送信を希望されるお客さまは
こちら
よりお問い合わせください)
お問い合わせを行う前に
「個人情報の取り扱いについて」を必ずお読みください。
「個人情報の取り扱いについて」に同意いただいた場合は「上記にご同意の上 確認画面へ進む」のボタンをクリックしてください。
個人情報の取り扱いについて
皆さまが送付された個人情報はアットホーム(株)のサーバを経由し、お問い合わせ先の不動産会社にメールまたはFAXにて転送されるためアットホーム(株)にも保管されます。アットホーム(株)で保管された個人情報の取り扱いについては、【こちら】をご覧ください。
また、本画面でご記入いただいた個人情報は、お問い合わせ先の不動産会社でも保管します。 お問い合わせ先の不動産会社が保管する個人情報の取り扱いについては、不動産会社に直接お問い合わせください。
兵庫県知事免許(8)第202402号 |
|---|
- 交通:
- JR東海道本線/甲子園口駅 徒歩3分
- 兵庫県西宮市甲子園口北町19-16
- TEL:
- 0798-66-6230
- FAX:
- 0798-66-4857
- 所属団体:
- (一社)兵庫県宅地建物取引業協会会員(公社)近畿地区不動産公正取引協議会加盟
取引態様:一般媒介  - 50010648
|
- スマートフォンで
この不動産会社を見る

|
- 提携サイト等より掲載されている物件情報につきましては、不動産会社詳細情報にリンクされていないものがあります。
- 物件に関するお問合せは、物件詳細ページの「情報提供会社」に表示されている不動産会社へ直接お願いいたします。
- 間取図は、現況を優先させていただきます。
- 映像は物件の一部を撮影したものです。物件の契約にあたっての最終判断はご自身の判断に基づいて行ってください。
- 仲介手数料について

アットホームは物件情報の適正化に努めております。
内容に誤りがある場合にはこちらへご連絡ください。