東京都港区港南2丁目(品川駅)の中古マンション・新築マンション・分譲マンション:物件詳細
交通 所在地 |
駅徒歩 |
価格 |
構造 階建/階 |
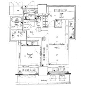
間取り 専有面積 |
物件種目 築年月 |
|
JR山手線/品川
東京都港区港南2丁目
|
9分
|
13,000万円
|
RC
地上30階地下2階建 / 18階
|
1SLDK
55.85m²
|
中古マンション
賃貸中
2005年7月(築20年9ヶ月)
|
|
常時ゴミ出し可能、南向き、24時間セキュリティー、24時間換気システム、管理人日勤
|
|
間取図
|
|
<
その他の画像
>
|
| 交通 | JR山手線 品川駅 徒歩9分 |
|---|
| その他の交通 | りんかい線 天王洲アイル駅 徒歩10分 京急本線 北品川駅 徒歩11分 |
| 所在地 |
東京都港区港南2丁目
|
| 物件種目 |
中古マンション |
| 価格 |
13,000万円 |
平米単価 |
232.77万円 |
| 管理費等 |
19,950円 |
修繕積立金 |
19,050円 |
| 借地期間・地代(月額) |
- |
権利金 |
- |
| 敷金または保証金 |
- / - |
維持費等 |
- |
| その他一時金 |
- |
|
|
| 間取り |
1SLDK(洋 6 LDK 13.3 S 3.9) |
専有面積 |
55.85m²(壁芯) |
| 階建 / 階 |
地上30階地下2階建 / 18階 |
バルコニー |
7.09m² |
| 築年月 |
2005年7月(築20年9ヶ月)
|
建物構造 |
RC |
| 駐車場 |
- |
総戸数 |
- |
| 駐輪場 |
- |
バイク置き場 |
- |
| ペット |
-
|
|
|
| 土地権利 |
所有権 |
敷地面積 |
- |
| 管理形態/管理員の勤務形態 |
全部委託/日勤 |
国土法届出 |
- |
| アピールポイント |
品川駅徒歩圏のタワーレジデンス。新幹線や空港アクセスにも優れ、都心主要エリアへスムーズに移動可能。再開発が進む品川エリアに位置し、資産性と利便性を兼ね備えた魅力ある住環境です。
また、都心・空港・新幹線へのアクセス良好で、再開発が進む将来性の高いエリア。居住用はもちろん、資産性を重視した方にもおすすめの立地となります。 |
| 建物名・部屋番号 |
品川タワーフェイス |
| リフォーム履歴 |
- |
| リノベーション履歴 |
- |
| 瑕疵保証 |
- |
| 瑕疵保険 |
- |
| 評価・証明書 |
- |
| 備考 |
主要採光面:南向き
用途地域:商業地域
現在、月額24万円にて賃貸中ですが定期借家契約2027年2月28日で満了解約。その他:CATV使用料55円/月、インターネット利用料1,650円/月、町会費負担金30円/月
|
| エネルギー消費性能 |
- |
| 断熱性能 |
- |
| 目安光熱費 |
- |
| バス・トイレ |
浴室乾燥機、オートバス、追焚機能、温水洗浄便座 |
| キッチン |
独立型キッチン、食器洗浄乾燥機 |
| 設備・サービス |
全居室収納、ウォークインクローゼット、収納スペース、室内洗濯機置場、クローゼット、オートロック、モニター付インターホン、ディンプルキー、防犯カメラ、全居室フローリング、都市ガス、エアコン |
| その他 |
宅配BOX、エレベーター2基以上、エレベーター |
| 条件等 |
- |
現況 |
賃貸中 |
| 引渡可能時期 |
相談 |
物件番号 |
6989856675 |
| 情報公開日 |
2026年3月10日 |
次回更新予定日 |
2026年3月24日 |
| ケータイ用バーコード |
- スマートフォンでこの物件を見る
- スマートフォンからもこの物件をご覧になれます。
|
※「-」と表示されている項目については、情報提供会社にご確認ください。
ここから簡単にお問い合わせをすることができます。
(SSLでの暗号化での送信を希望されるお客さまは
こちら
よりお問い合わせください)
お問い合わせを行う前に
「個人情報の取り扱いについて」を必ずお読みください。
「個人情報の取り扱いについて」に同意いただいた場合は「上記にご同意の上 確認画面へ進む」のボタンをクリックしてください。
個人情報の取り扱いについて
皆さまが送付された個人情報はアットホーム(株)のサーバを経由し、お問い合わせ先の不動産会社にメールまたはFAXにて転送されるためアットホーム(株)にも保管されます。アットホーム(株)で保管された個人情報の取り扱いについては、【こちら】をご覧ください。
また、本画面でご記入いただいた個人情報は、お問い合わせ先の不動産会社でも保管します。 お問い合わせ先の不動産会社が保管する個人情報の取り扱いについては、不動産会社に直接お問い合わせください。
東京都知事免許(2)第103266号 |
|---|
- 交通:
- 都営大江戸線/新宿西口駅 徒歩2分
- 東京都新宿区西新宿7丁目8-12 昇立西新宿ビル8階
- TEL:
- 03-6205-8438
- 所属団体:
- (公社)全日本不動産協会会員(公社)首都圏不動産公正取引協議会加盟
取引態様:専任媒介  - 00266187
|
- スマートフォンで
この不動産会社を見る

|
- 提携サイト等より掲載されている物件情報につきましては、不動産会社詳細情報にリンクされていないものがあります。
- 物件に関するお問合せは、物件詳細ページの「情報提供会社」に表示されている不動産会社へ直接お願いいたします。
- 間取図は、現況を優先させていただきます。
- 映像は物件の一部を撮影したものです。物件の契約にあたっての最終判断はご自身の判断に基づいて行ってください。
- 仲介手数料について

アットホームは物件情報の適正化に努めております。
内容に誤りがある場合にはこちらへご連絡ください。