石川県金沢市涌波3丁目の中古マンション・新築マンション・分譲マンション:物件詳細
交通 所在地 |
駅徒歩 |
価格 |
構造 階建/階 |
間取り 専有面積 |
物件種目 築年月 |
|
JR金沢駅
石川県金沢市涌波3丁目
|
-
|
1,280万円
|
RC
3階建 / 3階
|
4LDK
110.65m²
|
中古マンション
1984年7月(築41年11ヶ月)
|
|
ペット相談、最上階
|
|
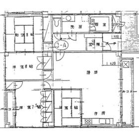
間取図
|
外観
|
その他の画像
|
| 物件種目 |
中古マンション |
| 価格 |
1,280万円 |
平米単価 |
11.57万円 |
| 管理費等 |
5,000円 |
修繕積立金 |
6,000円 |
| 借地期間・地代(月額) |
- |
権利金 |
- |
| 敷金または保証金 |
- / - |
維持費等 |
- |
| その他一時金 |
- |
|
|
| 間取り |
4LDK(和 8・6 洋 7.5・6 LDK 19) |
専有面積 |
110.65m²(内法) |
| 階建 / 階 |
3階建 / 3階 |
バルコニー |
8.01m² |
| 築年月 |
1984年7月(築41年11ヶ月)
|
建物構造 |
RC |
| 駐車場 |
- |
総戸数 |
- |
| 駐輪場 |
- |
バイク置き場 |
- |
| ペット |
相談 |
|
|
| 土地権利 |
所有権 |
敷地面積 |
1,135.36m² |
| 管理形態/管理員の勤務形態 |
自主管理/不在(赤坂タウンヒル管理協会) |
国土法届出 |
- |
| アピールポイント |
LDK(&隣接和室)、寝室は二重サッシになっているため、断熱対策もバッチリ。キッチン、洗面、浴槽はリフォーム歴あり。内見希望は090ー1634ー9143(清水)までお気軽にご連絡ください! |
| 建物名・部屋番号 |
赤坂タウンヒル |
| リフォーム履歴 |
- |
| リノベーション履歴 |
- |
| 瑕疵保証 |
- |
| 瑕疵保険 |
- |
| 評価・証明書 |
- |
| 備考 |
主要採光面:東向き
用途地域:準住居
|
| エネルギー消費性能 |
- |
| 断熱性能 |
- |
| 目安光熱費 |
- |
| バス・トイレ |
- |
| キッチン |
- |
| 設備・サービス |
- |
| その他 |
- |
| 条件等 |
- |
現況 |
空家 |
| 引渡可能時期 |
即時 |
物件番号 |
6989858917 |
| 情報公開日 |
2026年3月10日 |
次回更新予定日 |
2026年5月9日 |
| ケータイ用バーコード |
- スマートフォンでこの物件を見る
- スマートフォンからもこの物件をご覧になれます。
|
※「-」と表示されている項目については、情報提供会社にご確認ください。
| 周辺施設 |
ファミリーマート金沢涌波三丁目店 |
| 距離 |
46m |
| 周辺施設 |
セブンイレブン金沢三口新町3丁目店 |
| 距離 |
676m |
| 周辺施設 |
保育所型認定こども園わくなみこども園 |
| 距離 |
104m |
ここから簡単にお問い合わせをすることができます。
(SSLでの暗号化での送信を希望されるお客さまは
こちら
よりお問い合わせください)
お問い合わせを行う前に
「個人情報の取り扱いについて」を必ずお読みください。
「個人情報の取り扱いについて」に同意いただいた場合は「上記にご同意の上 確認画面へ進む」のボタンをクリックしてください。
個人情報の取り扱いについて
皆さまが送付された個人情報はアットホーム(株)のサーバを経由し、お問い合わせ先の不動産会社にメールまたはFAXにて転送されるためアットホーム(株)にも保管されます。アットホーム(株)で保管された個人情報の取り扱いについては、【こちら】をご覧ください。
また、本画面でご記入いただいた個人情報は、お問い合わせ先の不動産会社でも保管します。 お問い合わせ先の不動産会社が保管する個人情報の取り扱いについては、不動産会社に直接お問い合わせください。
石川県知事免許(5)第3778号 |
|---|
- 交通:
- IRいしかわ鉄道/西金沢駅 徒歩10分
- 石川県金沢市保古2丁目111
- TEL:
- 076-218-6014
- FAX:
- 076-218-6024
- 所属団体:
- (公社)全日本不動産協会会員
取引態様:専属専任媒介  - 40403715
|
- スマートフォンで
この不動産会社を見る

|
- 提携サイト等より掲載されている物件情報につきましては、不動産会社詳細情報にリンクされていないものがあります。
- 物件に関するお問合せは、物件詳細ページの「情報提供会社」に表示されている不動産会社へ直接お願いいたします。
- 間取図は、現況を優先させていただきます。
- 映像は物件の一部を撮影したものです。物件の契約にあたっての最終判断はご自身の判断に基づいて行ってください。
- 仲介手数料について

アットホームは物件情報の適正化に努めております。
内容に誤りがある場合にはこちらへご連絡ください。