福岡県柳川市三橋町蒲船津(西鉄柳川駅)の中古マンション・新築マンション・分譲マンション:物件詳細
交通 所在地 |
駅徒歩 |
価格 |
構造 階建/階 |
間取り 専有面積 |
物件種目 築年月 |
|
西鉄天神大牟田線/西鉄柳川
福岡県柳川市三橋町蒲船津
|
7分
|
3,950万円
|
RC
15階建 / 11階
|
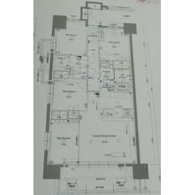
3LDK
76.83m²
|
中古マンション
2025年6月(築1年未満)
|
|
角部屋、24時間換気システム、閑静な住宅街、外観タイル張り、管理人日勤
|
|
間取図
|
外観
|
<
その他の画像
>
|
| 交通 | 西鉄天神大牟田線 西鉄柳川駅 徒歩7分 |
|---|
| その他の交通 | 西鉄天神大牟田線 矢加部駅 徒歩18分 西鉄天神大牟田線 徳益駅 徒歩19分 |
| 所在地 |
福岡県柳川市三橋町蒲船津
|
| 物件種目 |
中古マンション |
| 価格 |
3,950万円 |
平米単価 |
51.42万円 |
| 管理費等 |
11,830円 |
修繕積立金 |
7,600円 |
| 借地期間・地代(月額) |
- |
権利金 |
- |
| 敷金または保証金 |
- / - |
維持費等 |
- |
| その他一時金 |
- |
|
|
| 間取り |
3LDK(洋 4.5・5・6 LDK 18.5) |
専有面積 |
76.83m²(壁芯) |
| 階建 / 階 |
15階建 / 11階 |
バルコニー |
10.26m² |
| 築年月 |
2025年6月(築1年未満)
|
建物構造 |
RC |
| 駐車場 |
有 3,000円/月 |
総戸数 |
59戸 |
| 駐輪場 |
有 100円/月 |
バイク置き場 |
有 600円/月 |
| ペット |
-
|
|
|
| 土地権利 |
所有権 |
敷地面積 |
- |
| 管理形態/管理員の勤務形態 |
全部委託/日勤 |
国土法届出 |
- |
| アピールポイント |
未入居物件です!!エアコン4基付き!!価格相談可能です!!3LDKタイプですがLDK部分を可動間仕切りにすれば4LDKとしても使えます!!西鉄大牟田線 西鉄柳川駅まで徒歩約7分!!ゆめモール柳川まで徒歩約7分!!ワンフロワー4邸で全邸南向きです!!ご案内をご希望される際は青い看板が目印のアパマンショップ筑後店 0942-53-0007までお問合せお待ちしております!! |
| 建物名・部屋番号 |
サンパ-ク柳川駅レジデンス |
| リフォーム履歴 |
- |
| リノベーション履歴 |
- |
| 瑕疵保証 |
- |
| 瑕疵保険 |
- |
| 評価・証明書 |
- |
| 備考 |
主要採光面:南西向き
施工会社:金子建設株式会社
用途地域:1種住居
延べ面積:4,928.90m²
|
| エネルギー消費性能 |
- |
| 断熱性能 |
- |
| 目安光熱費 |
- |
| バス・トイレ |
浴室乾燥機、追焚機能、シャワー付洗面化粧台、温水洗浄便座 |
| キッチン |
カウンターキッチン、システムキッチン、食器洗浄乾燥機、食器乾燥機、浄水器、IHクッキングヒーター、3口以上コンロ |
| 設備・サービス |
モニター付オートロック、全居室収納、エアコン2台以上、バイク置き場、収納スペース、室内洗濯機置場、クローゼット、オートロック、モニター付インターホン、ディンプルキー、ダブルロックドア、防犯カメラ、冷蔵庫、洗濯機置場、給湯、全居室フローリング、プロパンガス、エアコン、駐輪場、照明器具、火災警報器(報知機) |
| その他 |
来客用駐車場、エレベーター |
| 条件等 |
- |
現況 |
空家 |
| 引渡可能時期 |
即時 |
物件番号 |
6989869678 |
| 情報公開日 |
2026年3月11日 |
次回更新予定日 |
2026年3月31日 |
| ケータイ用バーコード |
- スマートフォンでこの物件を見る
- スマートフォンからもこの物件をご覧になれます。
|
※「-」と表示されている項目については、情報提供会社にご確認ください。
ここから簡単にお問い合わせをすることができます。
(SSLでの暗号化での送信を希望されるお客さまは
こちら
よりお問い合わせください)
お問い合わせを行う前に
「個人情報の取り扱いについて」を必ずお読みください。
「個人情報の取り扱いについて」に同意いただいた場合は「上記にご同意の上 確認画面へ進む」のボタンをクリックしてください。
個人情報の取り扱いについて
皆さまが送付された個人情報はアットホーム(株)のサーバを経由し、お問い合わせ先の不動産会社にメールまたはFAXにて転送されるためアットホーム(株)にも保管されます。アットホーム(株)で保管された個人情報の取り扱いについては、【こちら】をご覧ください。
また、本画面でご記入いただいた個人情報は、お問い合わせ先の不動産会社でも保管します。 お問い合わせ先の不動産会社が保管する個人情報の取り扱いについては、不動産会社に直接お問い合わせください。
福岡県知事免許(3)第16880号 |
|---|
- 交通:
- JR鹿児島本線/羽犬塚駅 徒歩5分
- 福岡県筑後市大字山ノ井792-4
- TEL:
- 0942-53-0007
- FAX:
- 0942-53-0008
- 所属団体:
- (公社)福岡県宅地建物取引業協会会員(一社)九州不動産公正取引協議会加盟
取引態様:一般媒介  - 80004929
|
- スマートフォンで
この不動産会社を見る

|
- 提携サイト等より掲載されている物件情報につきましては、不動産会社詳細情報にリンクされていないものがあります。
- 物件に関するお問合せは、物件詳細ページの「情報提供会社」に表示されている不動産会社へ直接お願いいたします。
- 間取図は、現況を優先させていただきます。
- 映像は物件の一部を撮影したものです。物件の契約にあたっての最終判断はご自身の判断に基づいて行ってください。
- 仲介手数料について

アットホームは物件情報の適正化に努めております。
内容に誤りがある場合にはこちらへご連絡ください。