奈良県奈良市あやめ池南8丁目(菖蒲池駅)の中古マンション・新築マンション・分譲マンション:物件詳細
交通 所在地 |
駅徒歩 |
価格 |
構造 階建/階 |
間取り 専有面積 |
物件種目 築年月 |
|
近鉄奈良線/菖蒲池
奈良県奈良市あやめ池南8丁目
|
10分
|
1,580万円
|
RC
6階建 / 3階
|
3LDK
94.95m²
|
中古マンション
1992年9月(築33年9ヶ月)
|
|
管理人日勤
|
|
間取図
|
外観
|
<
その他の画像
>
|
| 交通 | 近鉄奈良線 菖蒲池駅 徒歩10分 |
|---|
| その他の交通 | 近鉄奈良線 学園前駅 徒歩20分 [バス利用可] バス 6分 蛙股池 停歩6m |
| 所在地 |
奈良県奈良市あやめ池南8丁目
|
| 物件種目 |
中古マンション |
| 価格 |
1,580万円 |
平米単価 |
16.65万円 |
| 管理費等 |
19,600円 |
修繕積立金 |
19,300円 |
| 借地期間・地代(月額) |
- |
権利金 |
- |
| 敷金または保証金 |
- / - |
維持費等 |
- |
| その他一時金 |
- |
|
|
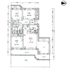
| 間取り |
3LDK(洋 6.1・6.4・7.1 LDK 19.4) |
専有面積 |
94.95m²(壁芯) |
| 階建 / 階 |
6階建 / 3階 |
バルコニー |
22.09m² |
| 築年月 |
1992年9月(築33年9ヶ月)
|
建物構造 |
RC |
| 駐車場 |
有 10,500円/月 |
総戸数 |
- |
| 駐輪場 |
- |
バイク置き場 |
- |
| ペット |
-
|
|
|
| 土地権利 |
所有権 |
敷地面積 |
- |
| 管理形態/管理員の勤務形態 |
全部委託/日勤(近鉄住宅管理) |
国土法届出 |
- |
| アピールポイント |
■近鉄あやめ池駅徒歩10分、近鉄学園前駅徒歩20分の立地にある3LDK。駅周辺にはスーパーやドラッグストアが揃い、毎日の暮らしに便利な住環境です。
■東向きバルコニーと専用庭付きで、朝の光を感じながら気持ちよく過ごせます。専用庭は人工芝工事済みで、お子様の遊び場やガーデニングスペースとしても活用可能。室内は令和8年2月リフォーム済みで、洗面台・トイレを入替、ハウスクリーニングも実施済みです。キッチンは3口コンロ付きで使い勝手が良く、LDKは開放感のある明るい空間。
■きれいに整った住まいで、新生活を始めてみませんか♪ |
| 建物名・部屋番号 |
ヴェルビュあやめ池A棟 |
| リフォーム履歴 |
■水回り:2026年2月 トイレ、洗面所 ■内装:2026年2月 全室クロス張替え 南東側洋室床張替、専用邸人工芝工事、ハウスクリーニング ※実施年月は最も古い履歴を表示 |
| リノベーション履歴 |
- |
| 瑕疵保証 |
- |
| 瑕疵保険 |
- |
| 評価・証明書 |
- |
| 備考 |
主要採光面:東向き
※駐車場の空き状況についてはお問い合わせの程よろしくお願い致します
|
| エネルギー消費性能 |
- |
| 断熱性能 |
- |
| 目安光熱費 |
- |
| バス・トイレ |
オートバス、シャワー付洗面化粧台、温水洗浄便座 |
| キッチン |
カウンターキッチン、オープンキッチン、システムキッチン、3口以上コンロ、グリル |
| 設備・サービス |
全居室収納、クローゼット、床下収納、オートロック、都市ガス、専用庭 |
| その他 |
エレベーター |
| 条件等 |
- |
現況 |
空家 |
| 引渡可能時期 |
即時 |
物件番号 |
6989941157 |
| 情報公開日 |
2026年3月16日 |
次回更新予定日 |
2026年5月15日 |
| ケータイ用バーコード |
- スマートフォンでこの物件を見る
- スマートフォンからもこの物件をご覧になれます。
|
※「-」と表示されている項目については、情報提供会社にご確認ください。
| 周辺施設 |
奈良市立あやめ池小学校 |
| 距離 |
708m |
写真を見る |
| 周辺施設 |
奈良市立伏見中学校 |
| 距離 |
1837m |
写真を見る |
| 周辺施設 |
セブンイレブン奈良あやめ池南6丁目店 |
| 距離 |
672m |
| 周辺施設 |
いそかわあやめ池店 |
| 距離 |
666m |
写真を見る |
| 周辺施設 |
ハーベスあやめ池店 |
| 距離 |
1164m |
写真を見る |
| 周辺施設 |
奈良あやめ池郵便局 |
| 距離 |
728m |
写真を見る |
| 周辺施設 |
南都銀行あやめ池支店 |
| 距離 |
827m |
写真を見る |
ここから簡単にお問い合わせをすることができます。
(SSLでの暗号化での送信を希望されるお客さまは
こちら
よりお問い合わせください)
お問い合わせを行う前に
「個人情報の取り扱いについて」を必ずお読みください。
「個人情報の取り扱いについて」に同意いただいた場合は「上記にご同意の上 確認画面へ進む」のボタンをクリックしてください。
個人情報の取り扱いについて
皆さまが送付された個人情報はアットホーム(株)のサーバを経由し、お問い合わせ先の不動産会社にメールまたはFAXにて転送されるためアットホーム(株)にも保管されます。アットホーム(株)で保管された個人情報の取り扱いについては、【こちら】をご覧ください。
また、本画面でご記入いただいた個人情報は、お問い合わせ先の不動産会社でも保管します。 お問い合わせ先の不動産会社が保管する個人情報の取り扱いについては、不動産会社に直接お問い合わせください。
奈良県知事免許(9)第2267号 |
|---|
- 交通:
- 近鉄橿原線/近鉄郡山駅 徒歩14分
- 奈良県大和郡山市新木町366-2
- TEL:
- 0120-10-7435
- FAX:
- 0743-54-5485
- 所属団体:
- (公社)奈良県宅地建物取引業協会会員(公社)近畿地区不動産公正取引協議会加盟
取引態様:媒介  - 50018404
|
- スマートフォンで
この不動産会社を見る

|
- 提携サイト等より掲載されている物件情報につきましては、不動産会社詳細情報にリンクされていないものがあります。
- 物件に関するお問合せは、物件詳細ページの「情報提供会社」に表示されている不動産会社へ直接お願いいたします。
- 間取図は、現況を優先させていただきます。
- 映像は物件の一部を撮影したものです。物件の契約にあたっての最終判断はご自身の判断に基づいて行ってください。
- 仲介手数料について

アットホームは物件情報の適正化に努めております。
内容に誤りがある場合にはこちらへご連絡ください。