東京都世田谷区玉川4丁目(二子玉川駅)の中古マンション・新築マンション・分譲マンション:物件詳細
交通 所在地 |
駅徒歩 |
価格 |
構造 階建/階 |
間取り 専有面積 |
物件種目 築年月 |
|
東急田園都市線/二子玉川
東京都世田谷区玉川4丁目
|
14分
|
18,800万円
|
RC
5階建 / 1階
|
2LDK
108.11m²
|
中古マンション
2003年7月(築22年9ヶ月)
|
|
ペット相談、常時ゴミ出し可能、管理人日勤
|
|
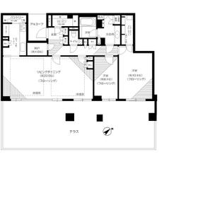
間取図
|
|
その他の画像
|
| 交通 | 東急田園都市線 二子玉川駅 徒歩14分 |
|---|
| その他の交通 | 東急大井町線 二子玉川駅 徒歩14分 東急田園都市線 用賀駅 徒歩20分 |
| 所在地 |
東京都世田谷区玉川4丁目
|
| 物件種目 |
中古マンション |
| 価格 |
18,800万円 |
平米単価 |
173.90万円 |
| 管理費等 |
33,510円 |
修繕積立金 |
28,110円 |
| 借地期間・地代(月額) |
- |
権利金 |
- |
| 敷金または保証金 |
- / - |
維持費等 |
- |
| その他一時金 |
- |
|
|
| 間取り |
2LDK(洋 6.1・10.1) |
専有面積 |
108.11m²(壁芯) |
| 階建 / 階 |
5階建 / 1階 |
バルコニー |
68.95m² |
| 築年月 |
2003年7月(築22年9ヶ月)
|
建物構造 |
RC |
| 駐車場 |
有 30,000円/月 |
総戸数 |
41戸 |
| 駐輪場 |
有 |
バイク置き場 |
有 |
| ペット |
相談 |
|
|
| 土地権利 |
所有権 |
敷地面積 |
- |
| 管理形態/管理員の勤務形態 |
全部委託/日勤(三井不動産レジデンシャル) |
国土法届出 |
- |
| アピールポイント |
【ペットと歩む、旧庭園の緑を継承した低層邸宅】お探しの方には嬉しいペット相談可。広々とした延床面積108.11㎡の居室空間、更に居住空間を広く感じさせる専用庭付だから、住スペースと心の両方にゆとりがもてます。また不在時の受け取りも楽々の宅配BOX付で、その上早起き苦手な方にはおすすめの常時ゴミ出し可の住戸だから、ゴミ収集の時間や曜日に縛られません。複数のおかず作りを同時進行できるコンロ3口以上付です。家族の安心拠点になる2LDK。実際の空間をご自身で体感ください。
【都会のオアシス】四季を五感で愉しむ、緑豊かな遊歩道のある暮らし。かつての名園「旧幽篁堂(ゆうこうどう)庭園」の意匠を継承した、贅沢な低層レジデンスです 。敷地内には、当時の趣を残した緑豊かな遊歩道が整備されており、日々の暮らしの中で四季折々の自然を五感で愉しむことができます 。都心に近い二子玉川エリアにありながら、一歩足を踏み入れれば静謐で瑞々しい風景が広がる、まさに「都会のオアシス」と呼ぶにふさわしい住環境です。 |
| 建物名・部屋番号 |
パークコート二子玉川壱番館 |
| リフォーム履歴 |
- |
| リノベーション履歴 |
- |
| 瑕疵保証 |
- |
| 瑕疵保険 |
- |
| 評価・証明書 |
- |
| 備考 |
主要採光面:南東向き
駐車場(大型)サイズ幅1950、長さ5300、高さ1550
その他詳細はお問合せ下さい
|
| エネルギー消費性能 |
- |
| 断熱性能 |
- |
| 目安光熱費 |
- |
| バス・トイレ |
浴室暖房、温水洗浄便座 |
| キッチン |
3口以上コンロ |
| 設備・サービス |
ウォークインクローゼット、エアコン2台以上、バイク置き場、シューズインクローゼット、オートロック、モニター付インターホン、都市ガス、専用庭、駐輪場、光ファイバー、ケーブルTV、CS、BS端子 |
| その他 |
宅配BOX、内廊下、エレベーター |
| 条件等 |
- |
現況 |
所有者居住中 |
| 引渡可能時期 |
相談 |
物件番号 |
6989970075 |
| 仲介手数料 |
売買代金の3.3%+6.6万円 |
|
|
| 情報公開日 |
2026年3月18日 |
次回更新予定日 |
2026年4月1日 |
| ケータイ用バーコード |
- スマートフォンでこの物件を見る
- スマートフォンからもこの物件をご覧になれます。
|
※「-」と表示されている項目については、情報提供会社にご確認ください。
| 周辺施設 |
ファミリーマート玉川三丁目店 |
| 距離 |
462m |
| 周辺施設 |
ココカラファイン二子玉川店 |
| 距離 |
521m |
| 周辺施設 |
世田谷区立二子玉川小学校 |
| 距離 |
534m |
ここから簡単にお問い合わせをすることができます。
(SSLでの暗号化での送信を希望されるお客さまは
こちら
よりお問い合わせください)
お問い合わせを行う前に
「個人情報の取り扱いについて」を必ずお読みください。
「個人情報の取り扱いについて」に同意いただいた場合は「上記にご同意の上 確認画面へ進む」のボタンをクリックしてください。
個人情報の取り扱いについて
皆さまが送付された個人情報はアットホーム(株)のサーバを経由し、お問い合わせ先の不動産会社にメールまたはFAXにて転送されるためアットホーム(株)にも保管されます。アットホーム(株)で保管された個人情報の取り扱いについては、【こちら】をご覧ください。
また、本画面でご記入いただいた個人情報は、お問い合わせ先の不動産会社でも保管します。 お問い合わせ先の不動産会社が保管する個人情報の取り扱いについては、不動産会社に直接お問い合わせください。
東京都知事免許(5)第80995号 |
|---|
- 交通:
- 東京メトロ副都心線/北参道駅 徒歩4分
- 東京都渋谷区千駄ヶ谷3丁目16-3 シルヴァキングダム1階
- TEL:
- 03-6804-1813
- FAX:
- 03-6804-1814
- 所属団体:
- (公社)東京都宅地建物取引業協会会員(公社)首都圏不動産公正取引協議会加盟
取引態様:媒介  - 00511618
|
- スマートフォンで
この不動産会社を見る

|
- 提携サイト等より掲載されている物件情報につきましては、不動産会社詳細情報にリンクされていないものがあります。
- 物件に関するお問合せは、物件詳細ページの「情報提供会社」に表示されている不動産会社へ直接お願いいたします。
- 間取図は、現況を優先させていただきます。
- 映像は物件の一部を撮影したものです。物件の契約にあたっての最終判断はご自身の判断に基づいて行ってください。
- 仲介手数料について

アットホームは物件情報の適正化に努めております。
内容に誤りがある場合にはこちらへご連絡ください。