岩手県盛岡市東山1丁目の中古マンション・新築マンション・分譲マンション:物件詳細
交通 所在地 |
駅徒歩 |
価格 |
構造 階建/階 |
間取り 専有面積 |
物件種目 築年月 |
|
【バス】東山一丁目 停歩6分
岩手県盛岡市東山1丁目
|
-
|
198万円
|
RC
4階建 / 2階
|
1DK
28.60m²
|
中古マンション
1991年9月(築34年7ヶ月)
|
|
管理人日勤
|
|
間取図
|
外観
|
<
その他の画像
>
|
| 交通 | 【バス】 東山一丁目 停歩6分 |
| 所在地 |
岩手県盛岡市東山1丁目
|
| 物件種目 |
中古マンション |
| 価格 |
198万円 |
平米単価 |
6.93万円 |
| 管理費等 |
5,390円 |
修繕積立金 |
5,720円 |
| 借地期間・地代(月額) |
- |
権利金 |
- |
| 敷金または保証金 |
- / - |
維持費等 |
- |
| その他一時金 |
- |
|
|
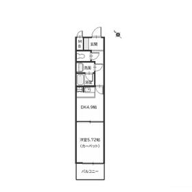
| 間取り |
1DK(洋 5.7 DK 4.9) |
専有面積 |
28.60m²(壁芯) |
| 階建 / 階 |
4階建 / 2階 |
バルコニー |
3.90m² |
| 築年月 |
1991年9月(築34年7ヶ月)
|
建物構造 |
RC |
| 駐車場 |
近有 5,000円/月 |
総戸数 |
95戸 |
| 駐輪場 |
有 無料 |
バイク置き場 |
- |
| ペット |
-
|
|
|
| 土地権利 |
所有権 |
敷地面積 |
- |
| 管理形態/管理員の勤務形態 |
全部委託/日勤(協栄テックス株式会社) |
国土法届出 |
- |
| アピールポイント |
・ユニバース中野店 徒歩6分(450m)
・クスリのアオキ盛岡中野店 徒歩6分(450m)
・セブンイレブン盛岡中野店 徒歩5分(400m)
・イナちゃん飯店 徒歩10分(700m)
・中野小、河南中学区 |
| 建物名・部屋番号 |
|
| リフォーム履歴 |
■その他:2026年3月 ガス給湯器、ガスコンロ(1口)交換 ※実施年月は最も古い履歴を表示 |
| リノベーション履歴 |
- |
| 瑕疵保証 |
- |
| 瑕疵保険 |
- |
| 評価・証明書 |
- |
| 備考 |
主要採光面:南西向き
用途地域:2種中高
・現状現況渡し
・近隣月極駐車場(月額5,000円)空有(要確認)、マンションの駐車場(月額4500円~7000円)は満車です。
・駐輪場使用料:無料(ステッカー有り、大型バイクは不可)
・立地適正化計画【一般居住区域】居住誘導区域外
・市街地景観地域、屋外広告物規制区域(第2種市街地景観区域)
・宅地造成等工事規制区域
・建築基準法22条屋根不燃区域
|
| エネルギー消費性能 |
- |
| 断熱性能 |
- |
| 目安光熱費 |
- |
| バス・トイレ |
シャワー付洗面化粧台、温水洗浄便座 |
| キッチン |
- |
| 設備・サービス |
モニター付オートロック、室内洗濯機置場、オートロック、給湯、都市ガス、エアコン、駐輪場、照明器具 |
| その他 |
- |
| 条件等 |
- |
現況 |
空家 |
| 引渡可能時期 |
即時 |
物件番号 |
6989984491 |
| 仲介手数料 |
不要 |
|
|
| 情報公開日 |
2026年3月20日 |
次回更新予定日 |
2026年4月10日 |
| ケータイ用バーコード |
- スマートフォンでこの物件を見る
- スマートフォンからもこの物件をご覧になれます。
|
※「-」と表示されている項目については、情報提供会社にご確認ください。
| 周辺施設 |
ワークマンプラス盛岡中野店 |
| 距離 |
882m |
| 周辺施設 |
セブンイレブン盛岡中野店 |
| 距離 |
336m |
| 周辺施設 |
クスリのアオキ盛岡中野店 |
| 距離 |
432m |
| 周辺施設 |
一般財団法人岩手済生医会三田記念病院 |
| 距離 |
2364m |
ここから簡単にお問い合わせをすることができます。
(SSLでの暗号化での送信を希望されるお客さまは
こちら
よりお問い合わせください)
お問い合わせを行う前に
「個人情報の取り扱いについて」を必ずお読みください。
「個人情報の取り扱いについて」に同意いただいた場合は「上記にご同意の上 確認画面へ進む」のボタンをクリックしてください。
個人情報の取り扱いについて
皆さまが送付された個人情報はアットホーム(株)のサーバを経由し、お問い合わせ先の不動産会社にメールまたはFAXにて転送されるためアットホーム(株)にも保管されます。アットホーム(株)で保管された個人情報の取り扱いについては、【こちら】をご覧ください。
また、本画面でご記入いただいた個人情報は、お問い合わせ先の不動産会社でも保管します。 お問い合わせ先の不動産会社が保管する個人情報の取り扱いについては、不動産会社に直接お問い合わせください。
岩手県知事免許(7)第1875号 |
|---|
- 交通:
- JR東北本線/盛岡駅 徒歩17分
- 岩手県盛岡市内丸6-5
- TEL:
- 019-652-2839
- FAX:
- 019-652-2847
- 所属団体:
- (一社)岩手県宅地建物取引業協会会員東北地区不動産公正取引協議会加盟
取引態様:売主  - 20002487
|
- スマートフォンで
この不動産会社を見る

|
- 提携サイト等より掲載されている物件情報につきましては、不動産会社詳細情報にリンクされていないものがあります。
- 物件に関するお問合せは、物件詳細ページの「情報提供会社」に表示されている不動産会社へ直接お願いいたします。
- 間取図は、現況を優先させていただきます。
- 映像は物件の一部を撮影したものです。物件の契約にあたっての最終判断はご自身の判断に基づいて行ってください。
- 仲介手数料について

アットホームは物件情報の適正化に努めております。
内容に誤りがある場合にはこちらへご連絡ください。