東京都大田区蒲田5丁目(蒲田駅)の中古マンション・新築マンション・分譲マンション:物件詳細
交通 所在地 |
駅徒歩 |
価格 |
構造 階建/階 |
間取り 専有面積 |
物件種目 築年月 |
|
JR京浜東北線/蒲田
東京都大田区蒲田5丁目
|
4分
|
4,980万円
|
SRC
10階建 / 9階
|
1SLDK
53.00m²
|
中古マンション
1973年7月(築52年9ヶ月)
|
|
ペット相談、楽器相談、常時ゴミ出し可能、事務所使用可、管理人日勤
|
|
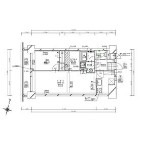
間取図
|
外観
|
その他の画像
|
| 交通 | JR京浜東北線 蒲田駅 徒歩4分 |
|---|
| その他の交通 | 京急本線 京急蒲田駅 徒歩9分 東急多摩川線 蒲田駅 徒歩5分 |
| 所在地 |
東京都大田区蒲田5丁目
|
| 物件種目 |
中古マンション |
| 価格 |
4,980万円 |
平米単価 |
93.97万円 |
| 管理費等 |
12,070円 |
修繕積立金 |
6,730円 |
| 借地期間・地代(月額) |
- |
権利金 |
- |
| 敷金または保証金 |
- / - |
維持費等 |
- |
| その他一時金 |
- |
|
|
| 間取り |
1SLDK(洋 5.1 LDK 18 S 2.8) |
専有面積 |
53.00m²(壁芯) |
| 階建 / 階 |
10階建 / 9階 |
バルコニー |
- |
| 築年月 |
1973年7月(築52年9ヶ月)
|
建物構造 |
SRC |
| 駐車場 |
空無 |
総戸数 |
48戸 |
| 駐輪場 |
有 |
バイク置き場 |
空無 |
| ペット |
小型犬可・ 猫可 |
|
|
| 土地権利 |
所有権 |
敷地面積 |
- |
| 管理形態/管理員の勤務形態 |
全部委託/日勤 |
国土法届出 |
- |
| アピールポイント |
お探しの方には嬉しいペット(小型犬)相談可、事務所利用可。出張時や旅行前でも収集日にしばられることがない常時ゴミ出し可の住戸、更に配膳がラクなカウンターキッチン仕様なので、カフェテイストを加えるアイディアも広がります。またフットワークが軽くなる蒲田駅徒歩4分ロケーションで、その上一度に複数のおかず作りを同時進行できるコンロ3口以上の仕様なので、晩ごはんの支度と翌日の弁当準備ができます。ちなみに底冷えのない浴室暖房採用です。独身でも新婚でも使える1SLDK。実際の空間をご自身で体感ください。 |
| 建物名・部屋番号 |
|
| リフォーム履歴 |
■水回り:2026年5月 キッチン、浴室、トイレ、洗面所、給排水管、給湯器 ■内装:2026年5月 内装全面(床・壁・天井・建具) ※実施年月は最も古い履歴を表示 |
| リノベーション履歴 |
2026年5月 フルリノベーション ※実施年月は最も古い履歴を表示 |
| 瑕疵保証 |
- |
| 瑕疵保険 |
- |
| 評価・証明書 |
- |
| 備考 |
主要採光面:南西向き
用途地域:商業地域
|
| エネルギー消費性能 |
- |
| 断熱性能 |
- |
| 目安光熱費 |
- |
| バス・トイレ |
浴室暖房、浴室乾燥機、追焚機能、シャワー付洗面化粧台、温水洗浄便座 |
| キッチン |
カウンターキッチン、オープンキッチン、システムキッチン、浄水器、3口以上コンロ、グリル |
| 設備・サービス |
全居室収納、バイク置き場、収納スペース、室内洗濯機置場、クローゼット、防犯カメラ、全居室フローリング、都市ガス、エアコン、駐輪場、インターネット対応、光ファイバー、ケーブルTV、CS、BS端子 |
| その他 |
宅配BOX、エレベーター |
| 条件等 |
- |
現況 |
空家 |
| 引渡可能時期 |
指定有り2026年5月16日 |
物件番号 |
6989999479 |
| 仲介手数料 |
167.41万円 |
|
|
| 情報公開日 |
2026年3月20日 |
次回更新予定日 |
2026年4月3日 |
| ケータイ用バーコード |
- スマートフォンでこの物件を見る
- スマートフォンからもこの物件をご覧になれます。
|
※「-」と表示されている項目については、情報提供会社にご確認ください。
| 周辺施設 |
まいばすけっと環八蒲田5丁目店 |
| 距離 |
126m |
写真を見る |
| 周辺施設 |
マルエツかまた店 |
| 距離 |
147m |
写真を見る |
| 周辺施設 |
セブンイレブン大田区蒲田5丁目店 |
| 距離 |
44m |
写真を見る |
| 周辺施設 |
ココカラファイン蒲田駅前店 |
| 距離 |
297m |
写真を見る |
| 周辺施設 |
アロマスクエア郵便局 |
| 距離 |
128m |
写真を見る |
ここから簡単にお問い合わせをすることができます。
(SSLでの暗号化での送信を希望されるお客さまは
こちら
よりお問い合わせください)
お問い合わせを行う前に
「個人情報の取り扱いについて」を必ずお読みください。
「個人情報の取り扱いについて」に同意いただいた場合は「上記にご同意の上 確認画面へ進む」のボタンをクリックしてください。
個人情報の取り扱いについて
皆さまが送付された個人情報はアットホーム(株)のサーバを経由し、お問い合わせ先の不動産会社にメールまたはFAXにて転送されるためアットホーム(株)にも保管されます。アットホーム(株)で保管された個人情報の取り扱いについては、【こちら】をご覧ください。
また、本画面でご記入いただいた個人情報は、お問い合わせ先の不動産会社でも保管します。 お問い合わせ先の不動産会社が保管する個人情報の取り扱いについては、不動産会社に直接お問い合わせください。
東京都知事免許(1)第107337号 |
|---|
- 交通:
- JR山手線/新橋駅 徒歩5分
- 東京都中央区銀座8丁目11-1 GINZA GS BLD.2 7階
- TEL:
- 03-6281-4770
- FAX:
- 03-6281-4771
- 所属団体:
- (公社)東京都宅地建物取引業協会会員(公社)首都圏不動産公正取引協議会加盟
取引態様:専任媒介  - 00271811
|
- スマートフォンで
この不動産会社を見る

|
- 提携サイト等より掲載されている物件情報につきましては、不動産会社詳細情報にリンクされていないものがあります。
- 物件に関するお問合せは、物件詳細ページの「情報提供会社」に表示されている不動産会社へ直接お願いいたします。
- 間取図は、現況を優先させていただきます。
- 映像は物件の一部を撮影したものです。物件の契約にあたっての最終判断はご自身の判断に基づいて行ってください。
- 仲介手数料について

アットホームは物件情報の適正化に努めております。
内容に誤りがある場合にはこちらへご連絡ください。