福岡県福岡市中央区小笹3丁目(桜坂駅)の中古マンション・新築マンション・分譲マンション:物件詳細
交通 所在地 |
駅徒歩 |
価格 |
構造 階建/階 |
間取り 専有面積 |
物件種目 築年月 |
|
地下鉄七隈線/桜坂
福岡県福岡市中央区小笹3丁目
|
24分
|
520万円
|
RC
8階建 / 2階
|
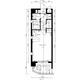
ワンルーム
26.24m²
|
中古マンション
オーナーチェンジ
1991年12月(築34年6ヶ月)
|
|
角部屋、2面採光、管理人巡回
|
| 交通 | 地下鉄七隈線 桜坂駅 徒歩24分 |
|---|
| その他の交通 | 西鉄天神大牟田線 西鉄平尾駅 徒歩25分 地下鉄七隈線 六本松駅 徒歩30分 |
| 所在地 |
福岡県福岡市中央区小笹3丁目
|
| 物件種目 |
中古マンション |
| 価格 |
520万円 |
平米単価 |
19.82万円 |
| 管理費等 |
6,000円 |
修繕積立金 |
5,000円 |
| 借地期間・地代(月額) |
- |
権利金 |
- |
| 敷金または保証金 |
- / - |
維持費等 |
- |
| その他一時金 |
- |
|
|
| 間取り |
ワンルーム |
専有面積 |
26.24m²(壁芯) |
| 階建 / 階 |
8階建 / 2階 |
バルコニー |
5.16m² |
| 築年月 |
1991年12月(築34年6ヶ月)
|
建物構造 |
RC |
| 駐車場 |
- |
総戸数 |
32戸 |
| 駐輪場 |
- |
バイク置き場 |
- |
| ペット |
-
|
|
|
| 土地権利 |
所有権 |
敷地面積 |
- |
| 管理形態/管理員の勤務形態 |
全部委託/巡回 |
国土法届出 |
- |
| アピールポイント |
月額4.3万円で賃貸中です!専有面積26.24㎡のお部屋でお風呂トイレ別、室内洗濯機置場、独立洗面台付の角部屋のお部屋です!物件目の前はコンビニがあり、周辺徒歩圏内には飲食店、24時間スーパー、銀行があります!また最寄のバス停「小笹」停から天神エリアまで約20分!博多駅方面もアクセス可能です! |
| 建物名・部屋番号 |
ロマネスク小笹第3 |
| リフォーム履歴 |
- |
| リノベーション履歴 |
- |
| 瑕疵保証 |
- |
| 瑕疵保険 |
- |
| 評価・証明書 |
- |
| 備考 |
利回り:9.92%
年間予定賃料収入:51.6万円
|
| エネルギー消費性能 |
- |
| 断熱性能 |
- |
| 目安光熱費 |
- |
| バス・トイレ |
- |
| キッチン |
カウンターキッチン |
| 設備・サービス |
収納スペース、室内洗濯機置場、オートロック、エアコン |
| その他 |
エレベーター |
| 条件等 |
オーナーチェンジ |
現況 |
賃貸中 |
| 引渡可能時期 |
相談 |
物件番号 |
6990004814 |
| 情報公開日 |
2026年3月20日 |
次回更新予定日 |
2026年5月13日 |
| ケータイ用バーコード |
- スマートフォンでこの物件を見る
- スマートフォンからもこの物件をご覧になれます。
|
※「-」と表示されている項目については、情報提供会社にご確認ください。
| 周辺施設 |
セブンイレブン福岡小笹2丁目店 |
| 距離 |
32m |
| 周辺施設 |
西日本シティ銀行小笹支店 |
| 距離 |
240m |
ここから簡単にお問い合わせをすることができます。
(SSLでの暗号化での送信を希望されるお客さまは
こちら
よりお問い合わせください)
お問い合わせを行う前に
「個人情報の取り扱いについて」を必ずお読みください。
「個人情報の取り扱いについて」に同意いただいた場合は「上記にご同意の上 確認画面へ進む」のボタンをクリックしてください。
個人情報の取り扱いについて
皆さまが送付された個人情報はアットホーム(株)のサーバを経由し、お問い合わせ先の不動産会社にメールまたはFAXにて転送されるためアットホーム(株)にも保管されます。アットホーム(株)で保管された個人情報の取り扱いについては、【こちら】をご覧ください。
また、本画面でご記入いただいた個人情報は、お問い合わせ先の不動産会社でも保管します。 お問い合わせ先の不動産会社が保管する個人情報の取り扱いについては、不動産会社に直接お問い合わせください。
福岡県知事免許(1)第20800号 |
|---|
- 交通:
- 地下鉄空港線/室見駅 徒歩7分
- 福岡県福岡市早良区南庄6丁目7-18
- TEL:
- 092-836-8441
- FAX:
- 092-836-8441
- 所属団体:
- (公社)全日本不動産協会会員(一社)全国不動産協会会員(一社)九州不動産公正取引協議会加盟
取引態様:媒介  - 80508209
|
- スマートフォンで
この不動産会社を見る

|
- 提携サイト等より掲載されている物件情報につきましては、不動産会社詳細情報にリンクされていないものがあります。
- 物件に関するお問合せは、物件詳細ページの「情報提供会社」に表示されている不動産会社へ直接お願いいたします。
- 間取図は、現況を優先させていただきます。
- 映像は物件の一部を撮影したものです。物件の契約にあたっての最終判断はご自身の判断に基づいて行ってください。
- 仲介手数料について

アットホームは物件情報の適正化に努めております。
内容に誤りがある場合にはこちらへご連絡ください。