岩手県盛岡市本町通2丁目(上盛岡駅)の中古マンション・新築マンション・分譲マンション:物件詳細
交通 所在地 |
駅徒歩 |
価格 |
構造 階建/階 |
間取り 専有面積 |
物件種目 築年月 |
|
JR山田線/上盛岡
岩手県盛岡市本町通2丁目
|
5分
|
2,335万円
|
RC
12階建 / 2階
|
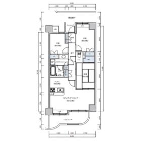
3LDK
64.44m²
|
中古マンション
2003年3月(築23年1ヶ月)
|
|
ペット相談、常時ゴミ出し可能、南向き、ロードヒーティング、フラット35適合証明書あり
|
|
間取図
リビングにいながら隣の和室の気配を感じられて育児や介護に優しい間取り
|
外観
|
その他の画像
|
| 交通 | JR山田線 上盛岡駅 徒歩5分 |
|---|
| その他の交通 | 東北新幹線 盛岡駅 徒歩25分 |
| 所在地 |
岩手県盛岡市本町通2丁目
|
| 物件種目 |
中古マンション |
| 価格 |
2,335万円 |
平米単価 |
36.24万円 |
| 管理費等 |
9,600円 |
修繕積立金 |
5,800円 |
| 借地期間・地代(月額) |
- |
権利金 |
- |
| 敷金または保証金 |
- / - |
維持費等 |
インターネット使用料:990円/月 |
| その他一時金 |
- |
|
|
| 間取り |
3LDK(和 6 洋 4.4・5.8 LDK 14.9) |
専有面積 |
64.44m²(内法) |
| 階建 / 階 |
12階建 / 2階 |
バルコニー |
10.23m² |
| 築年月 |
2003年3月(築23年1ヶ月)
|
建物構造 |
RC |
| 駐車場 |
有 11,000円/月 |
総戸数 |
54戸 |
| 駐輪場 |
有 |
バイク置き場 |
有 |
| ペット |
小型犬可・ 猫可・ 足洗い場設置済み |
|
|
| 土地権利 |
所有権 |
敷地面積 |
2,378.15m² |
| 管理形態/管理員の勤務形態 |
全部委託/不在(協栄テックス株式会社) |
国土法届出 |
- |
| アピールポイント |
駐輪場とトランクルームは無料で使用できます。ゴミ出しは24時間365日可能です。通勤・通学に便利で行動範囲が広がります。宅配ボックスがあるので遅い帰宅でも荷物が受け取れます。ペットOK(猫および中型犬まで)、足洗い場設置済み! |
| 建物名・部屋番号 |
ロイヤル仁王レジデンス 203 |
| リフォーム履歴 |
■共用部の大規模修繕工事:2024年8月 1.外壁等塗装工事 2.躯体補修工事 3.目地・竪樋支持金物・建具廻りシーリング工事 5.開放廊下側溝・外部階段・バルコニー床等防水工事 6.鉄部塗装工事 7.内外装工事 8.エレベーター内装工事 9.照明器具交換工事 ■その他:2024年8月 1.室内エアコン更新 2.ガス給湯暖房用熱源機更新 3.インターネット光ケーブル導入工事 4.インターホン設備更新 ※実施年月は最も古い履歴を表示 |
| リノベーション履歴 |
- |
| 瑕疵保証 |
- |
| 瑕疵保険 |
- |
| 評価・証明書 |
■フラット35適合証明書 フラット35適合証明書あり 建物検査実施日:2024年09月25日 |
| 備考 |
主要採光面:南向き
用途地域:1種住居
|
| エネルギー消費性能 |
- |
| 断熱性能 |
- |
| 目安光熱費 |
- |
| バス・トイレ |
オートバス |
| キッチン |
独立型キッチン、3口以上コンロ |
| 設備・サービス |
モニター付オートロック、全居室収納、エアコン2台以上、床暖房、バイク置き場、収納スペース、室内洗濯機置場、トランクルーム、シューズインクローゼット、クローゼット、オートロック、モニター付インターホン、ディンプルキー、ダブルロックドア、防犯カメラ、給湯、都市ガス、エアコン、駐輪場、CATVインターネット、ケーブルTV |
| その他 |
宅配BOX、敷地内公園、車寄せスペース、エレベーター |
| 条件等 |
- |
現況 |
空家 |
| 引渡可能時期 |
即時 |
物件番号 |
6990011372 |
| 仲介手数料 |
不要 |
|
|
| 情報公開日 |
2026年3月21日 |
次回更新予定日 |
2026年4月4日 |
| ケータイ用バーコード |
- スマートフォンでこの物件を見る
- スマートフォンからもこの物件をご覧になれます。
|
※「-」と表示されている項目については、情報提供会社にご確認ください。
| 周辺施設 |
ファミリーマート盛岡名須川町店 |
| 距離 |
153m |
ここから簡単にお問い合わせをすることができます。
(SSLでの暗号化での送信を希望されるお客さまは
こちら
よりお問い合わせください)
お問い合わせを行う前に
「個人情報の取り扱いについて」を必ずお読みください。
「個人情報の取り扱いについて」に同意いただいた場合は「上記にご同意の上 確認画面へ進む」のボタンをクリックしてください。
個人情報の取り扱いについて
皆さまが送付された個人情報はアットホーム(株)のサーバを経由し、お問い合わせ先の不動産会社にメールまたはFAXにて転送されるためアットホーム(株)にも保管されます。アットホーム(株)で保管された個人情報の取り扱いについては、【こちら】をご覧ください。
また、本画面でご記入いただいた個人情報は、お問い合わせ先の不動産会社でも保管します。 お問い合わせ先の不動産会社が保管する個人情報の取り扱いについては、不動産会社に直接お問い合わせください。
岩手県知事免許(9)第1641号 |
|---|
- 交通:
- JR東北本線/盛岡駅
- 岩手県盛岡市中央通3丁目3-1
- TEL:
- 0120-210-200
- 所属団体:
- (一社)岩手県宅地建物取引業協会会員東北地区不動産公正取引協議会加盟
取引態様:代理  - 20007123
|
- スマートフォンで
この不動産会社を見る

|
- 提携サイト等より掲載されている物件情報につきましては、不動産会社詳細情報にリンクされていないものがあります。
- 物件に関するお問合せは、物件詳細ページの「情報提供会社」に表示されている不動産会社へ直接お願いいたします。
- 間取図は、現況を優先させていただきます。
- 映像は物件の一部を撮影したものです。物件の契約にあたっての最終判断はご自身の判断に基づいて行ってください。
- 仲介手数料について

アットホームは物件情報の適正化に努めております。
内容に誤りがある場合にはこちらへご連絡ください。